0183 - 635011 0183 - 635011 Stel een vraag Stel een vraag
Beschikbaar

Haarweg 1 e

GORINCHEM
€ 869.000,- k.k.
  • Woonoppervlakte 162 m2
  • Perceeloppervlakte 706 m2
  • Aantal slaapkamers 5
  • Bouwjaar 2017

Omschrijving

Wonen met luxe en comfort aan de Haarweg 1e!

Welkom bij deze prachtige vrijstaande villa, gelegen op een royaal perceel van 706 m². Deze stijlvolle woning is in 2017 gebouwd en helemaal van deze tijd: goed geïsoleerd, modern afgewerkt en keurig onderhouden. Met maar liefst vijf slaapkamers, twee badkamers, twee aparte toiletten, een grote tuin rondom én parkeren op eigen terrein, biedt deze woning alles wat je zoekt in een comfortabel en luxe thuis.

Bij binnenkomst stap je in een ruime hal met een mooie trapopgang en toegang tot het toilet. De hal leidt naar de royale woonkamer van circa 54 m², die dankzij de sfeervolle erker veel daglicht heeft. Hier is genoeg plek voor een royale zithoek en een grote eettafel — ideaal voor gezellige etentjes of relaxte avonden thuis.

De moderne open keuken is voorzien van alle benodigde inbouwapparatuur en sluit naadloos aan op de bijkeuken. Deze bijkeuken fungeert tevens als wasruimte, waardoor je wasmachine en droger netjes uit het zicht staan.

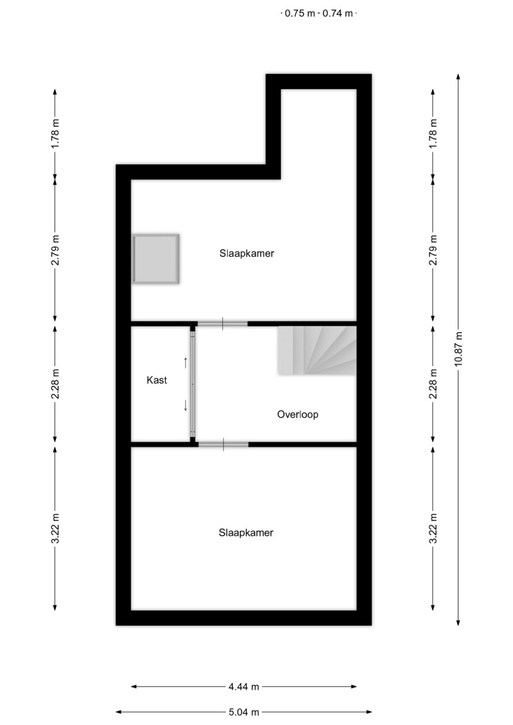
Op de eerste verdieping bevinden zich drie ruime slaapkamers, waaronder de master bedroom. Deze kamer is voorzien van een eigen open badkamer met inloopdouche en wastafel – ideaal voor extra comfort en privacy. Daarnaast is er op deze verdieping een tweede, luxe badkamer. Deze is voorzien van een ligbad, inloopdouche en dubbele wastafel, en bevindt zich centraal op de verdieping, zodat de andere slaapkamers hier ook gemakkelijk gebruik van kunnen maken. Verder vind je op deze etage een apart toilet en een ruime overloop.

De tweede verdieping biedt nog eens twee fijne slaapkamers. Deze zijn perfect in te richten als kinderkamers, logeerkamers, thuiskantoor of hobbyruimte. Dankzij de rechte gevels en het goede afwerkingsniveau voelt ook deze verdieping comfortabel en ruim aan.

Buitenruimte, rust en ruimte
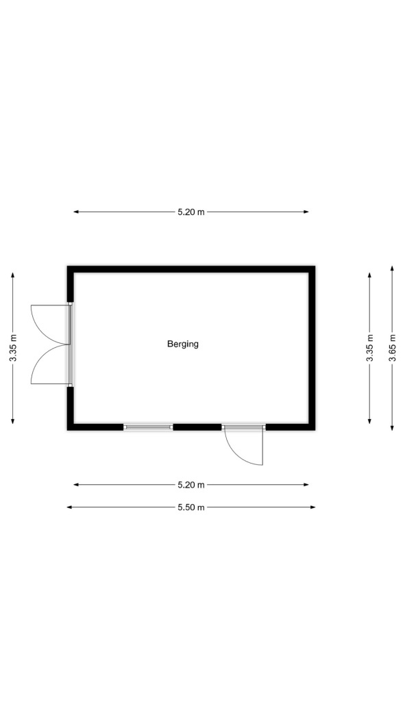
De tuin rondom de woning is met zorg aangelegd en biedt volop ruimte en privacy. Aan de achterzijde vind je een heerlijk zonneterras, perfect voor lange zomeravonden of een rustige ochtendkoffie. Het tuinhuis in de tuin is momenteel ingericht als stoere mancave, compleet met verwarming en elektra.

Garage
De vrijstaande houten garage biedt voldoende ruimte voor het stallen van een auto of meerdere fietsen. Daarnaast is er ruime parkeergelegenheid op eigen terrein, met plaats voor maar liefst zes auto's. Bovendien is er een laadpaal aanwezig, wat het parkeren van een elektrische auto extra gemakkelijk maakt.

Duurzaam
De woning is volledig geïsoleerd (dak, vloer, muren, HR-glas) en voorzien van een moderne cv-installatie en een warmteterugwininstallatie. De zonnepanelen zorgen bovendien voor een lagere energierekening. Het energielabel A onderstreept de duurzaamheid van deze woning.

Een instapklare, stijlvolle villa met veel ruimte, luxe voorzieningen én een heerlijke tuin. Hier geniet je van rust, privacy en modern wooncomfort, net buiten de stad, maar toch dichtbij alles wat je nodig hebt. Kom jij de sfeer ervaren?

Highlights:
- Woonoppervlakte van maar liefst 162 m²
- 5 ruime slaapkamers, 2 complete badkamers en 2 aparte toiletten
- Vrijstaand houten tuinhuis, ingericht als gezellige mancave
- Grote tuin rondom met veel privacy
- Energielabel A: uitstekend geïsoleerd en voorzien van zonnepanelen
- Woonkamer met sfeervolle erker en veel lichtinval
- Parkeren op eigen terrein + vrijstaande houten garage
- Vrij uitzicht en rustige ligging buiten de bebouwde kom

Lees de volledige omschrijving

Kenmerken

Overdracht

Status Beschikbaar
Aanvaarding In overleg

Bouwvorm

Soort object Woonhuis
Soort woning Villa
Type woning Vrijstaande woning
Bouwjaar 2017
Bouwvorm Bestaande bouw
Ligging Vrij uitzicht, open ligging, buiten de bebouwde kom

Indeling

Woonoppervlakte 162 m²
Perceeloppervlakte 706 m²
Inhoud 592 m³
Aantal kamers 6
Aantal slaapkamers 5
Aantal woonlagen 3

Energie

Energieklasse A
Energie einddatum zondag 18 juni 2017
Isolatie Dakisolatie, muurisolatie, vloerisolatie, volledig geïsoleerd, hr glas
Warmwater Cv ketel
Verwarming Cv ketel, warmtepomp terugwininstallatie

Buitenruimte

Tuin Tuin rondom
Hoofdtuin Tuin rondom
Achterom Ja
Kwaliteit tuin Verzorgd

Bergruimte

Garage Vrijstaand hout
Schuur / Berging Vrijstaand hout

Parkeergelegenheid

Voorzieningen Op eigen terrein

Dak

Dak Schilddak

Overig

Permanente bewoning Ja
Onderhoud binnen Goed tot uitstekend
Onderhoud buiten Goed tot uitstekend
Huidig gebruik Woonruimte
Huidige bestemming Woonruimte

Voorzieningen

Voorzieningen Mechanische ventilatie, zonnepanelen

Kadastrale gegevens

Gemeente Gorinchem
Sectie H
Perceelnummer 857
Oppervlakte 643 m²
Eigendomssituatie Volle eigendom
v1-20250318-8G0A1538EE
Interesse in deze woning?

Stefan helpt u graag

Gratis waardebepaling

U denkt erover uw woning te verkopen en wilt graag weten wat het waard is? We komen graag bij u langs en bepalen de waarde van uw woning.

Gratis waardebepaling

Deel deze woning

Uw persoonlijke adviseur in de regio

Maak kennis met de HypotheekWeter

Ligging

Afspraak maken voor een bezichtiging? Neem contact met ons op

Vergelijkbare woningen