0183 - 635011 0183 - 635011 Stel een vraag Stel een vraag
Beschikbaar

Grote Haarsekade 37 b

GORINCHEM
€ 300.000,- k.k.
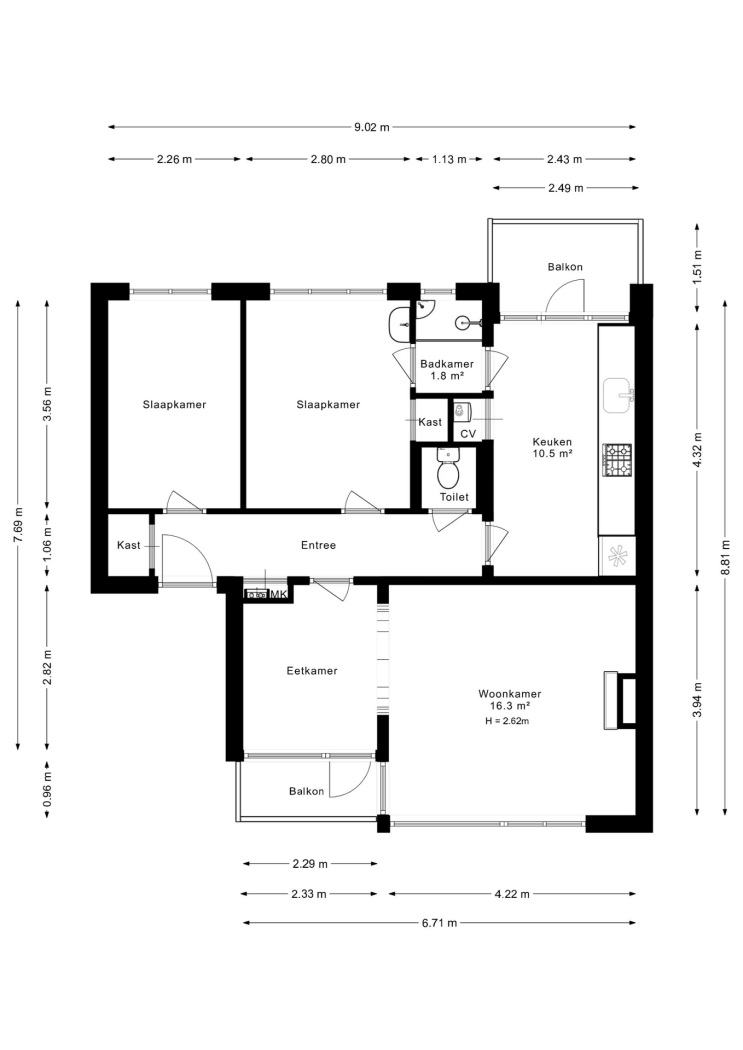
  • Woonoppervlakte 62 m2
  • Aantal slaapkamers 2
  • Bouwjaar 1960

Omschrijving

Grote Haarsekade 37B: licht appartement met veel potentie
Aan de Grote Haarsekade 37B bevindt zich dit lichte appartement met een prettige indeling en volop mogelijkheden om het geheel naar eigen smaak te moderniseren.
Dankzij de royale raampartijen en de goede buitenruimtes is dit een fijne basis voor comfortabel wonen.

De woonkamer met aansluitende eetkamer is van een prettig formaat en voelt licht en ruim aan. Grote ramen zorgen voor veel daglicht en een open sfeer. Vanuit de eetkamer is er toegang tot het balkon, waar voldoende plek is voor een gezellige zit en waar je kunt genieten van de buitenlucht.

De dichte keuken is wat gedateerd, maar biedt een goed formaat en diverse indelingsmogelijkheden. Een groot pluspunt is het tweede balkon dat direct aan de keuken grenst, waardoor je op verschillende momenten van de dag een zonnig plekje kunt opzoeken.

Het appartement beschikt over twee slaapkamers, beide van prima afmetingen en flexibel in te richten als slaap-, werk- of hobbykamer. De badkamer is voorzien van een douche en is bereikbaar vanuit de hoofdslaapkamer. In deze kamer bevinden zich tevens de wastafel en een vaste inbouwkast. Het toilet is separaat en bereikbaar vanuit de hal.

De ruime hal beschikt eveneens over een vaste kast, wat zorgt voor extra praktische opbergruimte.

Kortom: een licht appartement met een goede basis, twee balkons en veel potentie om er een eigentijdse en persoonlijke woning van te maken. Ideaal voor starters of kopers die graag hun eigen woonwensen willen realiseren.

Highlights
* Woonoppervlakte van ca. 62 m²
* Energielabel A
* Voorzien van dubbel glas en HR-glas
* Muurisolatie aanwezig
* Twee balkons, altijd een plek in de zon
* Lichte woonkamer met grote raampartijen
* Twee slaapkamers van goed formaat
* Eigen (fietsen) berging 
* Praktische indeling met veel bergruimte
* Dichtbij alle stadse voorzieningen zoals winkels, horeca en openbaar vervoer
* Appartement met veel potentie om naar eigen smaak in te richten

Wonen in Gorinchem: centraal én rustig
Wonen aan de Grote Haarsekade betekent genieten van het beste van twee werelden. Je woont hier in Gorinchem, op korte afstand van het levendige centrum met zijn winkels, gezellige horeca, terrassen en culturele voorzieningen, terwijl je thuis juist profiteert van rust. De ligging aan een relatief rustige straat zorgt voor een ontspannen woonomgeving, zonder dat je hoeft in te leveren op bereikbaarheid en gemak.

Alles wat je nodig hebt is binnen handbereik: supermarkten, scholen, sportvoorzieningen en openbaar vervoer zijn eenvoudig te bereiken, net als de uitvalswegen richting omliggende steden. Dit maakt de locatie ideaal voor wie centraal wil wonen, maar ook waarde hecht aan een rustige en prettige woonplek.

Lees de volledige omschrijving

Kenmerken

Overdracht

Status Beschikbaar
Aanvaarding In overleg

Bouwvorm

Soort object Appartement
Bouwjaar 1960
Bouwvorm Bestaande bouw
Ligging In een woonwijk

Indeling

Woonoppervlakte 62 m²
Inhoud 219 m³
Aantal kamers 3
Aantal slaapkamers 2
Aantal woonlagen 1

Energie

Energieklasse A
Energie einddatum zondag 2 december 2035
Isolatie Muurisolatie, hr glas
Warmwater Cv ketel

Buitenruimte

Tuin Geen tuin
Achterom Nee

Bergruimte

Garage Geen garage

Parkeergelegenheid

Voorzieningen Openbaar parkeren

Dak

Dak Zadeldak

Overig

Permanente bewoning Ja
Onderhoud binnen Matig tot redelijk
Onderhoud buiten Goed tot uitstekend
Huidig gebruik Woonruimte
Huidige bestemming Woonruimte

Voorzieningen

Voorzieningen Buitenzonwering, natuurlijke ventilatie

Kadastrale gegevens

Gemeente Gorinchem
Sectie A
Perceelnummer 6013
Eigendomssituatie Volle eigendom
OK-Kopie-van-v1-20250318-8G0A1414
Interesse in deze woning?

Chanel helpt u graag

Gratis waardebepaling

U denkt erover uw woning te verkopen en wilt graag weten wat het waard is? We komen graag bij u langs en bepalen de waarde van uw woning.

Gratis waardebepaling

Deel deze woning

Uw persoonlijke adviseur in de regio

Maak kennis met de HypotheekWeter

Ligging

Afspraak maken voor een bezichtiging? Neem contact met ons op

Vergelijkbare woningen