0183 - 635011 0183 - 635011 Stel een vraag Stel een vraag
Verkocht onder voorbehoud

Godfried Bomanslaan 82

GORINCHEM
€ 435.000,- k.k.
  • Woonoppervlakte 107 m2
  • Perceeloppervlakte 123 m2
  • Aantal slaapkamers 4
  • Bouwjaar 1992

Omschrijving

Gevonden: jouw nieuwe thuis aan de Godfried Bomanslaan 82. Een heerlijke plek om te wonen!

Deze goed onderhouden tussenwoning ligt in een rustige, kindvriendelijke straat met alleen bestemmingsverkeer. Aan de voorzijde kijk je vrij uit op het groen, wat elke dag weer zorgt voor een fijn gevoel van rust en ruimte.

Binnen valt meteen de lichte en ruime woonkamer op, met als absoluut pluspunt de zonnige achtertuin op het zuidoosten. Daardoor stroomt het zonlicht al vroeg de woonkamer binnen. Een heerlijk begin van de dag!

Met maar liefst vier fijne slaapkamers is dit een ideaal gezinshuis. En dankzij de brede dakkapel aan de achterzijde is ook de bovenverdieping lekker licht en verrassend ruim.

Ook op het gebied van comfort zit je hier goed: met energielabel B en goede isolatie woon je hier energiezuinig. Daarnaast profiteer je van een nieuwe, moderne keuken uit 2023 én recent aangelegde voor- en achtertuin met volop zon. Instapklaar genieten dus!

Highlights
•Bouwjaar: 1992
•Woonoppervlakte: ca. 107 m²
•Perceel: 123 m²
•Goed geïsoleerd en voorzien van energielabel B
•Gelegen in een rustige straat met alleen bestemmingsverkeer
•Vrij uitzicht op groen aan de voorzijde
•Vier slaapkamers
•Woningbrede kunststof dakkapel, voorzien van kiep-/kantelramen en rolluiken
•Moderne keuken (2023)
•Badkamer inclusief vloerverwarming
•Begane grond voorzien van vloerverwarming en plavuizen
•CV-combiketel (2023)
•Tuin op het zuidoosten + stenen berging en achterom
•Gelegen nabij diverse voorzieningen

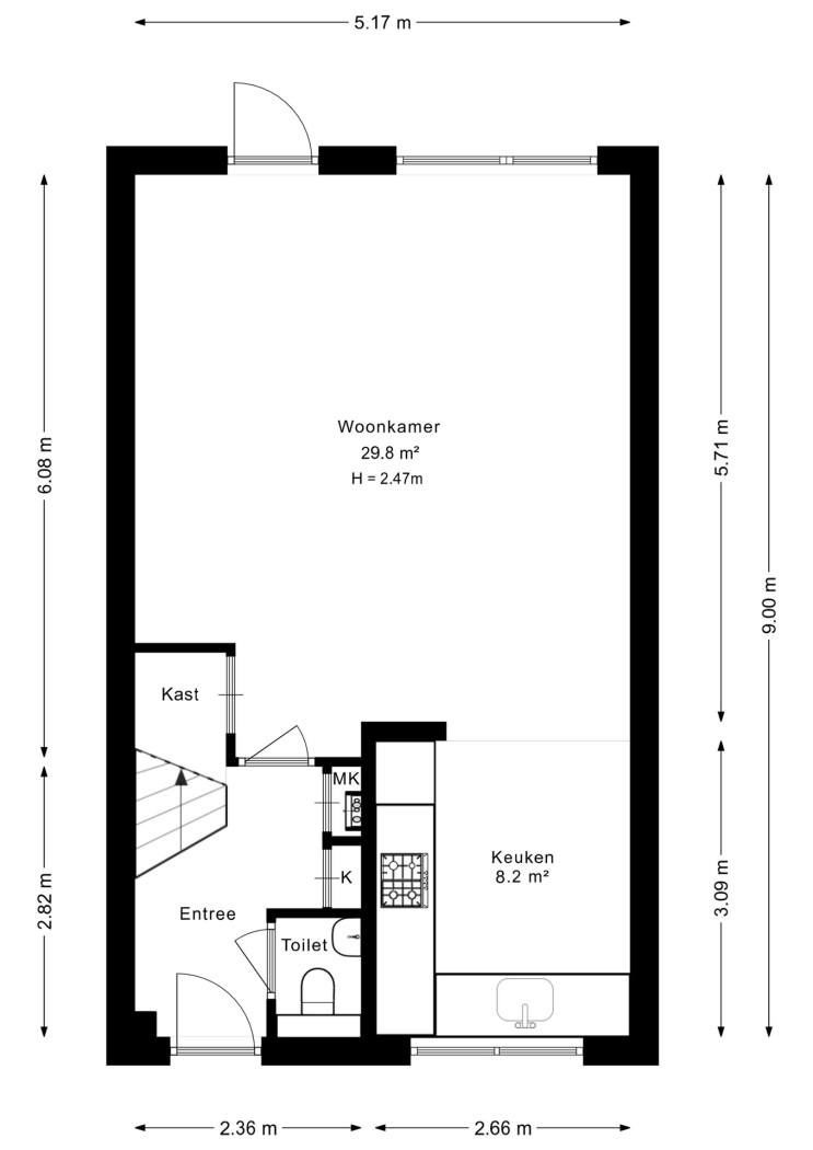
INDELING BEGANE GROND

Welkom!
Via de entree heb je toegang tot de woonkamer, het moderne zwevende toilet, de meterkast en de trapopgang naar de eerste verdieping.

Wonen en koken
De zonnige woonkamer is een heerlijke, lichte plek om te leven en staat in directe verbinding met de achtertuin, ideaal op mooie dagen! Aan de voorzijde vind je de keuken, die dankzij de karakteristieke halfronde ramen meteen sfeer uitstraalt. In 2023 is deze keuken vernieuwd en uitgevoerd in een moderne, nette opstelling met alle gemakken: een gaskookplaat, afzuigkap, oven, koel-/vriescombinatie en vaatwasser. De begane grond is afgewerkt met een tegelvloer met comfortabele vloerverwarming. Aan de achterzijde is de woning voorzien van een elektrisch bedienbaar zonnescherm en zowel aan de voor- als achterzijde is een buitenkraan aanwezig.

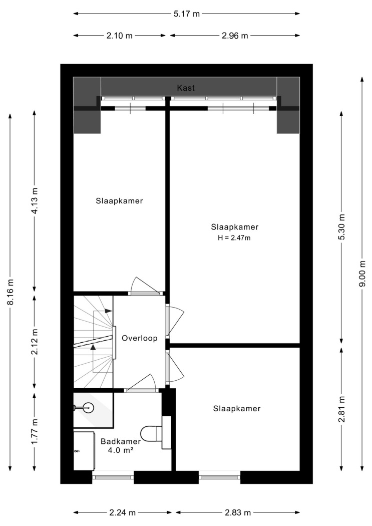
INDELING EERSTE VERDIEPING

Op de eerste verdieping bevinden zich drie fijne slaapkamers. De twee kamers aan de achterzijde zijn extra ruim dankzij een brede kunststof dakkapel, voorzien van kiep-/kantelramen en elektrische rolluiken. Ook is er volop handige bergruimte achter de knieschotten.

De moderne badkamer is stijlvol afgewerkt en van alle gemakken voorzien: een regendouche, zwevend toilet en een wastafel met spiegelkast. Extra comfort vind je in de elektrische vloerverwarming, designradiator en het praktische
badkamermeubel.

INDELING TWEEDE VERDIEPING

De tweede verdieping biedt een ruime voorzolder met aan beide zijden een Velux-dakraam, wat zorgt voor prettig licht. Hier vind je de CV-combiketel (2023) en de aansluitingen voor wasmachine en droger. Daarnaast is er een volwaardige vierde slaap- of werkkamer met dubbele Velux-dakramen, die zorgen voor een mooie lichtinval en een vrij uitzicht. Eén van de dakramen is recent vernieuwd en voorzien van een comfortabel Velux rolgordijn en zonwering. Vanuit deze kamer bereik je ook de verrassend ruime vliering met vlizotrap. Ideaal voor extra bergruimte!

Tuin en buitenruimte
Dankzij de gunstige ligging op het zuidoosten geniet je hier de hele dag van de zon. De achtertuin is verzorgd en onderhoudsvriendelijk aangelegd, met een fijne mix van een royaal terras en sfeervolle groenborders. Achterin vind je een praktische stenen berging met elektra en er is een handige achterom aanwezig met recent geplaatste poort.

Ligging
De woning is gelegen in de geliefde en ruim opgezette woonwijk Gorinchem-Oost, een groene en rustige omgeving waar het prettig wonen is. De wijk staat bekend om haar kindvriendelijke karakter en biedt een fijne balans tussen rust en de nabijheid van alle dagelijkse voorzieningen.

Op korte afstand vind je diverse winkels, scholen, sportfaciliteiten en speelgelegenheden. Het winkelcentrum rond het Beckmanplein vormt het hart van de wijk en is ideaal voor de dagelijkse boodschappen.

Ook het historische centrum van Gorinchem ligt binnen handbereik. Hier kun je heerlijk struinen langs sfeervolle winkels, genieten van gezellige restaurants en terrassen, of een wandeling maken over de oude stadswallen met uitzicht op de rivier de Merwede. Een plek waar historie en levendigheid samenkomen.
Daarnaast is de bereikbaarheid uitstekend. Met de nabijgelegen uitvalswegen A15 en A27 zijn steden als Utrecht, Rotterdam en Breda eenvoudig te bereiken, wat deze locatie ook voor forenzen bijzonder aantrekkelijk maakt.

Kortom: ruim en licht wonen in een rustige, groene wijk op een toplocatie.

Lees de volledige omschrijving

Kenmerken

Overdracht

Status Verkocht onder voorbehoud
Aanvaarding In overleg

Bouwvorm

Soort object Woonhuis
Soort woning Eengezinswoning
Type woning Tussenwoning
Bouwjaar 1992
Bouwvorm Bestaande bouw
Ligging Aan een rustige weg, in een woonwijk, vrij uitzicht

Indeling

Woonoppervlakte 107 m²
Perceeloppervlakte 123 m²
Inhoud 389 m³
Aantal kamers 5
Aantal slaapkamers 4
Aantal woonlagen 4

Energie

Energieklasse B
Energie einddatum zondag 24 februari 2036
Isolatie Dakisolatie, muurisolatie, vloerisolatie, dubbel glas, volledig geïsoleerd
Warmwater Cv ketel
Verwarming Cv ketel, vloerverwarming gedeeltelijk

Buitenruimte

Tuin Achtertuin, voortuin
Hoofdtuin Achtertuin
Oppervlakte hoofdtuin 40 m²
Ligging hoofdtuin Zuid-oost
Achterom Ja
Kwaliteit tuin Verzorgd

Bergruimte

Garage Geen garage
Schuur / Berging Vrijstaand steen

Parkeergelegenheid

Voorzieningen Openbaar parkeren

Dak

Dak Zadeldak

Overig

Permanente bewoning Ja
Onderhoud binnen Goed tot uitstekend
Onderhoud buiten Goed tot uitstekend
Huidig gebruik Woonruimte
Huidige bestemming Woonruimte

Voorzieningen

Voorzieningen Mechanische ventilatie, tv kabel, buitenzonwering, dakraam, natuurlijke ventilatie

Kadastrale gegevens

Gemeente Gorinchem
Sectie F
Perceelnummer 1921
Oppervlakte 123 m²
Eigendomssituatie Volle eigendom
OK-Kopie-van-v1-20250318-8G0A1414
Interesse in deze woning?

Chanel helpt u graag

Gratis waardebepaling

U denkt erover uw woning te verkopen en wilt graag weten wat het waard is? We komen graag bij u langs en bepalen de waarde van uw woning.

Gratis waardebepaling

Deel deze woning

Uw persoonlijke adviseur in de regio

Maak kennis met de HypotheekWeter

Ligging

Afspraak maken voor een bezichtiging? Neem contact met ons op

Vergelijkbare woningen