0183 - 635011 0183 - 635011 Stel een vraag Stel een vraag
Verkocht onder voorbehoud

Burgstraat 38

GORINCHEM
€ 395.000,- k.k.
  • Woonoppervlakte 87 m2
  • Aantal slaapkamers 2
  • Bouwjaar 1915

Omschrijving

Heerlijk wonen in het centrum… mét dakterras!

Dubbele bovenwoning | Stijlvol, sfeervol en verrassend ruim
Wonen in het historische centrum van Gorinchem, met karaktervolle details en hedendaags wooncomfort. Aan de Burgstraat 38 ervaar je het beste van beide werelden. Je wordt wakker tussen het glas-in-lood, stapt de deur uit en loopt direct een van de meest geliefde winkelstraten van de stad in. En voor een rustig moment geniet je van een kop koffie op je eigen zonnige dakterras.

Deze karakteristieke dubbele bovenwoning is verdeeld over twee woonlagen en in 2016 volledig verbouwd. Dat zie en voel je in alles. De woning is verzorgd afgewerkt en straalt kwaliteit uit, met onder andere stijlvolle en-suite loftdeuren, een moderne mat zwarte keuken en een authentieke gevel die een verrassend ruime en lichte woning verhult.

Het dakterras op het zuiden vormt een waardevolle buitenruimte waar je van ’s ochtends tot in de avond van de zon kunt genieten. Binnen tref je een prettig licht huis met een warme sfeer, ideaal voor wie comfortabel wil wonen zonder verbouwplannen.

Het centrum als jouw achtertuin
Van wandelen over de stadswallen tot een terrasje pakken, winkelen bij speciaalzaken of dineren bij je favoriete restaurant: alles ligt op loopafstand. Hier komen de levendigheid van de binnenstad en de rust van een comfortabele bovenwoning op een unieke manier samen.

Een instapklare woning op een gewilde locatie, waar je direct kunt wonen en genieten.

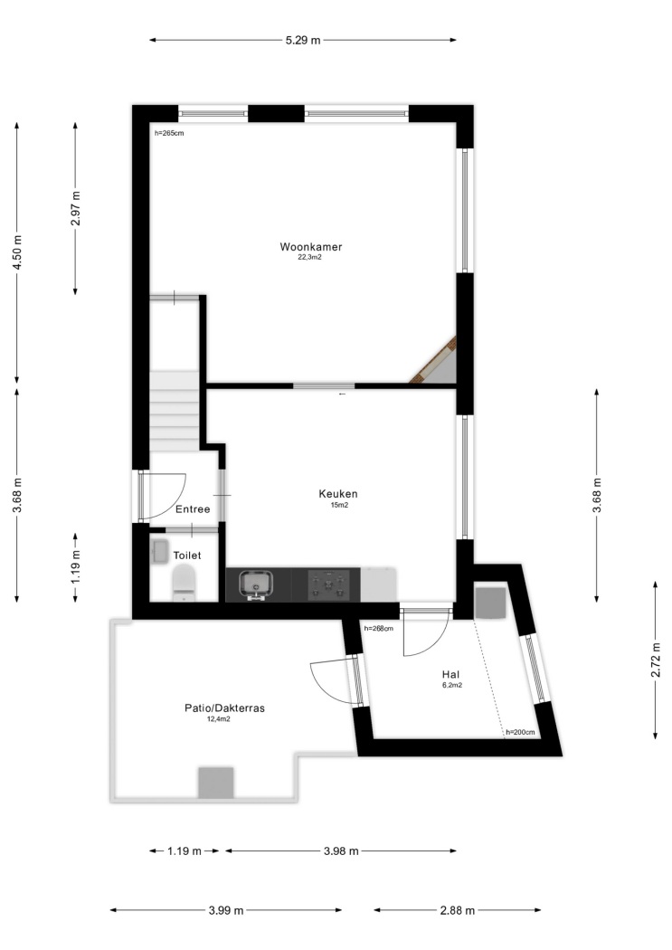
INDELING WOONVERDIEPING

Entree
Via je eigen voordeur op de begane grond trap je naar boven. De hal boven verwelkomt je met een moderne toiletruimte en leidt je zó naar de woonkeuken. Instapklaar, toch? We beloofden het je.

Woonkeuken – ca. 15 m²
De woonkeuken vormt een centraal en prettig leefgedeelte van de woning. De moderne keuken is uitgevoerd in mat zwarte kasten en voorzien van diverse inbouwapparatuur, waaronder een 4-pits gaskookplaat met RVS afzuigkap, combi-oven, koelkast, vaatwasser en een Quooker.
Dankzij de houten vloerdelen, glas-in-lood bovenlichten en het karakteristieke balkenplafond heeft de ruimte een warme en sfeervolle uitstraling. Vanuit de woonkeuken is via een klein niveauverschil de bijkeuken bereikbaar, voorzien van een wasmachine- en droger opstelling en met directe toegang tot het dakterras.

Via de witte loftdeuren staat de woonkeuken in open verbinding met de woonkamer, wat zorgt voor een ruimtelijk en licht geheel.

Woonkamer – ca. 22,3 m²
De woonkamer is een lichte en aangename leefruimte met een sfeervolle uitstraling. Drie ramen met glas-in-lood zorgen voor een mooie lichtinval en bieden uitzicht op zowel de Burgstraat als het Laantje. De decoratieve haardmantel geeft de ruimte een warme, klassieke touch.
De afwerking is verzorgd en in balans: houten vloerdelen, strakke wanden en een karakteristiek balkenplafond vormen samen een stijlvol geheel. Daarnaast beschikt de woonkamer over een praktische trapkast, waarin tevens de meterkast is gesitueerd. Deze ruimte is uitstekend te gebruiken als voorraad- of bergruimte.

Dakterras – ca. 12,4 m²
Het dakterras vormt een waardevolle buitenruimte en is gelegen op het zuiden. Het terras is volledig besloten en biedt veel privacy en rust. De afwerking met vlonderplanken en bakstenen wanden zorgt voor een verzorgde en sfeervolle uitstraling. Dankzij de gunstige ligging is er de gehele dag zon en is er voldoende ruimte voor het plaatsen van een lounge- of eethoek en beplanting. Een prettige plek om in alle rust buiten te zitten, midden in het centrum.

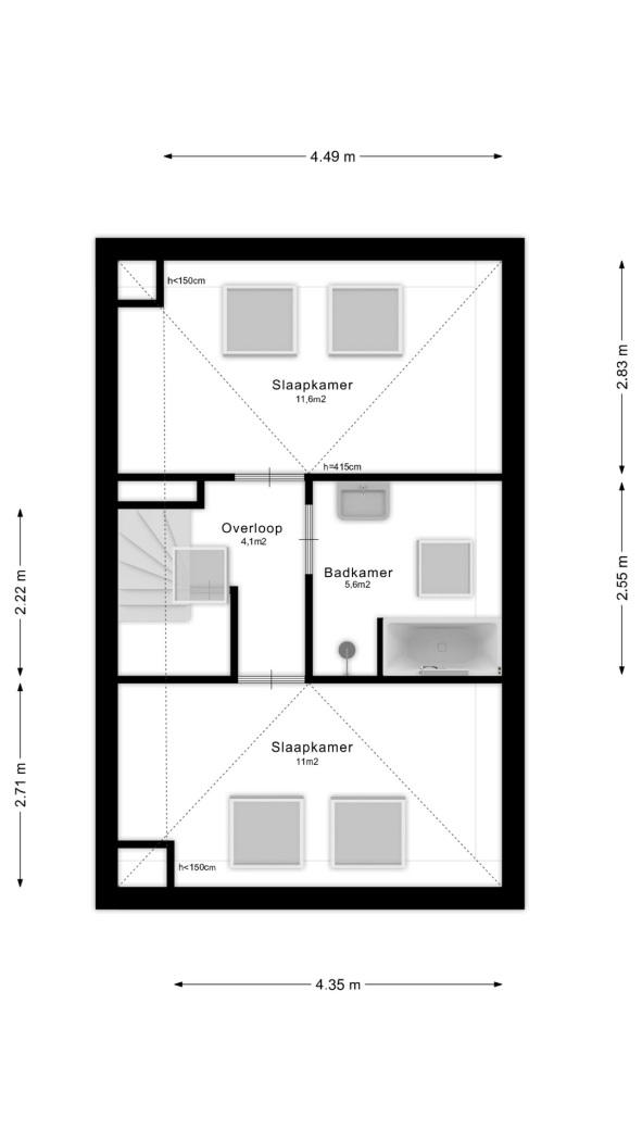
INDELING SLAAPVERDIEPING

We gaan verder naar boven, want hier wordt het alleen maar beter.
De overloop geeft toegang tot twee slaapkamers, beide met hoge plafonds, zichtbare spanten en twee dakramen. Licht, lucht en ruimte in het kwadraat.

Badkamer - 5,6 m²
En dan de badkamer… een moderne, bijna nieuwe wellnessruimte met een heerlijk ligbad, een ruime inloopdouche, een stijlvol wastafelmeubel, een designradiator én een dakraam dat voor prachtig natuurlijk licht zorgt.

Highlights van Burgstraat 38 – in één oogopslag
•Dubbele bovenwoning in het kloppend hart van Gorinchem
•1915 | gemoderniseerd in 2016
•Energielabel C
•Woonoppervlakte 87 m2
•Sfeervol met glas-in-lood en balkenplafonds
•Moderne woonkeuken met complete inbouwapparatuur
•Lichte woonkamer met uitzicht op Burgstraat en Laantje
•Zonnig dakterras (zuiden) met veel privacy
•Twee slaapkamers met hoge plafonds en dakramen
•Luxe badkamer met ligbad, wastafelmeubel en inloopdouche
•Voorzien van HR+ dubbele beglazing, met uitzondering van het raam in de bijkeuken
•Gezamenlijke berging op de begane grond
•In 2024 is het hele pand geschilderd
•Kleinschalige VvE Burgstraat 36, 38 en 40

Een woning die het stadsleven perfect combineert met rust en comfort. Kom kijken en laat je verrassen door Burgstraat 38.

Lees de volledige omschrijving

Kenmerken

Overdracht

Status Verkocht onder voorbehoud
Aanvaarding In overleg

Bouwvorm

Soort object Appartement
Bouwjaar 1915
Bouwvorm Bestaande bouw
Ligging In het centrum

Indeling

Woonoppervlakte 87 m²
Inhoud 295 m³
Aantal kamers 3
Aantal slaapkamers 2
Aantal woonlagen 2

Energie

Energieklasse C
Energie einddatum zaterdag 11 oktober 2031
Isolatie Dubbel glas
Warmwater Cv ketel
Verwarming Cv ketel

Buitenruimte

Tuin Geen tuin
Achterom Nee

Bergruimte

Garage Geen garage

Parkeergelegenheid

Voorzieningen Betaald parkeren, parkeergarage, parkeervergunningen

Dak

Dak Samengesteld dak

Overig

Permanente bewoning Ja
Onderhoud binnen Goed tot uitstekend
Onderhoud buiten Goed
Huidig gebruik Woonruimte
Huidige bestemming Woonruimte

Voorzieningen

Voorzieningen Tv kabel, dakraam, natuurlijke ventilatie

Kadastrale gegevens

Gemeente Gorinchem
Sectie C
Perceelnummer 5054
Eigendomssituatie Volle eigendom
OK-Kopie-van-v1-20250318-8G0A1414
Interesse in deze woning?

Chanel helpt u graag

Gratis waardebepaling

U denkt erover uw woning te verkopen en wilt graag weten wat het waard is? We komen graag bij u langs en bepalen de waarde van uw woning.

Gratis waardebepaling

Deel deze woning

Uw persoonlijke adviseur in de regio

Maak kennis met de HypotheekWeter

Ligging

Afspraak maken voor een bezichtiging? Neem contact met ons op

Vergelijkbare woningen