0183 - 635011 0183 - 635011 Stel een vraag Stel een vraag
Beschikbaar

Albert Verweystraat 42

GORINCHEM
€ 500.000,- k.k.
  • Woonoppervlakte 118 m2
  • Perceeloppervlakte 222 m2
  • Aantal slaapkamers 5
  • Bouwjaar 1993

Omschrijving

Grote hoekwoning met 3 woonlagen, rechte wanden, vijf (!) slaapkamers, zonnige tuin, energielabel A én vrijstaande garage.

Wauw. Wat een ruimte! Deze hoekwoning pakt het groots aan met maar liefst drie volledige woonlagen, vijf slaapkamers én een vrijstaande garage. Hier woon je royaal, ruim en licht – op een fantastische plek in het fijne Gorinchem-Oost.

Laten we eerlijk zijn: de woning is toe aan een frisse touch. Maar juist dat maakt het zo interessant – je kunt hier helemaal je eigen stempel op drukken. Zie het als een blanco canvas van 118 m², klaar voor jouw woonideeën!

Wat je krijgt?
Een royale hoekwoning uit 1993, gebouwd met oog voor ruimte en comfort. Dankzij de rechte wanden – ook op de verdiepingen – profiteer je van maximale indelingsvrijheid zonder schuine daken of verloren hoeken. De erker op de begane grond zorgt niet alleen voor extra meters, maar ook voor een zee van licht in de royale woonkamer van 6,65 meter breed. Aan de voorzijde tref je een praktische U-keuken, klaar om jouw kookkunsten te ondersteunen.

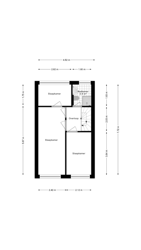
Boven: vijf (!) slaapkamers, verdeeld over twee verdiepingen. Ruimte voor kinderen, een thuiswerkplek, logeerkamer, hobbyruimte… of gewoon een walk-in closet. De badkamer is netjes en compleet met douchecabine, tweede toilet, wastafelmeubel en designradiator.

Buiten: volop buitenruimte met een voor-, zij- én achtertuin op het zonnige zuidwesten. Alles bestraat, dus weinig onderhoud en veel ruimte om te genieten. Achter in de tuin vind je een vrijstaande garage van 17 m², compleet met een praktische loopdeur naar de tuin. Voor de garage ligt een eigen oprit – ideaal om je auto comfortabel op eigen terrein te parkeren.

Waarom jij dit huis wél wilt:
•Hoekwoning op een ruim perceel van 222 m²
•Energielabel A
•Drie volwaardige woonlagen met rechte wanden (dus geen schuine verrassingen boven)
•Vijf slaapkamers – echt waar!
•Woonkamer van maar liefst 6,65 meter breed met erker en veel lichtinval
•Tuindeur naar het zonnige terras – lekker buiten zitten op het zuidwesten
•Vrijstaande garage (17 m²) achterin de tuin met eigen oprit en loopdeur
•Tuin rondom: voor, zij én achter – allemaal bestraat
•Rolluiken rondom – praktisch en comfortabel
•U-vormige keuken aan de voorzijde met apparatuur
•Fijne badkamer met douchecabine, wastafel, 2e toilet en designradiator
•Energielabel A – dat is fijn wonen én voordelig
•Toplocatie in Gorinchem-Oost met winkels, scholen, centrum en uitvalswegen binnen handbereik

Klaar om jouw woonwens waar te maken?
Deze ruime woning wacht op een nieuwe eigenaar met visie, lef en zin om er iets moois van te maken. En dat zou jij zomaar kunnen zijn.

Lees de volledige omschrijving

Kenmerken

Overdracht

Status Beschikbaar
Aanvaarding In overleg

Bouwvorm

Soort object Woonhuis
Soort woning Eengezinswoning
Type woning Hoekwoning
Bouwjaar 1993
Bouwvorm Bestaande bouw
Ligging Aan een rustige weg, in een woonwijk

Indeling

Woonoppervlakte 118 m²
Perceeloppervlakte 222 m²
Inhoud 400 m³
Aantal kamers 6
Aantal slaapkamers 5
Aantal woonlagen 3

Energie

Energieklasse A
Energie einddatum maandag 2 juli 2035
Isolatie Dubbel glas, volledig geïsoleerd
Warmwater Cv ketel
Verwarming Cv ketel

Buitenruimte

Tuin Achtertuin, voortuin, zijtuin
Hoofdtuin Achtertuin
Oppervlakte hoofdtuin 88 m²
Ligging hoofdtuin Zuid-west
Achterom Ja
Kwaliteit tuin Normaal

Bergruimte

Garage Vrijstaand steen
Voorzieningen Elektra

Parkeergelegenheid

Voorzieningen Openbaar parkeren, op eigen terrein

Dak

Dak Plat dak

Overig

Permanente bewoning Ja
Onderhoud binnen Redelijk
Onderhoud buiten Redelijk
Huidig gebruik Woonruimte
Huidige bestemming Woonruimte

Voorzieningen

Voorzieningen Mechanische ventilatie, rolluiken, tv kabel, natuurlijke ventilatie

Kadastrale gegevens

Gemeente Gorinchem
Sectie F
Perceelnummer 2003
Oppervlakte 222 m²
Eigendomssituatie Volle eigendom
OK-Kopie-van-v1-20250318-8G0A1414
Interesse in deze woning?

Chanel helpt u graag

Gratis waardebepaling

U denkt erover uw woning te verkopen en wilt graag weten wat het waard is? We komen graag bij u langs en bepalen de waarde van uw woning.

Gratis waardebepaling

Deel deze woning

Uw persoonlijke adviseur in de regio

Maak kennis met de HypotheekWeter

Ligging

Afspraak maken voor een bezichtiging? Neem contact met ons op

Vergelijkbare woningen