0183 - 635011 0183 - 635011 Stel een vraag Stel een vraag

De Phoenix

Hank Vraagprijs van € 348.000 tot € 535.000
  • Aantal woningen22

Omschrijving

De bouw is gestart, Woningborg Afbouwgarantie van toepassing!

Wonen in de Phoenix: een oase van rust
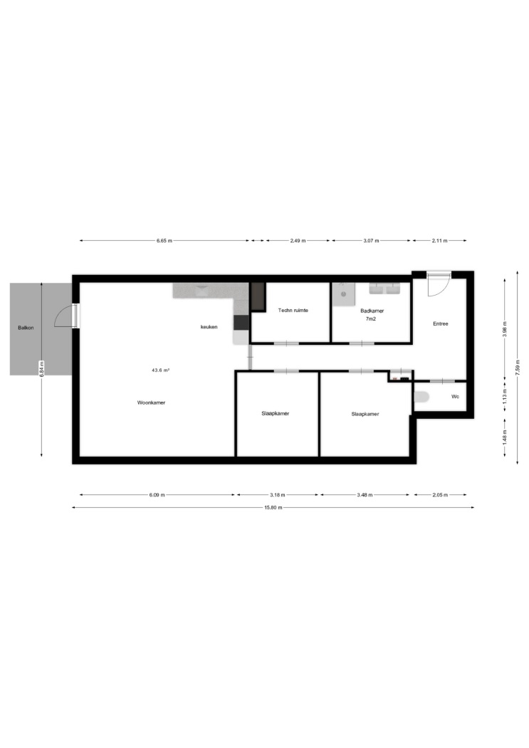
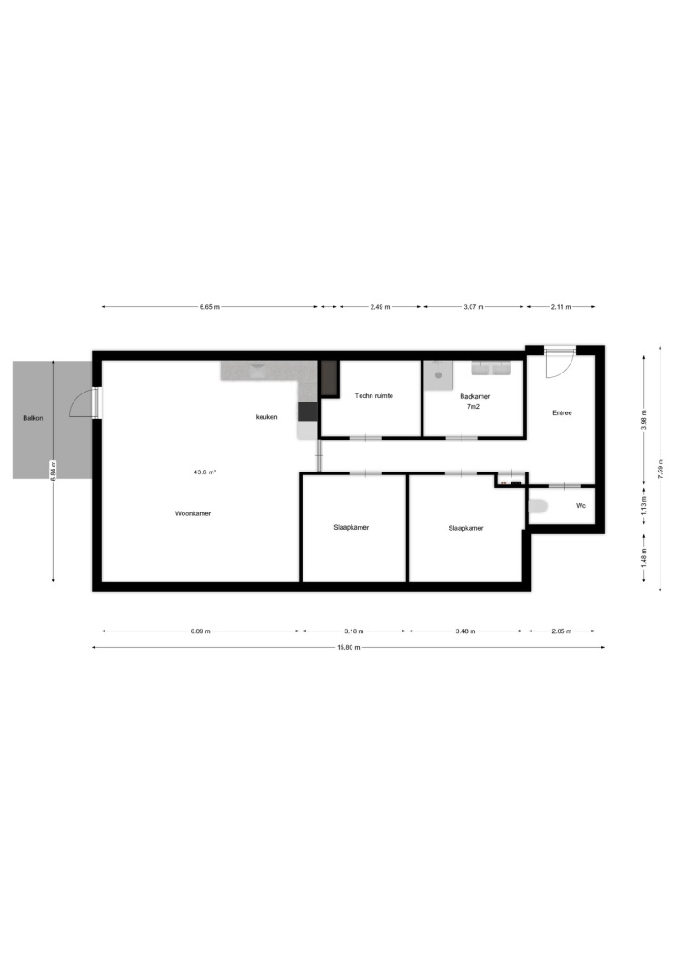
Het complex bestaat uit 22 ruime appartementen, variërend in grootte van 77 tot 121 vierkante meter. Elk appartement is zorgvuldig ontworpen om maximaal comfort en functionaliteit te bieden. Met een doordachte indeling en sfeervolle omgeving creëren deze appartementen een oase van rust. Elk appartement beschikt over een eigen balkon of terras, waardoor bewoners kunnen genieten van de prachtige omgeving en de frisse lucht. Of u nu ‘s ochtends wilt genieten van een kopje koffie op uw balkon of ‘s avonds wilt ontspannen met een goed boek, het balkon of terras biedt de perfecte buitenruimte om te ontspannen en te genieten van het uitzicht.

Omgeving en Ligging
Genieten in Nationaal Park De Biesbosch
We nemen u mee naar Hank, een charmant dorp in de provincie Noord-Brabant. Hank is omgeven door prachtige natuur en groene landschappen. Hier ontdekt u de vele fiets- en wandelpaden door groene bossen, langs schilderachtige rivieren en over uitgestrekte weilanden. Het dorp ligt aan de rivier de Maas, met de Biesbosch als 'achtertuin'.

Hank grenst aan natuurgebied De Biesbosch. Het is een nationaal park, bekend om zijn wateren, moerassen en drasland. Met zijn talrijke diersoorten is dit een heerlijke plek voor natuurliefhebbers. Hank biedt een welkome ontsnapping aan de drukte van de stad. Hier geniet u van de rust en stilte van het platteland, terwijl u toch gemakkelijk toegang hebt tot de nabijgelegen steden en voorzieningen.

Centrale ligging
De Phoenix is gelegen op de hoek van de Kerkstraat en de Sint Elisabethstraat in Hank. De Kerkstraat is de straat die het hart van het dorp doorkruist. Het is een historische straat met een unieke charme. Langs de Kerkstraat zijn diverse winkels, restaurants en andere voorzieningen te vinden. Hoewel het midden in de natuur ligt, ligt Hank gunstig ten opzichte van de nabijgelegen steden. De steden zijn goed bereikbaar doordat het dorp goed verbonden is met het wegennet zoals de A27.

Alle voorziening om de hoek
Wonen in de Phoenix biedt niet alleen comfort op het gebied van wonen. Ook de omgeving draagt hier aan bij! Voor uw dagelijkse boodschappen kunt u gemakkelijk terecht bij de supermarkt in de straat. Ook de bakker, apotheek, tandarts, slager en kapper zitten om de hoek. Zin om een hapje buiten de deur te eten? Op loopafstand bevinden zich meerdere restaurants voor u om uit te kiezen. Wanneer u een stukje fietsen niet erg vindt staat u met nog geen kwartiertje in een fantastisch restaurant in de Biesbosch. Zelfs de golfbaan zit hier in de buurt. Ideaal, toch?

Lees de volledige omschrijving

Kenmerken

Status Beschikbaar
Start verkoop donderdag 22 februari 2024
Adres 4273 CB Hank
Aantal woningen 22
PLR55485
Interesse in deze woning?

Dionne helpt u graag

Deel dit project

Woningen

Bouwnr. Kavels Bouwtype Type Adres Woonoppervlak Kaveloppervlak Slaapkamers Prijs Status
1 Appartement Appartement Bouwnummer ong 121 m2 2 € 519.000,- v.o.n. Verkocht
2 Appartement Appartement Bouwnummer ong 121 m2 2 € 499.000,- v.o.n. Onder optie
3 Appartement Appartement Bouwnummer ong 121 m2 2 € 509.000,- v.o.n. Beschikbaar
4 Appartement Appartement Bouwnummer ong 87 m2 2 € 348.000,- v.o.n. Verkocht
5 Appartement Appartement Bouwnummer ong 86 m2 2 € 348.000,- v.o.n. Verkocht
6 Appartement Appartement Bouwnummer ong 115 m2 3 € 489.000,- v.o.n. Verkocht
7 Appartement Appartement Bouwnummer ong 121 m2 2 € 535.000,- v.o.n. Verkocht
8 Appartement Appartement Bouwnummer ong 121 m2 2 € 525.000,- v.o.n. Onder optie
9 Appartement Appartement Bouwnummer ong 121 m2 2 € 530.000,- v.o.n. Verkocht
10 Appartement Appartement Bouwnummer ong 87 m2 2 € 389.000,- v.o.n. Verkocht
11 Appartement Appartement Bouwnummer ong 87 m2 2 € 389.000,- v.o.n. Verkocht
12 Appartement Appartement Bouwnummer ong 86 m2 2 € 389.000,- v.o.n. Verkocht
13 Appartement Appartement Bouwnummer ong 97 m2 2 € 435.000,- v.o.n. Beschikbaar
14 Appartement Appartement Bouwnummer ong 83 m2 2 € 348.000,- v.o.n. Verkocht
15 Appartement Appartement Bouwnummer ong 83 m2 2 € 385.000,- v.o.n. Verkocht
16 Appartement Appartement Bouwnummer ong 114 m2 2 € 525.000,- v.o.n. Verkocht
17 Appartement Appartement Bouwnummer ong 121 m2 2 € 525.000,- v.o.n. Verkocht
18 Appartement Appartement Bouwnummer ong 120 m2 2 € 529.000,- v.o.n. Verkocht
19 Appartement Appartement Bouwnummer ong 82 m2 2 € 375.000,- v.o.n. Verkocht
20 Appartement Appartement Bouwnummer ong 82 m2 2 € 375.000,- v.o.n. Verkocht
21 Appartement Appartement Bouwnummer ong 81 m2 2 € 375.000,- v.o.n. Verkocht
22 Appartement Appartement Bouwnummer ong 77 m2 2 € 348.000,- v.o.n. Verkocht

Ligging

Meer informatie over dit project? Neem contact met ons