0183 - 635011 0183 - 635011 Stel een vraag Stel een vraag
Open huis

Wilgenhof 7

SPIJK
€ 400.000,- k.k.
Open huis

Meld u telefonisch aan voor de kijkdag op donderdag 07 mei 2026 van 13:00 tot 17:00 uur.

  • Woonoppervlakte 109 m2
  • Perceeloppervlakte 161 m2
  • Aantal slaapkamers 4
  • Bouwjaar 1972

Omschrijving

Open Dag | Donderdag 7 mei | 13:00 – 17:00 uur
Ontdek deze woning tijdens ons speciale kijkmoment met persoonlijke bezichtigingen. Bel ons vooraf om je eigen tijdslot te reserveren. Wij ontvangen je graag voor een rustige, ontspannen rondleiding, helemaal afgestemd op jou.

Thuiskomen in Spijk

Wonen in een gezellig, landelijk dorp waar je zó naar de Linge loopt én alle voorzieningen dichtbij zijn? Dan is dit jouw kans.

Deze instapklare eengezinswoning ligt heerlijk rustig in de dorpskern, aan een straat met uitsluitend bestemmingsverkeer. Een fijne plek waar rust, ruimte en gemak perfect samenkomen. Ideaal voor starters, jonge gezinnen én iedereen die net wat ruimer wil wonen.

Binnen word je direct verrast door het fijne licht en de praktische indeling. De woonkamer is heerlijk licht dankzij de grote raampartijen en voelt meteen warm en uitnodigend aan. De moderne keuken is een echte eyecatcher en voorzien van diverse inbouwapparatuur, waaronder een inductiekookplaat, afzuigkap en combi oven. Hier wordt koken vanzelf leuk.

Met maar liefst vier slaapkamers heb je volop mogelijkheden. Of je nu extra kamers zoekt voor kinderen, een thuiswerkplek, walk-in closet of hobbyruimte: hier kan het allemaal. De vierde slaapkamer op zolder met dakkapel maakt het plaatje compleet. De badkamer is praktisch ingericht met een douchecabine en wastafelmeubel.

Ook buiten is het genieten. De circa 11 meter diepe achtertuin op het oosten is een heerlijke plek voor een ontbijtje in de zon, een borrel met vrienden of gewoon ontspannen na een drukke dag. Daarnaast is er een praktische berging en parkeer je gemakkelijk voor de deur.

Kortom: een verrassend ruime en instapklare woning op een heerlijke plek. Landelijk wonen met sfeer, ruimte en de stad dichtbij.

Spijk is een sfeervol en waterrijk dorp aan de prachtige rivier de Linge. Als meest westelijk gelegen dorp van Gelderland ligt het bijna op een uniek drielandenpunt, grenzend aan Zuid-Holland en Utrecht. Deze bijzondere ligging zorgt voor een landelijke en rustige woonomgeving, terwijl alle voorzieningen dichtbij zijn.

Het dorp heeft een actief verenigingsleven met dorpshuis De Lindehof als centraal ontmoetingspunt. Vanuit huis wandel je zo naar de Zuiderlingedijk en geniet je van het uitzicht over de Linge. In het voorjaar en de zomer is Spijk geliefd bij fietsers die de bekende Lingeroute volgen en met het voetveer oversteken richting Arkel of Kedichem.

Voorzieningen zoals een basisschool, speeltuin en winkelcentrum Hoog Dalem liggen dichtbij. Ook recreatiemogelijkheden zijn volop aanwezig met het Lingebos, golfbaan The Dutch en de historische vestingstad

Gorinchem op korte afstand. Dankzij station Gorinchem en de nabijgelegen A15 en A27 bereik je steden als Utrecht, Rotterdam, Breda en Den Bosch eenvoudig.

Kortom: een ruime gezinswoning op een heerlijke plek, waar rust, ruimte en bereikbaarheid perfect samenkomen. Hier woon je landelijk, met de stad verrassend dichtbij.

Highlights
•Bouwjaar 1972
•Woonoppervlakte ca. 109 m²
•Perceeloppervlakte 161 m²
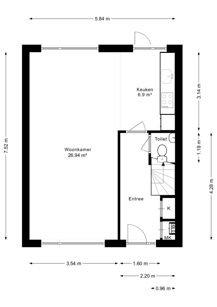
•Royale woonkamer van ca. 27 m²
•Moderne keuken van ca. 7 m²
•Vier slaapkamers, waarvan één met dakkapel
•Badkamer voorzien van douchecabine en wastafelmeubel
•Energielabel C
•Achtertuin op het oosten van ca. 66 m²
•Vrijstaande stenen berging van ca. 10 m²
•Diepe voortuin met prettige entree
•Parkeergelegenheid rondom de woning
•Onderdeel van een speels vormgegeven woonblok van zes woningen, waarbij een blok van drie woningen stijlvol verspringt
•Gelegen in een wonderschone, rustige omgeving nabij uitvalswegen en voorzieningen
•Bij verkoop wordt een niet-zelfbewoningsclausule opgenomen

Lees de volledige omschrijving

Kenmerken

Overdracht

Status Beschikbaar
Aanvaarding In overleg

Bouwvorm

Soort object Woonhuis
Soort woning Eengezinswoning
Type woning Tussenwoning
Bouwjaar 1972
Bouwvorm Bestaande bouw
Ligging Aan een rustige weg, in een woonwijk

Indeling

Woonoppervlakte 109 m²
Perceeloppervlakte 161 m²
Inhoud 353 m³
Aantal kamers 5
Aantal slaapkamers 4
Aantal woonlagen 3

Energie

Energieklasse C
Energie einddatum woensdag 12 april 2028
Isolatie Dubbel glas
Warmwater Cv ketel
Verwarming Cv ketel

Buitenruimte

Tuin Achtertuin, voortuin
Hoofdtuin Achtertuin
Oppervlakte hoofdtuin 66 m²
Ligging hoofdtuin Oost
Achterom Ja
Kwaliteit tuin Verwaarloosd

Bergruimte

Garage Geen garage
Schuur / Berging Vrijstaand steen

Parkeergelegenheid

Voorzieningen Openbaar parkeren

Dak

Dak Zadeldak

Overig

Permanente bewoning Ja
Onderhoud binnen Goed
Onderhoud buiten Goed
Huidig gebruik Woonruimte
Huidige bestemming Woonruimte

Voorzieningen

Voorzieningen Natuurlijke ventilatie

Kadastrale gegevens

Gemeente Heukelum
Sectie E
Perceelnummer 428
Oppervlakte 161 m²
Eigendomssituatie Volle eigendom
v1-20250318-8G0A1538EE
Interesse in deze woning?

Stefan helpt u graag

Gratis waardebepaling

U denkt erover uw woning te verkopen en wilt graag weten wat het waard is? We komen graag bij u langs en bepalen de waarde van uw woning.

Gratis waardebepaling

Deel deze woning

Uw persoonlijke adviseur in de regio

Maak kennis met de HypotheekWeter

Ligging

Afspraak maken voor een bezichtiging? Neem contact met ons op