0183 - 635011 0183 - 635011 Stel een vraag Stel een vraag
Verhuurd

Tinnegietersteeg 14

GORINCHEM
Huurprijs: € 1.595,- per maand
  • Woonoppervlakte 114 m2
  • Aantal slaapkamers 3
  • Bouwjaar 1866

Omschrijving

Ruim 3-kamer appartement met dakterras in hartje Gorinchem!

Wonen in de binnenstad van Gorinchem, met uitzicht op de Grote Kerk en alles binnen handbereik? Dit stijlvolle 3-kamer appartement combineert het comfort van modern wonen met de charme van karakteristieke details.

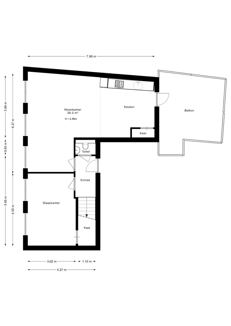
Indeling
Via de lift bereik je vrijwel het gehele appartement, slechts een klein trapje scheidt je van de entree. De ruime hal geeft toegang tot het toilet, de eerste slaapkamer en de trap naar de bovenverdieping. Loop je rechtdoor, dan kom je in de lichte woonkamer met hoge ramen en een hoog plafond. De moderne open keuken combineert comfort en functionaliteit.

De grote ramen met zonnescreens zorgen niet alleen voor veel licht, maar ook voor een prachtig uitzicht op de Grote Kerk. Aansluitend aan de keuken bevindt zich het royale dakterras van maar liefst 18 m², waar je heerlijk kunt genieten van de zon.

Op de tweede verdieping vind je twee ruime slaapkamers met zichtbare houten balken die de woning een warme, karakteristieke sfeer geven. De moderne badkamer is voorzien van een inloopdouche, dubbele wastafel en tweede toilet. Daarnaast beschikt het appartement over een handige externe berging op de begane grond.

Kenmerken:
- Woonoppervlakte ca. 114 m²
- Heerlijk dakterras van 18 m²
- 3 ruime slaapkamers
- Authentieke details: houten balken, hoge ramen en plafonds
- Zonnescreens voor optimaal wooncomfort
- Eigen berging op de begane grond
- Toplocatie in de binnenstad van Gorinchem

Een unieke kans om modern te wonen op een historische plek, met alle winkels, restaurants en terrassen letterlijk om de hoek. Ook de bereikbaarheid is ideaal: binnen enkele minuten ben je op station Gorinchem en via de A15 en A27 rij je zo naar steden als Utrecht, Breda of Rotterdam.

Huurprijs: € 1.595,- per maand excl. g/w/e + € 50,- servicekosten
Contract: minimaal 12 maanden doorlopend voor onbepaalde tijd
Inkomenscheck: 3 x de huurprijs (bruto)
Beschikbaarheid: per direct
Waarborgsom: 2 x de kale huurprijs (€ 3.190,-)

Meld je telefonisch aan voor de kijkdag op dinsdag 21 oktober van 09:00 tot 13:00 uur!

Lees de volledige omschrijving

Kenmerken

Overdracht

Status Verhuurd
Aanvaarding In overleg

Bouwvorm

Soort object Appartement
Bouwjaar 1866
Bouwvorm Bestaande bouw

Indeling

Woonoppervlakte 114 m²
Inhoud 382 m³
Aantal kamers 4
Aantal slaapkamers 3
Aantal woonlagen 2

Energie

Warmwater Cv ketel
Verwarming Cv ketel

Buitenruimte

Tuin Geen tuin
Achterom Nee

Bergruimte

Garage Geen garage
Schuur / Berging Vrijstaand steen

Parkeergelegenheid

Voorzieningen Betaald parkeren

Dak

Dak Schilddak

Overig

Permanente bewoning Ja
Onderhoud binnen Goed tot uitstekend
Onderhoud buiten Goed tot uitstekend
Huidig gebruik Woonruimte
Huidige bestemming Woonruimte
hendri
Interesse in deze woning?

Hendri helpt u graag

Gratis waardebepaling

U denkt erover uw woning te verkopen en wilt graag weten wat het waard is? We komen graag bij u langs en bepalen de waarde van uw woning.

Gratis waardebepaling

Deel deze woning

Uw persoonlijke adviseur in de regio

Maak kennis met de HypotheekWeter

Ligging

Afspraak maken voor een bezichtiging? Neem contact met ons op