0183 - 635011 0183 - 635011 Stel een vraag Stel een vraag
Beschikbaar

Sportlaan 24

WERKENDAM
€ 540.000,- k.k.
  • Woonoppervlakte 151 m2
  • Perceeloppervlakte 344 m2
  • Aantal slaapkamers 4
  • Bouwjaar 1974

Omschrijving

Open Dag | vrijdag 20 maart | 12:00 – 16:00 uur
Ontdek deze woning tijdens ons speciale kijkmoment met persoonlijke bezichtigingen. Bel ons vooraf om je eigen tijdslot te reserveren. Wij ontvangen je graag voor een rustige, ontspannen rondleiding, helemaal afgestemd op jou.

Welkom aan de Sportlaan 24 in Werkendam
Een fijne en complete twee-onder-een-kapwoning met volop ruimte, een praktische indeling en een fraai onderhouden tuin rondom. Deze woning is ideaal voor gezinnen of voor wie op zoek is naar comfortabel wonen met extra bergruimte, zowel binnen als buiten. Met een lichte woonkamer, een dichte keuken, vier slaapkamers en een grote voor- en achtertuin biedt deze woning alles voor prettig en ontspannen wonen.

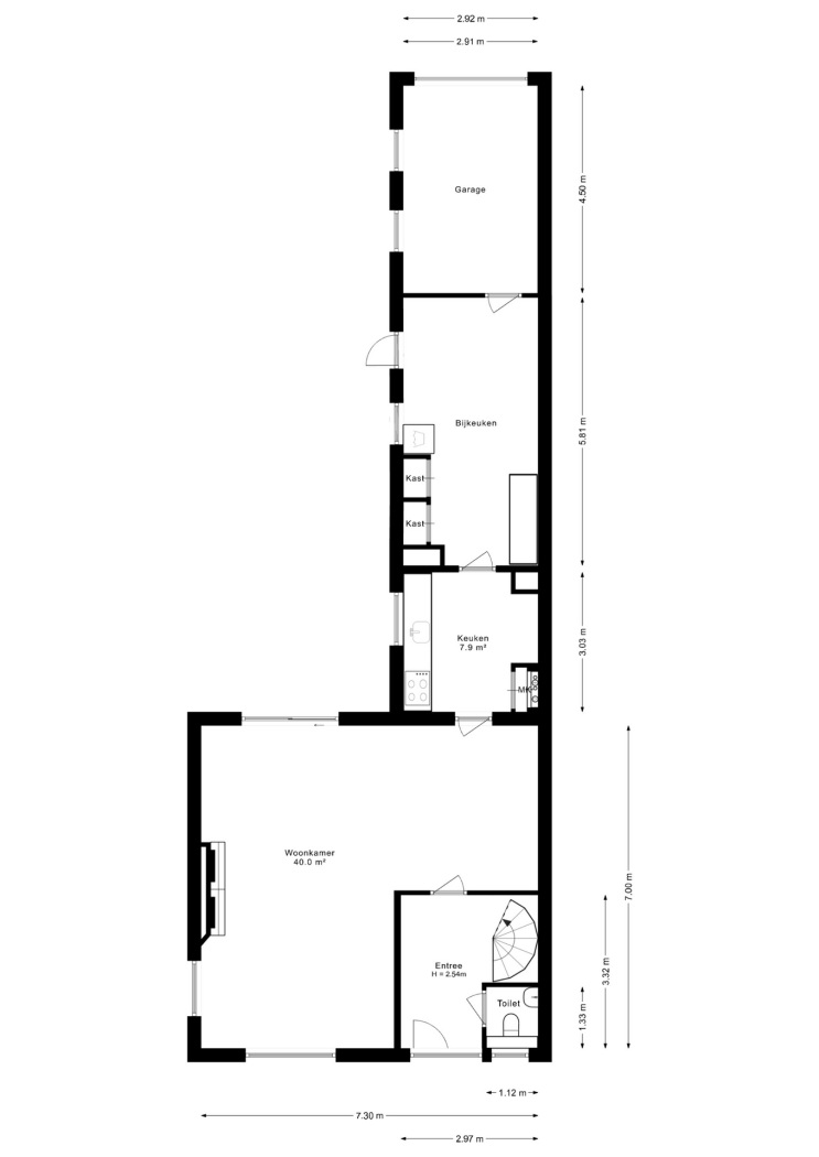
Entree & begane grond
Via de entree betreed je de woning en kom je in de hal met toegang tot de verschillende vertrekken. De woonkamer is heerlijk licht en biedt voldoende ruimte voor een comfortabele zithoek en een gezellige eethoek. De dichte keuken is praktisch ingericht en biedt volop mogelijkheden voor wie graag kookt. Aansluitend vind je de bijkeuken, ideaal voor extra opslag en huishoudelijke voorzieningen. Vanuit hier is er toegang tot de garage, wat zorgt voor extra gemak en bergruimte.
De tuin is een groot pluspunt van deze woning: zowel de voor- als achtertuin zijn ruim en goed onderhouden. De achtertuin biedt veel privacy en beschikt over een vrijstaande houten berging, perfect voor tuinmeubilair, fietsen of hobbyspullen.

Eerste verdieping
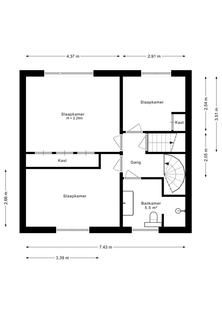
Op de eerste verdieping bevinden zich drie volwaardige slaapkamers, allen van goed formaat en prettig in te richten. De badkamer is compleet uitgevoerd met een moderne inloopdouche, een dubbele wastafel en een toilet, waardoor comfort en functionaliteit samenkomen.

Tweede verdieping
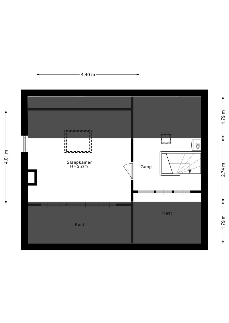
De tweede verdieping verrast met een extra slaapkamer en enorm veel kast- en opbergruimte. Deze verdieping is uitermate geschikt als logeerkamer, werkruimte of hobbykamer, met daarnaast volop plek om spullen netjes uit het zicht op te bergen.

Highlights van de woning
* Woonoppervlakte 151 m2
* Energielabel C
* Twee-onder-een-kapwoning
* Lichte woonkamer
* Dichte keuken met aansluitende bijkeuken
* Garage met directe toegang vanuit de woning
* Ruime, goed onderhouden voor- en achtertuin
* Achtertuin op het zuidwesten
* Vrijstaande houten berging in de achtertuin
* Vier slaapkamers verdeeld over twee verdiepingen
* Badkamer met inloopdouche, dubbele wastafel en toilet
* Veel kast- en opbergruimte op de tweede verdieping
* Open en rustige woonomgeving

Wonen in Werkendam
Werkendam is een prettige en levendige plaats waar dorps wonen en natuur hand in hand gaan. Het dorp beschikt over een compleet voorzieningenaanbod met onder andere supermarkten, winkels, scholen, sportverenigingen en horecagelegenheden, waardoor alles wat je nodig hebt binnen handbereik is. De gemoedelijke sfeer en het sterke verenigingsleven maken Werkendam tot een fijne woonplek voor jong en oud.
Daarnaast ligt Werkendam op korte afstand van het uitgestrekte natuurgebied De Biesbosch, een paradijs voor liefhebbers van wandelen, fietsen en varen. Ook de bereikbaarheid is uitstekend: via de uitvalswegen zijn omliggende plaatsen en steden snel en gemakkelijk te bereiken. Wonen in Werkendam betekent genieten van rust en ruimte, met alle dagelijkse voorzieningen én natuur dichtbij.

Sportlaan 24 in Werkendam is een woning met ruimte, comfort en een fijne ligging: een huis waar je je snel thuis zult voelen.

Lees de volledige omschrijving

Kenmerken

Overdracht

Status Beschikbaar
Aanvaarding In overleg

Bouwvorm

Soort object Woonhuis
Soort woning Eengezinswoning
Type woning Twee onder één kapwoning
Bouwjaar 1974
Bouwvorm Bestaande bouw

Indeling

Woonoppervlakte 151 m²
Perceeloppervlakte 344 m²
Inhoud 566 m³
Aantal kamers 6
Aantal slaapkamers 4
Aantal woonlagen 3

Energie

Energieklasse C
Energie einddatum woensdag 9 januari 2036
Isolatie Muurisolatie, vloerisolatie, dubbel glas
Warmwater Cv ketel
Verwarming Cv ketel

Buitenruimte

Tuin Achtertuin, voortuin
Hoofdtuin Achtertuin
Oppervlakte hoofdtuin 137 m²
Ligging hoofdtuin Zuid-west
Achterom Ja
Kwaliteit tuin Verzorgd

Bergruimte

Garage Aangebouwd steen
Schuur / Berging Vrijstaand hout

Parkeergelegenheid

Voorzieningen Openbaar parkeren, op eigen terrein

Dak

Dak Zadeldak

Overig

Permanente bewoning Ja
Onderhoud binnen Redelijk tot goed
Onderhoud buiten Goed tot uitstekend
Huidig gebruik Woonruimte
Huidige bestemming Woonruimte

Voorzieningen

Voorzieningen Mechanische ventilatie, tv kabel

Kadastrale gegevens

Gemeente Werkendam
Sectie R
Perceelnummer 1055
Oppervlakte 344 m²
Eigendomssituatie Volle eigendom
PLR55485
Interesse in deze woning?

Dionne helpt u graag

Gratis waardebepaling

U denkt erover uw woning te verkopen en wilt graag weten wat het waard is? We komen graag bij u langs en bepalen de waarde van uw woning.

Gratis waardebepaling

Deel deze woning

Uw persoonlijke adviseur in de regio

Maak kennis met de HypotheekWeter

Ligging

Afspraak maken voor een bezichtiging? Neem contact met ons op

Vergelijkbare woningen