0183 - 635011 0183 - 635011 Stel een vraag Stel een vraag
Verkocht onder voorbehoud

Pruylenborg 1

HENDRIK-IDO-AMBACHT
€ 375.000,- k.k.
  • Woonoppervlakte 100 m2
  • Perceeloppervlakte 126 m2
  • Aantal slaapkamers 5
  • Bouwjaar 1981

Omschrijving

Open Dag | zaterdag 11 april | 15:00 – 16:00 uur
Ontdek deze woning tijdens ons speciale kijkmoment met persoonlijke bezichtigingen. Bel ons vooraf om je eigen tijdslot te reserveren. Wij ontvangen je graag voor een rustige, ontspannen rondleiding, helemaal afgestemd op jou.

Ruime HOEKwoning met 5 slaapkamers en volop mogelijkheden.

Wonen in een hoekwoning met nét dat beetje extra ruimte en vrijheid? In de geliefde wijk ‘Krommeweg’ staat deze verrassend ruime 6-kamer hoekwoning met een zonnige tuin op het zuidwesten – een plek waar je op elk moment van de dag van het buitenleven geniet.

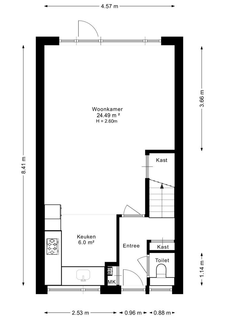
De woning heeft een fijne, praktische indeling. Op de begane grond vind je een lichte, tuingerichte woonkamer met directe toegang tot de tuin, waardoor binnen en buiten moeiteloos in elkaar overlopen. Daarnaast beschikt de woonkamer over een praktische trapkast, ideaal voor extra bergruimte. Aan de voorzijde ligt de keuken, voorzien van diverse inbouwapparatuur. In de hal bevindt zich een moderne toiletruimte.

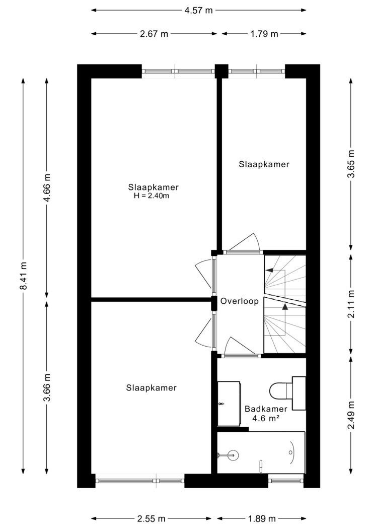
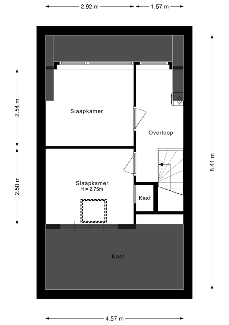
De eerste verdieping biedt drie goed bemeten slaapkamers en een badkamer. Op de tweede verdieping tref je een ruime voorzolder en nog eens twee slaapkamers, waarvan één met dakkapel – ideaal als extra slaap-, werk- of hobbyruimte.

De basis is goed: energielabel C, rolluiken en airconditioning in zowel de woonkamer als de hoofdslaapkamer zorgen voor comfort in alle seizoenen. Tegelijkertijd biedt de woning volop mogelijkheden om deze naar eigen smaak te moderniseren en er een eigentijds thuis van te maken.

Een huis met potentie, ruimte en een fijne ligging – klaar voor een nieuwe bewoner die hier zijn eigen verhaal wil schrijven.

Fijne ligging
De woning is gelegen op een uitstekende locatie in de geliefde, kindvriendelijke wijk 'Krommeweg'. Alle voorzieningen bevinden zich op korte afstand: winkelcentrum 'Louwersplein' ligt praktisch om de hoek en ook winkelcentrum Hoog Ambacht, scholen, sportverenigingen, zwembad 'De Louwert' en het Burgemeester 'Baxpark' zijn snel bereikbaar.
Daarnaast zijn zowel de uitvalswegen (A15 en A16) als het NS-station Zwijndrecht binnen enkele minuten te bereiken, wat zorgt voor een optimale bereikbaarheid.

Highlights van deze hoekwoning
•Bouwjaar: 1981
•Woonoppervlakte: ca. 100 m²
•Perceel: 126 m²
•Energielabel C
•Tuingerichte, lichte woonkamer met toegang tot de tuin
•Keuken aan de voorzijde met inbouwapparatuur
•3 slaapkamers op de eerste verdieping
•Rolluiken op de eerste verdieping
•Airconditioning in woonkamer en hoofdslaapkamer
•Badkamer met ligbad/douche, 2e toilet en wastafelmeubel
•Tweede verdieping met 2 slaapkamers (dakraam en dakkapel) + bergruimte
•Zonnige achtertuin op het zuidwesten met achterom
•Bergingen aanwezig (achtertuin en zijkant)
•Gelegen nabij winkels, scholen en overige voorzieningen

Bijzonderheden
•Ouderdoms- en asbestclausule van toepassing
•Niet-zelfbewoningsclausule van toepassing
•Projectnotaris Clercx Leenders Netwerk Notarissen

INDELING BEGANE GROND

Welkom
Via de entree kom je in de hal, waar je toegang hebt tot de woonkamer, de moderne toiletruimte, de meterkast en de trapopgang naar de eerste verdieping.

Wonen & leven
De ruime woonkamer vormt het hart van de woning en biedt volop mogelijkheden voor een comfortabel zit- en eetgedeelte. Aan de achterzijde bevindt zich het zitgedeelte, met een prettig uitzicht op de verzorgde achtertuin. Op zonnige dagen zet je de deur open en vloeien binnen en buiten moeiteloos in elkaar over.
De woonkamer is voorzien van een nette tegelvloer en airconditioning, wat zorgt voor extra comfort in elk seizoen. Daarnaast is er een praktische trapkast aanwezig – ideaal voor het netjes opbergen van bijvoorbeeld voorraad en huishoudelijke spullen.

Koken
Aan de voorzijde van de woning bevindt zich de halfopen keuken in hoekopstelling. De keuken is compleet uitgevoerd met diverse inbouwapparatuur en biedt dankzij de vele kasten en lades volop bergruimte. Een fijne plek om te koken met zicht op de straatzijde.

INDELING EERSTE VERDIEPING

Slapen & ontspannen
Op de eerste verdieping bevinden zich drie goed bemeten slaapkamers, waarvan twee aan de achterzijde en één aan de voorzijde van de woning. De hoofdslaapkamer is bovendien voorzien van airconditioning, wat zorgt voor extra comfort tijdens warme dagen en nachten.

Badkamer
De badkamer is compleet uitgevoerd met een wastafelmeubel, een ligbad met douchegedeelte, een tweede toilet en een designradiator. Een nette basis die naar wens gemoderniseerd kan worden.

INDELING TWEEDE VERDIEPING

Via een vaste trap bereik je de voorzolder, voorzien van een dakkapel die zorgt voor een aangename lichtinval. Hier bevinden zich de aansluitingen voor de was- en droogapparatuur, evenals de opstelplaats van de cv-combiketel.

De verdieping beschikt over twee goede slaapkamers. Eén kamer is voorzien van een dakraam, een inbouwkast en een praktische knieschot bergruimte. Daarnaast is er een hooggelegen insteek zolder aanwezig, ideaal voor extra opslag.
De tweede slaapkamer, gelegen aan de achterzijde, is uitgerust met een dakkapel en leent zich uitstekend als werk-, hobby- of extra slaapkamer.

Tuin – buitenruimte
De onderhoudsvriendelijke achtertuin ligt ideaal op het zonnige zuidwesten, waardoor je hier van het vroege voorjaar tot laat in het najaar volop van de zon geniet. De tuin is netjes aangelegd met bestrating en omgeven door schuttingen, wat zorgt voor een verzorgde uitstraling en veel privacy.
Via de zijtuin bereik je de houten berging en achterin de tuin bevindt zich een tweede berging, praktisch verdeeld in twee compartimenten. Vanuit deze berging heb je toegang tot de achterom.
De achtergevel is bovendien voorzien van een zonnescherm en een buitenkraan/wasbak, wat het comfort en gebruiksgemak compleet maakt.

Kom kijken en laat je verrassen door deze fijne woning!

Lees de volledige omschrijving

Kenmerken

Overdracht

Status Verkocht onder voorbehoud
Aanvaarding In overleg

Bouwvorm

Soort object Woonhuis
Soort woning Eengezinswoning
Type woning Hoekwoning
Bouwjaar 1981
Bouwvorm Bestaande bouw
Ligging Aan een rustige weg, in een woonwijk

Indeling

Woonoppervlakte 100 m²
Perceeloppervlakte 126 m²
Inhoud 352 m³
Aantal kamers 6
Aantal slaapkamers 5
Aantal woonlagen 3

Energie

Energieklasse C
Energie einddatum zaterdag 2 februari 2036
Isolatie Dakisolatie, muurisolatie, gedeeltelijk dubbel glas
Warmwater Cv ketel
Verwarming Cv ketel

Buitenruimte

Tuin Achtertuin, voortuin, zijtuin
Hoofdtuin Achtertuin
Oppervlakte hoofdtuin 57 m²
Ligging hoofdtuin Zuid-west
Achterom Ja
Kwaliteit tuin Normaal

Bergruimte

Garage Geen garage
Schuur / Berging Vrijstaand hout

Parkeergelegenheid

Voorzieningen Openbaar parkeren

Dak

Dak Zadeldak

Overig

Permanente bewoning Ja
Onderhoud binnen Redelijk tot goed
Onderhoud buiten Goed
Huidig gebruik Woonruimte
Huidige bestemming Woonruimte

Voorzieningen

Voorzieningen Rolluiken, tv kabel, buitenzonwering, airconditioning, dakraam, natuurlijke ventilatie

Kadastrale gegevens

Gemeente Hendrik-Ido-Ambacht
Sectie E
Perceelnummer 10436
Oppervlakte 126 m²
Eigendomssituatie Volle eigendom
v1-20250318-8G0A1608E
Interesse in deze woning?

Leo helpt u graag

Gratis waardebepaling

U denkt erover uw woning te verkopen en wilt graag weten wat het waard is? We komen graag bij u langs en bepalen de waarde van uw woning.

Gratis waardebepaling

Deel deze woning

Uw persoonlijke adviseur in de regio

Maak kennis met de HypotheekWeter

Ligging

Afspraak maken voor een bezichtiging? Neem contact met ons op