0183 - 635011 0183 - 635011 Stel een vraag Stel een vraag
Open huis

Kwekelstraat 24

GORINCHEM
€ 450.000,- k.k.
Open huis

Meld u telefonisch aan voor de kijkdag op donderdag 22 januari 2026 van 13:15 tot 16:45 uur.

  • Woonoppervlakte 137 m2
  • Aantal slaapkamers 4
  • Bouwjaar 1902

Omschrijving

Open Dag | Donderdag 22 januari | 13:15 – 16:45 uur
Ontdek deze woning tijdens ons speciale kijkmoment met persoonlijke bezichtigingen. Bel ons vooraf om je eigen tijdslot te reserveren. Wij ontvangen je graag voor een rustige, ontspannen rondleiding, helemaal afgestemd op jou.

Tof wonen én werken midden in het centrum, maar verrassend rustig met een fraaie stadstuin!

Op één van de meest geliefde locaties in de historische binnenstad van Gorinchem bevindt zich dit bijzondere, volledig gerenoveerde stadsjuweel uit 1902. Achter de charmante gevel ontvouwt zich een sfeervol en karaktervol stadspand (appartementsrecht), waar authentieke details en modern wooncomfort op harmonieuze wijze samenkomen.

De woning is verdeeld over drie woonlagen en biedt circa 137 m² woonoppervlakte, vier royale slaap-/werkkamers en als absolute verrassing een beschutte stadstuin van ca. 28 m² – een heerlijke plek om tot rust te komen midden in de stad. Binnen ervaar je een warme, rustige sfeer, terwijl je buiten zo het levendige centrum met winkels, horeca en cultuur instapt.

Dankzij de bestemming Gemengd-1 is deze woning bovendien ideaal voor wie wonen wil combineren met werken aan huis, zoals een kantoor-, praktijk- of hobbyruimte.

Buiten ligt de levendige binnenstad aan je voeten, met cafés, winkels en de vestingwallen op loopafstand. Binnen ervaar je juist rust, ruimte en comfort. Dit is geen doorsnee huis, maar een karaktervolle plek om thuis te komen én te ondernemen wanneer je wilt – met de dynamiek van de stad altijd dichtbij. Een woning met historie, stijlvol gehuld in een eigentijds jasje.

Enkele ruimtes zijn gestyled met AI-renders om een inspirerend beeld te geven van de mogelijkheden en sfeer.

Kom kijken en laat je verrassen!

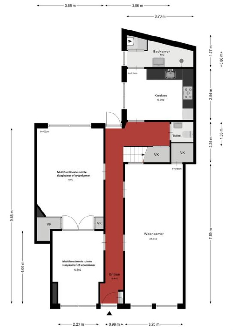
INDELING BEGANE GROND

Een sfeervolle begane grond waar authentieke charme en modern wooncomfort naadloos samenkomen. De statige voorgevel met originele hanenkammen vormt een prachtige eerste indruk. Via de eigen voordeur betreed je de lange, elegante gang met hoge plafonds, Art-Deco tegelvloer en strak stucwerk. Deze gang vormt het hart van de woning en biedt toegang tot alle vertrekken.

De originele trap met houten spijlen is een echte blikvanger en ademt de sfeer van vroeger. Onder de trap bevindt zich praktische bergruimte en aan het einde van de gang leidt een deur naar de tuin.

Op de begane grond ervaar je meteen de veelzijdigheid van de woning: een plek om te wonen, werken en creëren.

Aan de linkerzijde ligt een royale multifunctionele ruimte, ideaal als woonkamer en-suite, kantoor of twee slaapkamers (ca. 19 m² en 10,5 m²). De ruimte strekt zich uit over de volledige diepte van de woning en is verdeeld in een voor- en achterkamer, gescheiden door en-suite deuren met kastruimte. Afgewerkt met eiken laminaat in blokmotief, stucwerk wanden en hoge plafonds.

Aan de rechterzijde bevindt zich een lichte kamer van ca. 25 m², bereikbaar via fraaie glasdeuren. Dankzij de twee ramen aan de voorzijde is dit een prettige ruimte die zich uitstekend leent als woonkamer, werkplek of hobbyruimte. Ook hier zorgen het hoge plafond, de nette afwerking en het eiken laminaat voor een rustige en stijlvolle uitstraling.

De woonkeuken aan de achterzijde is een fijne, lichte ruimte en praktisch ingericht met een moderne hoekopstelling en een stijlvol natuurstenen werkblad. De keuken is voorzien van diverse inbouwapparatuur, waaronder een koelkast, vaatwasmachine, combimagnetron, oven, inductiekookplaat en een RVS afzuigkap. Vanuit het raam geniet je van een prettig uitzicht op de tuin.

Aansluitend bevindt zich de badkamer, uitgerust met een royale inloopdouche, een wastafelmeubel met hardstenen waskom en zwarte accenten. De ruimte is elegant afgewerkt met mozaïektegels en witte wandtegels, voorzien van een designradiator en beschikt over zowel mechanische als natuurlijke ventilatie.

INDELING EERSTE VERDIEPING

Via de charmante, originele trap bereik je de overloop van de eerste verdieping. Deze biedt toegang tot een aparte toiletruimte en een royale slaapkamer van ca. 14 m². De slaapkamer beschikt over twee fraaie lichtramen en authentieke houten vloerdelen, wat zorgt voor een warme en rustige uitstraling.
De toiletruimte is volledig vernieuwd en stijlvol uitgevoerd met een zwevend toilet en een fonteinmeubel. De combinatie van grijs marmeren vloertegels en groene metrotegels op de wanden geeft deze ruimte een eigentijdse, luxe uitstraling.

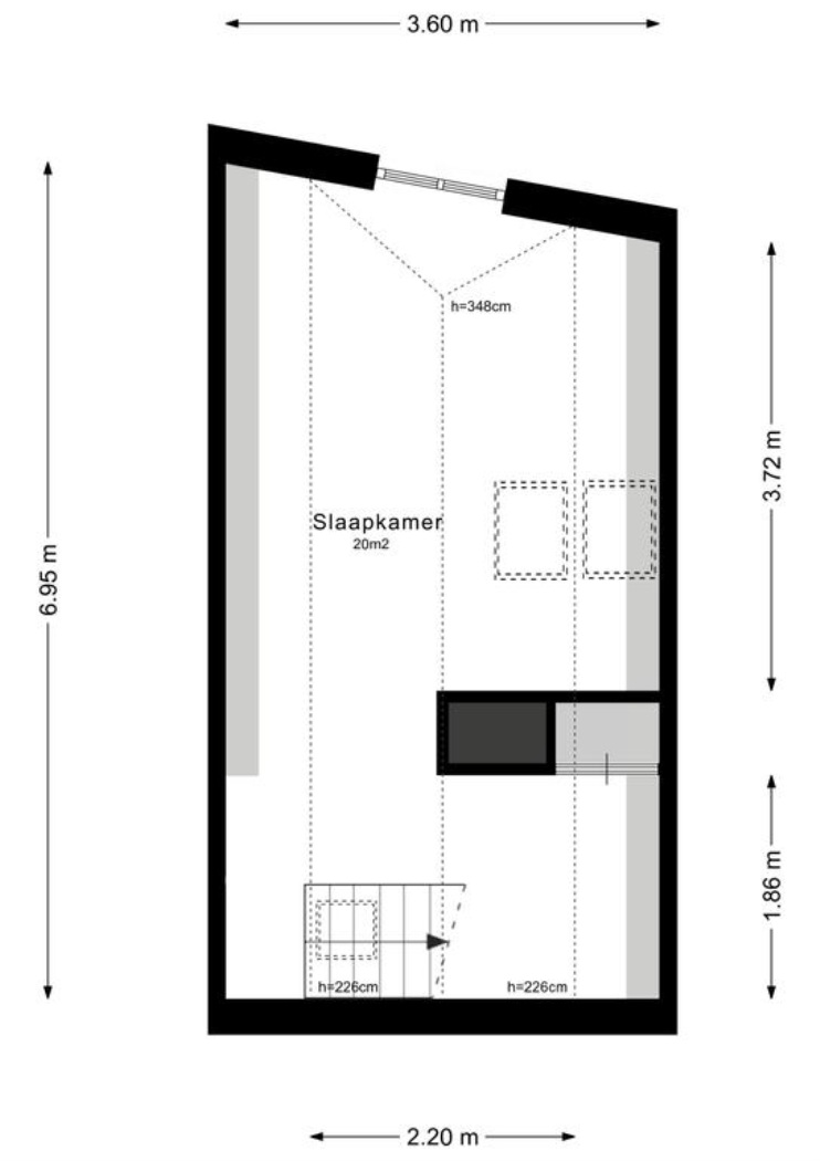
INDELING TWEEDE VERDIEPING

Via een vaste trap bereik je de tweede verdieping – een indrukwekkende slaapetage met een bijzonder karakter. Het metershoge plafond, open tot in de nok, en de prachtig zichtbare houten spanten maken deze ruimte uniek. In combinatie met de robuuste houten vloerdelen ontstaat een volwaardige en sfeervolle slaapkamer van ca. 20 m².
Dankzij het lichtraam in de achtergevel en de twee dakramen geniet je hier van een prachtige lichtinval én een fraai uitzicht op de kerktoren.

TUIN – EEN RUSTPUNT IN DE STAD
De volledig ommuurde tuin van ca. 28 m² vormt een heerlijke, beschutte plek midden in de stad. Een fijne oase van rust waar je in alle privacy kunt ontspannen.

Highlights
•Karakteristieke woning uit 1902, met zorg gerenoveerd tussen 2020 en 2022
•Woonoppervlakte ca. 137 m²
•Inhoud ca. 599 m³
•Energielabel D
•In totaal 4 slaapkamers
•Statige lange hal met toiletruimte
•Ruime woonkamer van ca. 25 m²
•Woonkamer en-suite (ca. 19 m² en 10,5 m²), flexibel in te delen als kantoor of twee slaapkamers
•Keuken ca. 10,5 m², gelegen aan de achterzijde
•Badkamer op de begane grond (ca. 4 m²) met inloopdouche en wastafelmeubel
•Fijne, beschutte stadstuin
•Eerste verdieping: toiletruimte en slaapkamer
•Tweede verdieping: royale slaapkamer met karakter
•Voorgevel in 2023 professioneel gereinigd en opnieuw gevoegd
•Gedeeltelijke muurisolatie, volledige dakisolatie (ca. 10 cm steenwol) en deels dubbele beglazing
•Verwarming middels combiketel
•Elektra en stoppenkast volledig vernieuwd
•Bij verkoop wordt een ouderdomsclausule opgenomen
•Tevens geldt een niet-zelfbewoningsclausule
•Het gebouw is gesplitst in twee appartementsrechten: Kwekelstraat 24 en Kwekelstraat 26

Lees de volledige omschrijving

Kenmerken

Overdracht

Status Beschikbaar
Aanvaarding In overleg

Bouwvorm

Soort object Appartement
Bouwjaar 1902
Bouwvorm Bestaande bouw
Ligging In het centrum

Indeling

Woonoppervlakte 137 m²
Inhoud 599 m³
Aantal kamers 5
Aantal slaapkamers 4
Aantal woonlagen 3

Energie

Energieklasse D
Energie einddatum dinsdag 26 oktober 2032
Isolatie Dakisolatie, vloerisolatie, gedeeltelijk dubbel glas
Warmwater Cv ketel
Verwarming Cv ketel

Buitenruimte

Tuin Achtertuin
Hoofdtuin Achtertuin
Oppervlakte hoofdtuin 28 m²
Ligging hoofdtuin Noord-oost
Achterom Nee
Kwaliteit tuin Normaal

Bergruimte

Garage Geen garage

Parkeergelegenheid

Voorzieningen Betaald parkeren, parkeergarage, parkeervergunningen

Dak

Dak Samengesteld dak

Overig

Permanente bewoning Ja
Onderhoud binnen Goed tot uitstekend
Onderhoud buiten Goed tot uitstekend
Huidig gebruik Woonruimte
Huidige bestemming Woonruimte

Voorzieningen

Voorzieningen Mechanische ventilatie, tv kabel, dakraam, natuurlijke ventilatie

Kadastrale gegevens

Gemeente Gorinchem
Sectie D
Perceelnummer 4654
Eigendomssituatie Volle eigendom
v1-20250318-8G0A1573E
Interesse in deze woning?

Robert helpt u graag

Gratis waardebepaling

U denkt erover uw woning te verkopen en wilt graag weten wat het waard is? We komen graag bij u langs en bepalen de waarde van uw woning.

Gratis waardebepaling

Deel deze woning

Uw persoonlijke adviseur in de regio

Maak kennis met de HypotheekWeter

Ligging

Afspraak maken voor een bezichtiging? Neem contact met ons op

Vergelijkbare woningen