0183 - 635011 0183 - 635011 Stel een vraag Stel een vraag
Verkocht onder voorbehoud

Hendrika van Tussenbroekstraat 8

GORINCHEM
€ 435.000,- k.k.
  • Woonoppervlakte 110 m2
  • Perceeloppervlakte 130 m2
  • Aantal slaapkamers 3
  • Bouwjaar 1987

Omschrijving

Wonen met comfort, ruimte en een zonnige tuin in Gorinchem

Aan de Hendrika van Tussenbroekstraat 8 in Gorinchem staat deze verzorgde tussenwoning met een woonoppervlakte van 110 m² en een ruime, zonnige achtertuin. De woning is praktisch ingedeeld, modern afgewerkt en biedt volop leefruimte verdeeld over drie woonlagen: ideaal voor gezinnen of voor wie graag extra ruimte heeft voor werken of hobby’s.

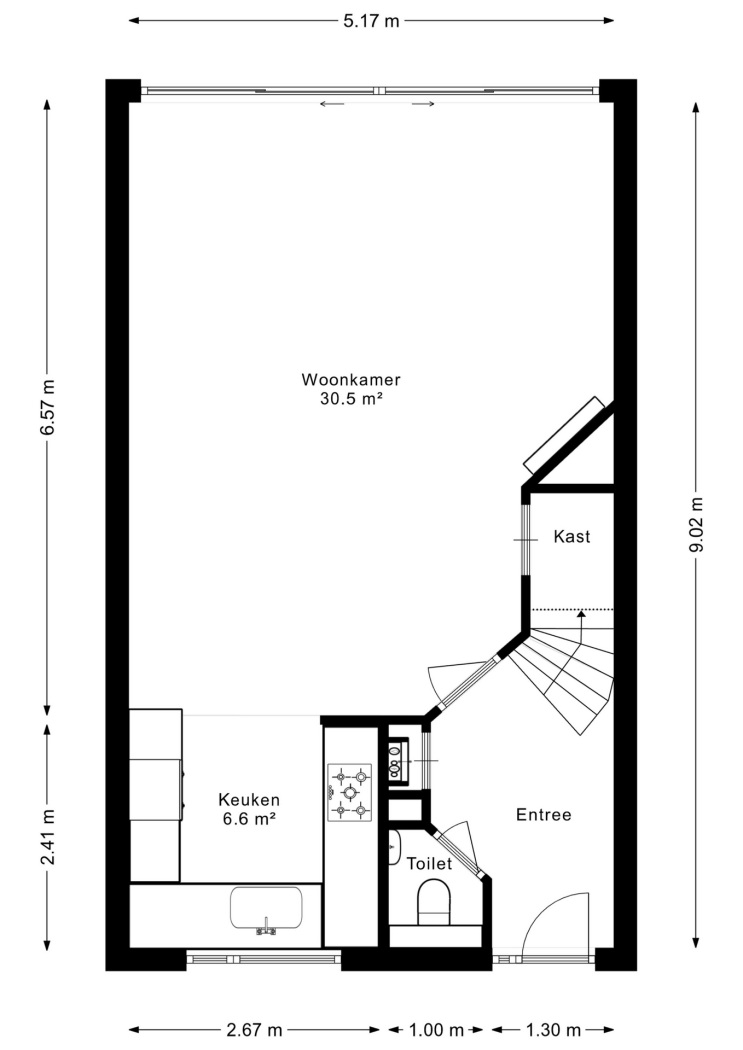
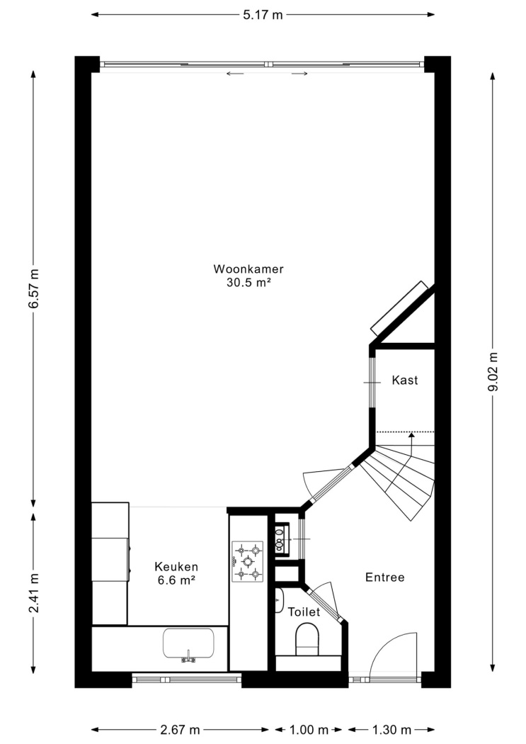
De woonkamer met open keuken vormt het hart van de woning. De lichte woonkamer van circa 31 m² is ruim opgezet en biedt meer dan voldoende plek voor een comfortabele zithoek en een gezellige eethoek. Dankzij de grote raampartijen en de openslaande deuren naar de tuin voelt de ruimte extra licht en verbonden met buiten.

De keuken is modern uitgevoerd in een u-opstelling en voorzien van diverse inbouwapparatuur, waardoor je hier alle gemakken hebt om uitgebreid te koken. De open verbinding met de woonkamer maakt dit een fijne plek om samen te komen met familie of vrienden.

Via de openslaande deuren stap je direct de ruime achtertuin in. De tuin is keurig onderhouden, ligt op het oosten en biedt volop ruimte voor een comfortabele loungehoek en een eettafel om heerlijk buiten te zitten. Daarnaast beschikt de tuin over een achterom en staat achterin een vrijstaande stenen berging, ideaal voor het stallen van fietsen en extra opslag.

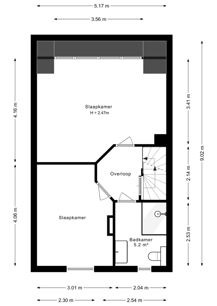
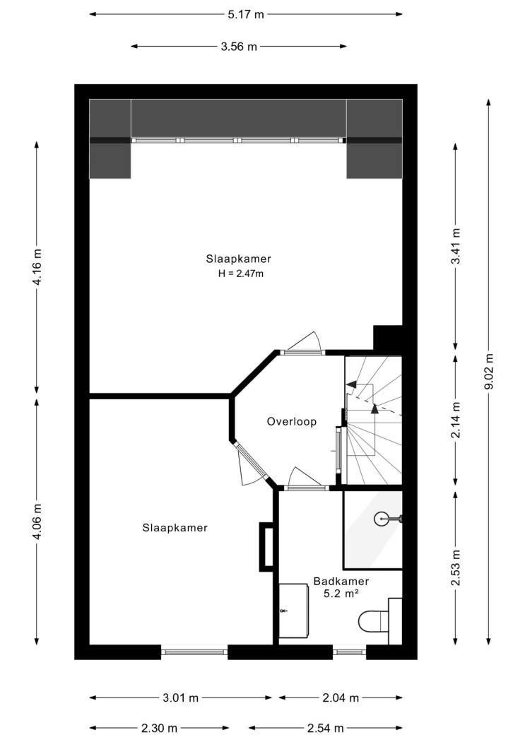
Op de eerste verdieping bevinden zich twee ruime slaapkamers. Beide kamers zijn prettig licht door de aanwezige raampartijen en bieden voldoende ruimte voor een royaal bed, kledingkast of eventueel een bureau.

De moderne badkamer is stijlvol afgewerkt en voorzien van een ruime inloopdouche, wastafelmeubel en een tweede toilet. Een prettig detail is het aanwezige raam, dat zorgt voor natuurlijk daglicht en ventilatie.

De tweede verdieping is verrassend ruim. Hier kom je boven op de overloop waar direct een praktische wasruimte is ingericht met plek voor een wasmachine en droger. Ook is er een inbouwkast voor extra bergruimte. Daarnaast vind je op deze verdieping een ruime extra kamer, perfect te gebruiken als slaapkamer, werkruimte of hobbykamer. De vliering is bereikbaar via een vlizotrap, handig voor extra opbergruimte.

Parkeren kan openbaar voor de deur en de woning beschikt over energielabel B, wat bijdraagt aan comfortabel en energiezuinig wonen.

Highlights:
* Tussenwoning met 110 m² woonoppervlakte
* Zowel voor als achter vrij uitzicht
* Ruime en lichte woonkamer (31 m²) met open keuken (7 m²)
* Moderne keuken in u-opstelling met inbouwapparatuur
* Openslaande deuren naar de achtertuin
* Ruime achtertuin op het oosten met achterom
* Vrijstaande stenen berging
* 3 slaapkamers verdeeld over twee verdiepingen
* Moderne badkamer met inloopdouche en tweede toilet
* Praktische wasruimte op de tweede verdieping
* Vliering voor opslag, bereikbaar via vlizotrap
* Energielabel B
* Recent vernieuwde CV ketel
* Openbaar parkeren voor de deur
* Alle stadse voorzieningen om de hoek

Wonen in Gorinchem betekent genieten van een gezellige vestingstad met alle voorzieningen binnen handbereik. Van winkels, supermarkten en scholen tot restaurants en terrassen in de historische binnenstad, alles ligt op korte afstand. Daarnaast zorgen de goede uitvalswegen en het station voor een uitstekende bereikbaarheid.

Kortom: een ruime en goed onderhouden tussenwoning met een zonnige achtertuin, moderne afwerking en volop leefruimte: een heerlijke plek om comfortabel te wonen in Gorinchem.

Lees de volledige omschrijving

Kenmerken

Overdracht

Status Verkocht onder voorbehoud
Aanvaarding In overleg

Bouwvorm

Soort object Woonhuis
Soort woning Eengezinswoning
Type woning Tussenwoning
Bouwjaar 1987
Bouwvorm Bestaande bouw
Ligging Aan een rustige weg, in een woonwijk

Indeling

Woonoppervlakte 110 m²
Perceeloppervlakte 130 m²
Inhoud 363 m³
Aantal kamers 4
Aantal slaapkamers 3
Aantal woonlagen 3

Energie

Energieklasse B
Energie einddatum dinsdag 22 maart 2033
Isolatie Dubbel glas, volledig geïsoleerd
Warmwater Cv ketel
Verwarming Cv ketel

Buitenruimte

Tuin Achtertuin, voortuin
Hoofdtuin Achtertuin
Oppervlakte hoofdtuin 53 m²
Ligging hoofdtuin Oost
Achterom Ja
Kwaliteit tuin Verzorgd

Bergruimte

Garage Geen garage
Schuur / Berging Vrijstaand steen

Parkeergelegenheid

Voorzieningen Openbaar parkeren

Dak

Dak Zadeldak

Overig

Permanente bewoning Ja
Onderhoud binnen Goed
Onderhoud buiten Goed
Huidig gebruik Woonruimte
Huidige bestemming Woonruimte

Voorzieningen

Voorzieningen Rolluiken, rookkanaal, dakraam, glasvezel kabel

Kadastrale gegevens

Gemeente Gorinchem
Sectie F
Perceelnummer 1138
Oppervlakte 130 m²
Eigendomssituatie Volle eigendom
OK-Kopie-van-v1-20250318-8G0A1414
Interesse in deze woning?

Chanel helpt u graag

Gratis waardebepaling

U denkt erover uw woning te verkopen en wilt graag weten wat het waard is? We komen graag bij u langs en bepalen de waarde van uw woning.

Gratis waardebepaling

Deel deze woning

Uw persoonlijke adviseur in de regio

Maak kennis met de HypotheekWeter

Ligging

Afspraak maken voor een bezichtiging? Neem contact met ons op

Vergelijkbare woningen