0183 - 635011 0183 - 635011 Stel een vraag Stel een vraag
Open huis

Grote Kerkstraat 68

WIJK EN AALBURG
€ 450.000,- k.k.
Open huis

Meld u telefonisch aan voor de kijkdag op vrijdag 27 februari 2026 van 13:00 tot 17:00 uur.

  • Woonoppervlakte 97 m2
  • Perceeloppervlakte 249 m2
  • Aantal slaapkamers 3
  • Bouwjaar 1850

Omschrijving

Open Dag | Vrijdag 27 februari | 13:00 – 17:00 uur
Kom de woning vrijblijvend bekijken tijdens dit speciale kijkmoment met persoonlijke bezichtigingen. Bel ons vooraf om jouw tijdslot te reserveren. We ontvangen je graag voor een rustige rondleiding, in alle aandacht en op jouw tempo.

Levensgenieters, opgelet!
Deze charmante, witte vrijstaande woning met schattige luiken ligt heerlijk verscholen aan een doodlopende grindweg, vlak bij de Maasdijk – hier komt vrijwel alleen bestemmingsverkeer. Een romantisch huis met karakter, waar authentieke details en modern wooncomfort moeiteloos samenkomen. De woning is fors uitgebouwd en speels afgewerkt met leuke gepotdekselde delen, wat zorgt voor extra ruimte én uitstraling.

Bovendien is het huis gelijkvloers te bewonen: in de aanbouw vind je de hal, het toilet, de slaapkamer en een complete badkamer op de begane grond. Binnen is het sfeervol en warm, met een knusse woonkamer met palletkachel en dubbele tuindeuren, aansluitend aan de fijne woonkeuken. Boven zijn er nog twee slaapkamers en een ruime overloop met kastruimte.

Buiten is het elke dag een beetje vakantie: een beschutte, onderhoudsvrije tuin die volledig is aangelegd met klinkerbestrating, met meerdere fijne zitplekjes. Onder de loungeoverkapping met glazen panelen zit je hier heerlijk lang buiten, en de berging maakt het geheel extra praktisch. Parkeren doe je op eigen terrein, met een oprit voor twee auto’s. Goed geïsoleerd en voorzien van zonnepanelen: instapklaar genieten in alle rust.

Highlights
• Bouwjaar: 1850
• Woonoppervlakte: ca. 97 m²
• Perceeloppervlakte: ca. 249 m²
• Energielabel D
• Parkeren op eigen terrein: oprit voor 2 auto’s
• Gelijkvloers wonen mogelijk: slaapkamer en badkamer op de begane grond
• Woonkamer: ca. 25 m² met palletkachel en dubbele terrasdeuren
• Woonkeuken: ca. 12 m² met hoekkeuken en inbouwapparatuur
• Badkamer begane grond: ca. 6 m² met inloopdouche en wastafelmeubel
• Hoofdslaapkamer: op de begane grond met kastenwand
• 1e verdieping: overloop met kastruimte, 2 slaapkamers
• Tuin op het noord-oosten
• Loungeoverkapping: ca. 13 m² met glazen panelen
• Berging: ca. 11 m²
• Ligging: dichtbij voorzieningen, met volop landelijke rust

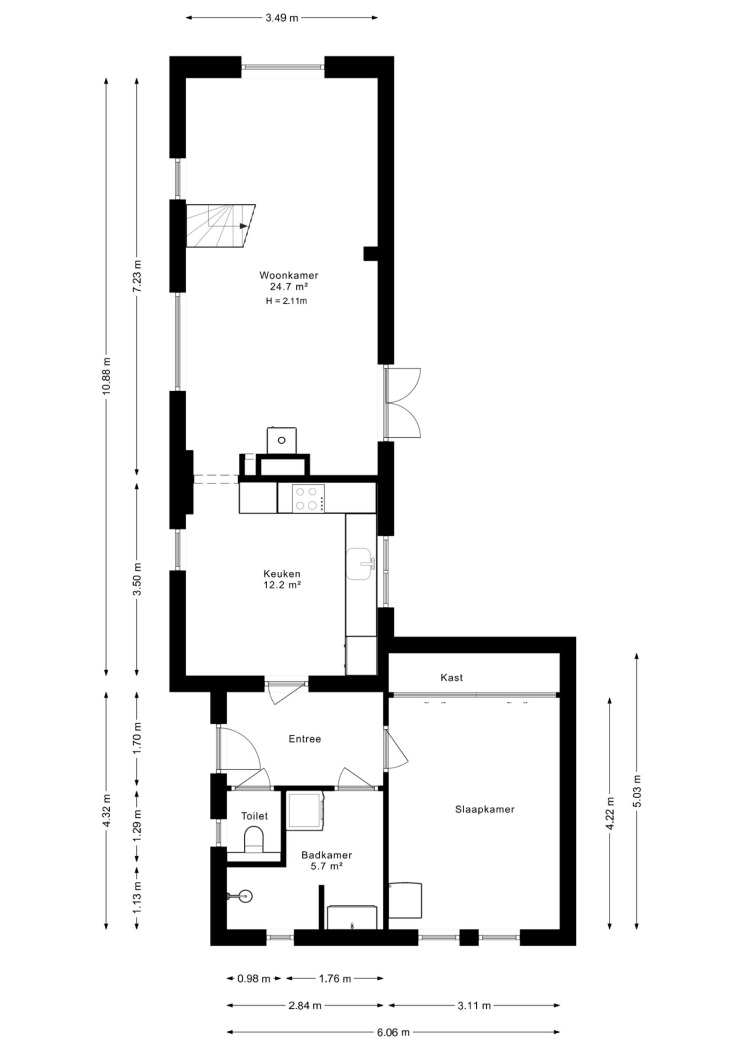
INDELING BEGANE GROND

Welkom!
Via de entree in de recent gepotdekselde aanbouw stap je binnen in de hal met toiletruimte. Vanuit hier heb je toegang tot het woongedeelte én, op de begane grond, de slaapkamer en de badkamer.

Wonen & koken
De woonkamer (ca. 25 m²) is een heerlijke, sfeervolle ruimte met strakke wanden, vloeren en plafonds. De dubbele terrasdeuren verbinden binnen moeiteloos met het terras en de tuin. De trap naar de verdieping is slim in de ruimte geplaatst. Tussen de woonkamer en de woonkeuken zorgt een stijlvolle cinewall voor een speelse scheiding, compleet met tv-wand, palletkachel en praktische wijnopslag.
De moderne woonkeuken is uitgevoerd in een fijne hoekopstelling met lichte kastfronten en diverse inbouwapparatuur, waaronder een inductiekookplaat, RVS afzuigkap, combi-oven, koel-/vriescombinatie en vaatwasser. De plavuizenvloer en het strakke stucplafond geven een nette uitstraling, terwijl het raam boven het aanrecht zorgt voor prettig daglicht en uitzicht op de tuin.

Slapen & baden op de begane grond
Wat een luxe: slapen en baden op de begane grond. Vanuit de hal bereik je de ouderslaapkamer in de aanbouw: een fijne, strakke kamer met laminaatvloer, airconditioning en een praktische 4-deurs schuifwandkast.
Ook de badkamer is vanuit de hal toegankelijk en ligt naast de slaapkamer. Deze is volledig betegeld en netjes ingericht met een inloopdouche met regendouche én handdouche, een wastafelmeubel en een designradiator. Daarnaast is er ruimte voor de wasmachine en droger. Het klepraampje zorgt voor daglicht en natuurlijke ventilatie. Het toilet is separaat en eveneens vanuit de hal bereikbaar.

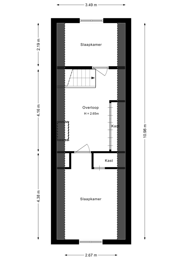
INDELING EERSTE VERDIEPING

Op de verdieping kom je uit op een lichte overloop met dakraam en volop praktische bergruimte dankzij de schuifwandkast. Vanaf hier zijn twee fijne kamers bereikbaar, ideaal als slaapkamers, werkkamer of hobbyruimte. Eén van de kamers beschikt bovendien over handige inbouw kastruimte. In totaal telt de woning dus drie slaapkamers.

Tuin & buitenruimte
De tuin ligt op het noorden en oosten, maar biedt verrassend veel plekjes om van de zon te genieten. Rondom is alles strak en onderhoudsvriendelijk aangelegd met grijze klinkers in een stijlvol visgraatpatroon. Naast de woning is er parkeerruimte op eigen terrein voor twee auto’s. Direct achter de woning – bereikbaar via de dubbele terrasdeuren vanuit de woonkamer – stap je zo het terras/tuin op. Hier staat ook de fijne loungeoverkapping (ca. 13 m²) met glazen schuifwanden: een heerlijke plek voor lange avonden, barbecueën en gezellig tafelen, ongeacht het seizoen. Aangrenzend vind je een praktische houten berging (ca. 11 m²) voor fietsen, tuinspullen en extra opslag.
Zijn jullie al nieuwsgierig geworden? Kom dan snel de voordelen van dit leuke huis ontdekken!

Wijk en Aalburg (Noord-Brabant), fijn wonen
Wonen aan de Kerkstraat 68 betekent wonen in het hart van het gemoedelijke Wijk en Aalburg: een dorp waar je elkaar nog groet, de sfeer ontspannen is en je toch alles bij de hand hebt. Je zit hier in het Land van Heusden en Altena, pal aan de Afgedamde Maas – ideaal voor iedereen die houdt van water, ruimte en buiten zijn.
Voor de dagelijkse boodschappen hoef je niet ver: supermarkten, winkels en speciaalzaken zijn dichtbij, net als scholen, sportclubs en andere voorzieningen. Even lekker struinen of een boodschap extra? Op korte loopafstand vind je een winkelcentrum met onder andere een Hema.
En dan de omgeving… Na het werk nog een rondje wandelen langs de dijk, fietsen door de uiterwaarden of op een zonnige dag naar één van de strandjes aan de Maas: het kan hier allemaal. Tegelijk woon je verrassend centraal; via de A2, A27 en A59 zijn steden als ’s-Hertogenbosch, Tilburg en Breda snel bereikbaar. Kortom: dorps en gezellig wonen in Noord-Brabant, met natuur om de hoek en de stad binnen handbereik.

Lees de volledige omschrijving

Kenmerken

Overdracht

Status Beschikbaar
Aanvaarding In overleg

Bouwvorm

Soort object Woonhuis
Soort woning Eengezinswoning
Type woning Vrijstaande woning
Bouwjaar 1850
Bouwvorm Bestaande bouw
Ligging Aan een rustige weg, beschutte ligging, buiten de bebouwde kom, landelijk gelegen

Indeling

Woonoppervlakte 97 m²
Perceeloppervlakte 249 m²
Inhoud 335 m³
Aantal kamers 4
Aantal slaapkamers 3
Aantal woonlagen 2

Energie

Energieklasse D
Energie einddatum zaterdag 19 januari 2036
Isolatie Dakisolatie, muurisolatie, dubbel glas
Warmwater Cv ketel
Verwarming Cv ketel, houtkachel

Buitenruimte

Tuin Tuin rondom
Hoofdtuin Tuin rondom
Achterom Ja
Kwaliteit tuin Fraai aangelegd

Bergruimte

Garage Geen garage
Schuur / Berging Vrijstaand hout

Parkeergelegenheid

Voorzieningen Op eigen terrein

Dak

Dak Zadeldak

Overig

Permanente bewoning Ja
Onderhoud binnen Goed tot uitstekend
Onderhoud buiten Goed tot uitstekend
Huidig gebruik Woonruimte
Huidige bestemming Woonruimte

Voorzieningen

Voorzieningen Mechanische ventilatie, airconditioning, dakraam, zonnepanelen, natuurlijke ventilatie

Kadastrale gegevens

Gemeente Aalburg
Sectie F
Perceelnummer 3493
Oppervlakte 111 m²
Eigendomssituatie Volle eigendom
PLR55485
Interesse in deze woning?

Dionne helpt u graag

Gratis waardebepaling

U denkt erover uw woning te verkopen en wilt graag weten wat het waard is? We komen graag bij u langs en bepalen de waarde van uw woning.

Gratis waardebepaling

Deel deze woning

Uw persoonlijke adviseur in de regio

Maak kennis met de HypotheekWeter

Ligging

Afspraak maken voor een bezichtiging? Neem contact met ons op