0183 - 635011 0183 - 635011 Stel een vraag Stel een vraag
Beschikbaar

Godfried Bomanslaan 86

GORINCHEM
€ 425.000,- k.k.
  • Woonoppervlakte 110 m2
  • Perceeloppervlakte 212 m2
  • Aantal slaapkamers 4
  • Bouwjaar 1992

Omschrijving

Open Dag | Maandag 4 mei | 13:30 – 17:00 uur
Ontdek deze woning tijdens ons speciale kijkmoment met persoonlijke bezichtigingen. Bel ons vooraf om je eigen tijdslot te reserveren. Wij ontvangen je graag voor een rustige, ontspannen rondleiding, helemaal afgestemd op jou.

Hoekwoning waar je meteen blij van wordt!

Leuke hoekwoning met een flinke dosis charme, ruimte én verrassend veel opbergruimte! Gelegen op een perceel van 212 m² eigen grond, in een fijne en rustige woonomgeving met voor-, zij- en achtertuin én maar liefst drie bergingen. Hier hoef je in elk geval nooit meer te puzzelen waar de fietsen, kerstspullen of barbecue moeten staan.

De woning ligt in een rustige, kindvriendelijke straat met alleen bestemmingsverkeer. Dus vooral spelende kinderen, vriendelijke buren en weinig verkeer voor de deur.

De buitenkant heeft een warme, vriendelijke uitstraling dankzij de mooie licht gele gevelsteen en de karakteristieke halfronde ramen. Binnen word je direct verrast door de lichte en ruime woonkamer en de strakke landelijke keuken uit 2023 met apparatuur. Zodra de zon opkomt, weet deze woonkamer dat ook, een heerlijk lichte start van de dag.

Met vier fijne slaapkamers is dit een ideaal gezinshuis. Dankzij de woningbrede dakkapel aan de achterzijde én de extra zijramen door de hoekligging is ook de bovenverdieping opvallend licht en lekker ruim. Geen donkere hokjes, maar echte kamers waar je iets mee kunt.

Ook qua comfort zit je hier goed. Met energielabel B, goede isolatie, vloerverwarming op de begane grond en een moderne cv-ketel woon je hier prettig én energiezuinig.

Een huis waar ruimte, licht en gezelligheid moeiteloos samenkomen.

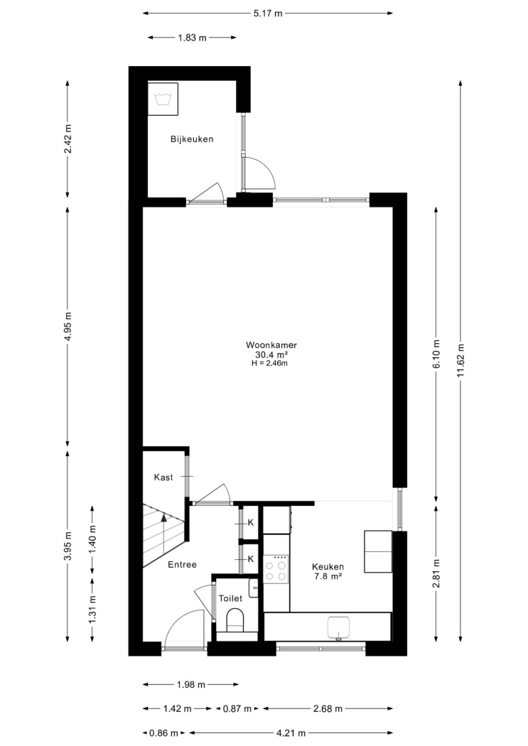
INDELING BEGANE GROND

Welkom!
Via de entree heb je toegang tot de woonkamer, het zwevende toilet, de meterkast en de trapopgang naar de eerste verdieping.

Wonen en koken
De zonnige woonkamer is een heerlijke, lichte leefruimte waar je je direct thuis voelt. Het sfeervolle middelpunt van de kamer is de vrijstaande houtkachel van robuust gietijzer met een trendy uitstraling en een grote ruit, zodat je volop geniet van het warme vlammenspel. Een heerlijke plek voor lange avonden, een goed glas wijn of gewoon ontspannen genieten. Daarnaast beschikt de woonkamer over een praktische trapkast, ideaal voor extra provisie, voorraad of spullen die je graag netjes uit het zicht opbergt.

Aan de voorzijde van de woning bevindt zich de keuken, extra licht en ruimtelijk dankzij het zijraam van de hoekligging. De karakteristieke halfronde ramen geven deze ruimte direct een warme en sfeervolle uitstraling. In 2023 is de keuken vernieuwd en uitgevoerd in een strak landelijke stijl, modern én gezellig tegelijk. Uiteraard voorzien van alle gemakken: een inductiekookplaat, schuine afzuigkap, combi-oven, koelkast, vaatwasser en een Quooker-kraan. Hier kook je met plezier, zelfs op maandag.

De begane grond is afgewerkt met een lichte tegelvloer en comfortabele vloerverwarming, waardoor het er niet alleen mooi uitziet, maar ook heerlijk aanvoelt.

Bijkeuken
Vanuit de woonkamer bereik je de praktische aangebouwde bijkeuken, een ideale extra ruimte voor het dagelijkse gemak. Hier vind je de aansluitingen voor de wasmachine en droger en volop mogelijkheden voor extra opslag. Door de directe deur naar de tuin loop je bovendien zo naar buiten, handig na het wassen, tuinieren of met boodschappen in de hand.

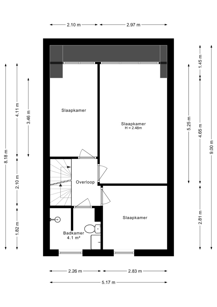
INDELING EERSTE VERDIEPING

Op de eerste verdieping bevinden zich drie fijne slaapkamers. De twee kamers aan de achterzijde zijn heerlijk ruim dankzij de brede dakkapel, die zorgt voor extra leefruimte én veel licht. Daarnaast is er praktische bergruimte aanwezig achter de knieschotten.

Badkamer
Aan de voorzijde van de woning ligt de geheel betegelde badkamer met een praktische indeling. Deze is voorzien van een douche, een wastafelmeubel met spiegelkast en een toilet.

INDELING TWEEDE VERDIEPING

De tweede verdieping biedt een ruime voorzolder met kastruimte en dakraam. Hier vind je de CV-combiketel.

Daarnaast is er een volwaardige vierde slaap- of werkkamer met dakraam en een speels zijraam in ronde vorm , die zorgen voor een mooie lichtinval. Berging achter de knieschotten en vaste kast.

Tuin en buitenruimte
Deze fijne hoekwoning staat op een ruim perceel van 212 m² eigen grond en beschikt over een verzorgde voor-, zij- en achtertuin. De achtertuin is gelegen op het noordoosten, waardoor je hier verrassend lang van de zon kunt genieten gedurende de dag.
De tuin is onderhoudsvriendelijk aangelegd met terrastegels en beschikt over een sfeervolle vijver met losse brug en verlichting. Een heerlijke buitenruimte waar je vooral kunt ontspannen en genieten, met weinig onderhoud.

De zijtuin is sfeervol afgewerkt met een laag gemetseld tuinmuurtje, deels voorzien van glazen schermen, en loopt fraai over in een groene coniferenhaag. In de haag bevindt zich een charmante boog met sierhekwerk poort, wat het geheel een uitnodigende en karaktervolle uitstraling geeft. Aan de achtergevel is bovendien een elektrisch zonnescherm aanwezig, zodat je op warme dagen altijd een fijne plek in de schaduw creëert.

Bergingen
Aan bergruimte geen gebrek: met maar liefst drie bergingen en een houthok beschik je hier over volop ruimte voor fietsen, gereedschap, tuinmeubilair en hobbyspullen. De totale oppervlakte bedraagt circa 21 m², waardoor je hier echt alle kanten mee op kunt. Extra praktisch is dat één van de bergingen is voorzien van een keukenblok met warm en koud water.

Highlights
•Bouwjaar: 1991
•Woonoppervlakte: ca. 110 m²
•Perceel: 212 m² eigen grond
•Goed geïsoleerd en energielabel B
•Rustige straat met alleen bestemmingsverkeer
•Lichte, gezellige woonkamer met houtkachel
•Moderne landelijke keuken met apparatuur uit 2023
•Aangebouwde bijkeuken
•Vier slaapkamers
•Woningbrede dakkapel op de eerste verdieping
•Extra lichtinval door zijramen (hoekligging)
•Vloerverwarming op de begane grond (m.u.v. bijkeuken)
•Plavuizen vloer op de begane grond
•CV-combiketel Nefit Trendline HRC 25 (2021)
•Tuin op het noordoosten
•Drie bergingen + houthok
•Elektrisch zonnescherm aan achtergevel
•Gelegen nabij diverse voorzieningen

Ligging
De woning is gelegen in de geliefde en ruim opgezette woonwijk Gorinchem-Oost, een groene en rustige omgeving waar het prettig wonen is. De wijk staat bekend om haar kindvriendelijke karakter en biedt een fijne balans tussen rust en de nabijheid van alle dagelijkse voorzieningen.

Op korte afstand vind je diverse winkels, scholen, sportfaciliteiten en speelgelegenheden. Het winkelcentrum rond het Beckmanplein vormt het hart van de wijk en is ideaal voor de dagelijkse boodschappen.

Ook het historische centrum van Gorinchem ligt binnen handbereik. Hier kun je heerlijk struinen langs sfeervolle winkels, genieten van gezellige restaurants en terrassen, of een wandeling maken over de oude stadswallen met uitzicht op de rivier de Merwede. Een plek waar historie en levendigheid samenkomen.

Daarnaast is de bereikbaarheid uitstekend. Met de nabijgelegen uitvalswegen A15 en A27 zijn steden als Utrecht, Rotterdam en Breda eenvoudig te bereiken, wat deze locatie ook voor forenzen bijzonder aantrekkelijk maakt.

Lees de volledige omschrijving

Kenmerken

Overdracht

Status Beschikbaar
Aanvaarding In overleg

Bouwvorm

Soort object Woonhuis
Soort woning Eengezinswoning
Type woning Hoekwoning
Bouwjaar 1992
Bouwvorm Bestaande bouw
Ligging Aan een rustige weg, in een woonwijk

Indeling

Woonoppervlakte 110 m²
Perceeloppervlakte 212 m²
Inhoud 392 m³
Aantal kamers 5
Aantal slaapkamers 4
Aantal woonlagen 3

Energie

Energieklasse B
Energie einddatum dinsdag 8 april 2036
Isolatie Dakisolatie, muurisolatie, vloerisolatie, dubbel glas, volledig geïsoleerd
Warmwater Cv ketel
Verwarming Cv ketel, vloerverwarming gedeeltelijk, houtkachel

Buitenruimte

Tuin Achtertuin, voortuin, zijtuin
Hoofdtuin Achtertuin
Oppervlakte hoofdtuin 92 m²
Ligging hoofdtuin Noord-oost
Achterom Ja
Kwaliteit tuin Verzorgd

Bergruimte

Garage Geen garage
Schuur / Berging Vrijstaand steen

Parkeergelegenheid

Voorzieningen Openbaar parkeren

Dak

Dak Zadeldak

Overig

Permanente bewoning Ja
Onderhoud binnen Goed
Onderhoud buiten Goed
Huidig gebruik Woonruimte
Huidige bestemming Woonruimte

Voorzieningen

Voorzieningen Mechanische ventilatie, tv kabel, buitenzonwering, rookkanaal, natuurlijke ventilatie

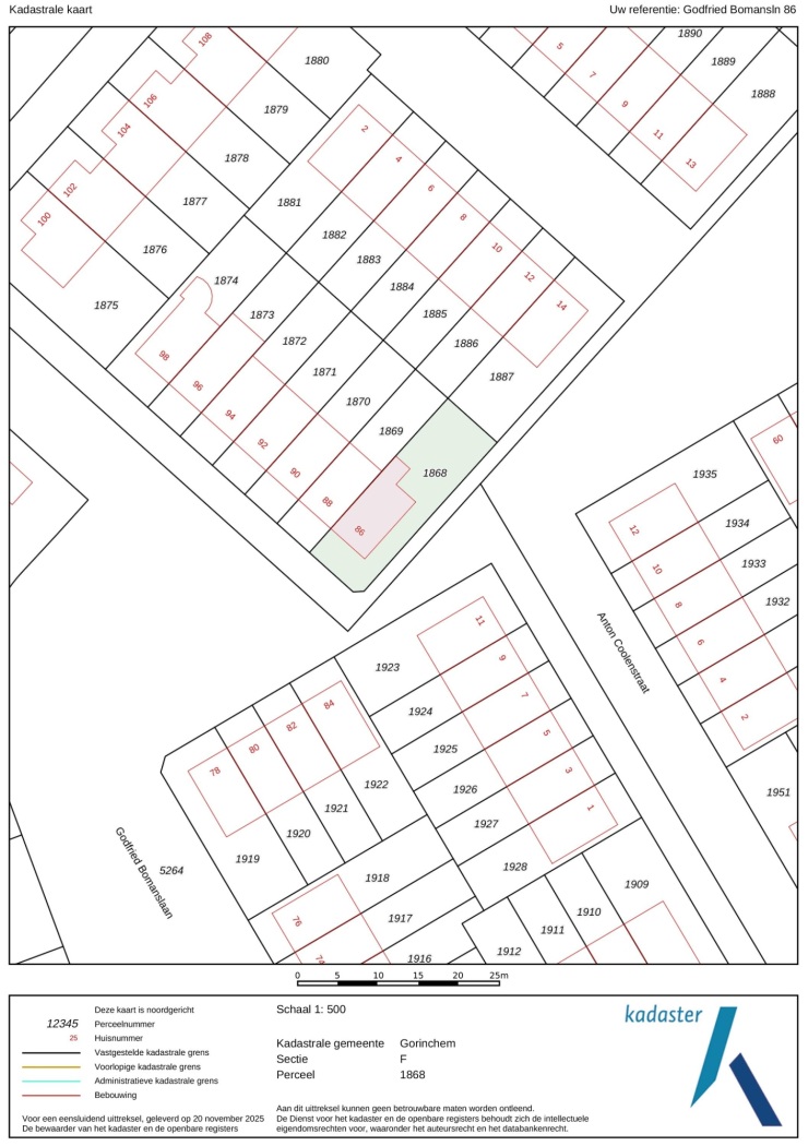
Kadastrale gegevens

Gemeente Gorinchem
Sectie F
Perceelnummer 1868
Oppervlakte 212 m²
Eigendomssituatie Volle eigendom
v1-20250318-8G0A1573E
Interesse in deze woning?

Robert helpt u graag

Gratis waardebepaling

U denkt erover uw woning te verkopen en wilt graag weten wat het waard is? We komen graag bij u langs en bepalen de waarde van uw woning.

Gratis waardebepaling

Deel deze woning

Uw persoonlijke adviseur in de regio

Maak kennis met de HypotheekWeter

Ligging

Afspraak maken voor een bezichtiging? Neem contact met ons op

Vergelijkbare woningen