0183 - 635011 0183 - 635011 Stel een vraag Stel een vraag
Verkocht onder voorbehoud

Gasthuisstraat 37 a

GORINCHEM
€ 325.000,- k.k.
  • Woonoppervlakte 58 m2
  • Aantal slaapkamers 1
  • Bouwjaar 1900

Omschrijving

Instapklaar & helemaal van nu

Toffe, recent gerenoveerde maisonnette met karakter én energielabel A – midden in het bruisende hart van Gorinchem!

Wat een pareltje! Deze charmante maisonette bevindt zich in een prachtig pand uit circa 1900, met een stralend witte lijstgevel en sfeervolle roederamen – een echte blikvanger in de straat. Achter de klassieke uitstraling gaat een verrassend modern en smaakvol afgewerkt huis schuil, waar sfeer en comfort naadloos samenkomen.

Droom jij van wonen in hartje Gorinchem, met alles wat de stad te bieden heeft letterlijk om de hoek? Dan is deze woning aan de Gasthuisstraat 37-A echt iets voor jou.

Hier hoef je niets meer te doen – alles is al aangepakt! Denk aan een gloednieuwe keuken, moderne badkamer, stijlvol toilet, prachtige visgraatvloer, airconditioning en een zonnig dakterras. Zet je meubels neer en geniet direct van je nieuwe thuis.

Kwaliteit en energiezuinig wonen
Oud van buiten, nieuw van binnen! Deze maisonnette is recent gerenoveerd en voorzien van moderne en energiezuinige installaties. Met energielabel A (geldig tot 2035) woon je hier niet alleen stijlvol, maar ook duurzaam en voordelig.

De bijgevoegde renders geven alvast een inspirerend beeld van de mogelijkheden voor inrichting – het ziet er toch fantastisch uit?

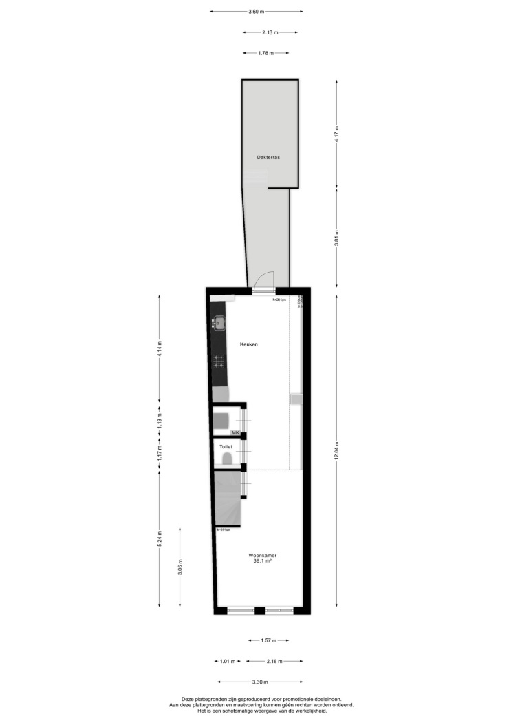
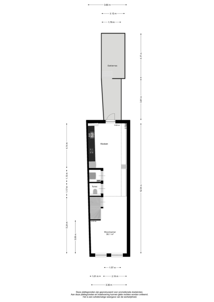
INDELING

Begane grond
Je hebt een eigen voordeur aan de straat. Trap op, jas uit, en je bent thuis.

Eerste woonverdieping
Aan de voorzijde ligt de sfeervolle woonkamer, waar het licht mooi valt door de klassieke roederamen. De prachtige visgraatvloer en de strakke afwerking zorgen voor een eigentijdse, luxe uitstraling. Je ziet het meteen: dit is een woning waar je zó in kunt. De renders laten prachtig zien hoe stijlvol en huiselijk het hier kan worden – een voorproefje van jouw nieuwe thuis.

Aan de achterzijde bevindt zich de nieuwe open keuken, volledig uitgerust met moderne inbouwapparatuur. Of je nu houdt van uitgebreid koken of snel iets op tafel zet, hier kan het allemaal.

Op deze verdieping vind je ook het toilet én de deur naar het zonnige dakterras (circa 16 m², op het zuiden) – perfect voor een kop koffie in de ochtend of een drankje in de avondzon.

Tweede slaapverdieping
Via de trap kom je op de slaapverdieping. De slaapkamer aan de voorzijde straalt karakter uit met het hoge plafond en de prachtige zichtbare spanten. Vanuit de slaapkamer leidt een deurtje naar een handige, hoger gelegen bergruimte, ideaal voor het netjes opbergen van extra spullen. Dankzij de airconditioning is het er het hele jaar door heerlijk comfortabel — een plek waar je echt tot rust komt.

De badkamer is helemaal nieuw, met een inloopdouche en modern wastafelmeubel.

Aan de achterzijde ligt, via een klein niveauverschil, nog een tweede kamer met dakraam – handig als logeer-, werk- of hobbykamer.

Leven in de binnenstad
Ben jij iemand die blij wordt van gezelligheid om je heen? Hier woon je midden in het historische hart van Gorinchem, tussen de winkels, terrassen en restaurants. Alles is op loopafstand: boodschappen doen, even een koffietje drinken of een wandeling maken langs de stadswal – het kan allemaal.

Belangrijkste kenmerken
•Sfeervolle, instapklare maisonnette
•Bouwjaar circa 1900, maar volledig gemoderniseerd
•Energielabel A, dubbele beglazing
•Woonoppervlakte: 58 m²
•Woonkamer en keuken: samen 38 m²
•Dakterras: 16 m², zonnige ligging op het zuiden
•Nieuwe keuken, badkamer en toilet
•Visgraat vloer door de hele woning
•Airco voor verwarmen én koelen
•1 slaapkamer en 1 extra (zolder)kamer
•Beschermd stadsgezicht
•Ligging midden in de winkelstraat
•Verkoop met ouderdoms-, asbest- en niet-zelfbewoningsclausule
•De splitsingsakte is in voorbereiding en er wordt een VvE opgericht

Een charmante woning met karakter, comfort en een vleugje luxe. Perfect voor wie graag in de stad woont, maar wel van rust en kwaliteit houdt.

Alles is nieuw, fris en netjes – echt een woning waar je zó in kunt trekken.

Lees de volledige omschrijving

Kenmerken

Overdracht

Status Verkocht onder voorbehoud
Aanvaarding In overleg

Bouwvorm

Soort object Appartement
Bouwjaar 1900
Bouwvorm Bestaande bouw
Ligging In het centrum

Indeling

Woonoppervlakte 58 m²
Inhoud 189 m³
Aantal kamers 2
Aantal slaapkamers 1
Aantal woonlagen 2

Energie

Energieklasse A
Energie einddatum zondag 13 mei 2035
Isolatie Dubbel glas
Warmwater Cv ketel
Verwarming Cv ketel

Buitenruimte

Tuin Geen tuin
Achterom Nee

Bergruimte

Garage Geen garage

Parkeergelegenheid

Voorzieningen Openbaar parkeren, betaald parkeren

Dak

Dak Samengesteld dak

Overig

Permanente bewoning Ja
Onderhoud binnen Goed tot uitstekend
Onderhoud buiten Redelijk
Huidig gebruik Woonruimte
Huidige bestemming Woonruimte

Voorzieningen

Voorzieningen Airconditioning, natuurlijke ventilatie

Kadastrale gegevens

Gemeente Gorinchem
Sectie x
Perceelnummer 1
Eigendomssituatie Volle eigendom
OK-Kopie-van-v1-20250318-8G0A1414
Interesse in deze woning?

Chanel helpt u graag

Gratis waardebepaling

U denkt erover uw woning te verkopen en wilt graag weten wat het waard is? We komen graag bij u langs en bepalen de waarde van uw woning.

Gratis waardebepaling

Deel deze woning

Uw persoonlijke adviseur in de regio

Maak kennis met de HypotheekWeter

Ligging

Afspraak maken voor een bezichtiging? Neem contact met ons op

Vergelijkbare woningen