0183 - 635011 0183 - 635011 Stel een vraag Stel een vraag
Open huis

Concordiaweg 25

GORINCHEM
€ 470.000,- k.k.
Open huis

Meld u telefonisch aan voor de kijkdag op vrijdag 12 december 2025 van 13:00 tot 17:00 uur.

  • Woonoppervlakte 126 m2
  • Perceeloppervlakte 90 m2
  • Aantal slaapkamers 4
  • Bouwjaar 1935

Omschrijving

Open Dag | Vrijdag 12 december | 13:00 – 17:00 uur
Ontdek deze woning tijdens ons speciale kijkmoment met persoonlijke bezichtigingen. Bel ons vooraf om je eigen tijdslot te reserveren. Wij ontvangen je graag voor een rustige, ontspannen rondleiding, helemaal afgestemd op jou.

Wonen met sfeer en karakter

Wat een plaatje! Deze prachtig gerenoveerde jaren ’30-woning combineert de uitstraling van een herenhuis met het comfort van nu. Het smeedijzeren hekwerk, de hortensia’s en het nette straatwerk vormen een uitnodigende entree die meteen de toon zet.

Sinds 2022 is de woning grondig gemoderniseerd. Zo zijn er HR++- en akoestische beglazing aan de voorzijde geplaatst, nieuwe vloeren gelegd en deels vernieuwde kozijnen aangebracht. Daarnaast beschikt de woning over een moderne keuken, een vernieuwde badkamer en toilet, een nieuwe dakkapel en een recent geplaatste cv-installatie. Je kunt hier dus direct zorgeloos intrekken.

Binnen ervaar je meteen warmte en stijl. De woonkamer met erker, een gezellige houtgestookte inzethaard en openslaande deuren naar de tuin vormt een heerlijke plek om te ontspannen. De uitgebouwde keuken en bijkeuken zorgen voor extra comfort en gemak.

Op de eerste verdieping vind je twee ruime slaapkamers, een fraaie badkamer en een zonnig dakterras. Op de tweede verdieping liggen nog twee kamers met dakkapellen, ideaal als slaap-, werk- of hobbyruimte.

De beschutte stadstuin op het zuiden biedt een fijne plek om buiten te genieten. Daarbij woon je op loopafstand van het centrum, het station en het water van het Kanaal van Steenenhoek. Hier komen sfeer, comfort en een geweldige ligging perfect samen.

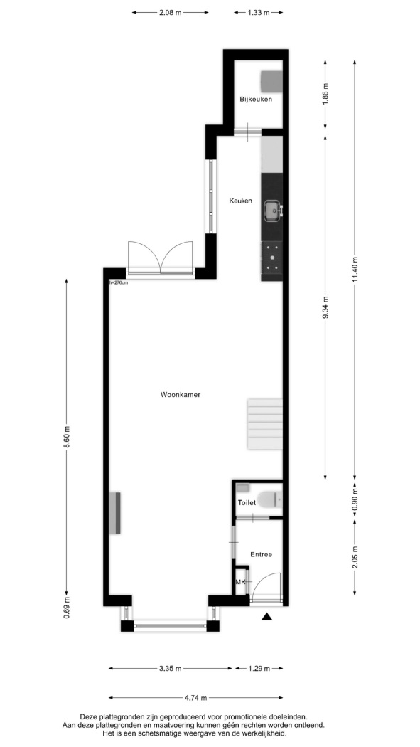
INDELING BEGANE GROND

Welkom!
Al bij aankomst voel je het: hier woon je met plezier. Achter het charmante gietijzeren hekje, langs de bloeiende hortensia’s en het strakke sierstraatwerk, loop je naar de groene voordeur – een entree die meteen een glimlach oproept. De hal verleent toegang tot de woonkamer, het moderne toilet en de meterkast.

Wonen & Koken
Aan de voorzijde zorgt de erker voor extra lichtinval én karakter, met een knus zitgedeelte rond de strakke open haard met inzethaard – compleet met een gezellig plekje voor de houtblokken ernaast. De combinatie van strak gestucte wanden, een charmant behang accent, het plafond met sierrozet en de eiken look laminaatvloer geeft de ruimte een warme, stijlvolle en uitnodigende uitstraling.

Aan de achterzijde is volop ruimte voor een lange eettafel, perfect gepositioneerd bij de dubbele openslaande deuren met glas-in-lood bovenlichten. Hier vloeit binnen moeiteloos over naar buiten – ideaal voor zomeravonden met open deuren en een goed glas wijn.

Uitgebouwde keuken
De uitgebouwde keuken aan de tuinzijde is tijdloos ingericht en heerlijk licht, met een groot raam dat uitkijkt op de sfeervolle stadstuin. De rechte opstelling met donkerhouten kastfronten straalt warmte en rust uit. Uiteraard is de keuken volledig uitgerust met alle moderne gemakken: een 5-pits gaskookplaat, afzuigkap, combi-oven, koel-/vriescombinatie en vaatwasmachine. Een fijne plek waar koken niet hoeft, maar wél leuk is.

Bijkeuken
Aansluitend vind je de bijkeuken, bereikbaar vanuit de keuken. Handig ingericht met aansluitingen voor wasmachine en droger – de plek waar het huishouden netjes uit het zicht blijft, precies zoals je het wilt.

INDELING EERSTE VERDIEPING

Twee slaapkamers
Op de eerste verdieping bevinden zich twee royale, woningbrede slaapkamers van elk circa 17 m².
De slaapkamer aan de voorzijde valt op door de prachtige glas-in-lood bovenlichten in groen tint, een vaste kast én een praktische inloopkast – volop bergruimte en sfeer in één.

De slaapkamer aan de achterzijde biedt nog een extra verrassing: een deur naar het royale, circa 10 m² grote dakterras op het zuiden. Dit terras is afgewerkt met onderhoudsvriendelijke, antracietkleurige kunststof tegels en biedt een prachtig uitzicht over het groene landschap, met zicht op zowel de Molen als de Grote Kerk van Gorinchem. Een heerlijke plek om de dag te beginnen met een kop koffie, of om ’s avonds te ontspannen in de laatste zonnestralen.

Opfrissen
De badkamer is recent vernieuwd en echt een plaatje. De combinatie van stijlvolle wandtegels met vintage zeshoek tegels geeft de ruimte karakter en warmte. De moderne inloopdouche met regendouche, handdouche en een handige nis voor je shampoo maakt het geheel helemaal af. Verder vind je hier een dubbel wastafelmeubel met spiegel, een tweede toilet en een designradiator – praktisch, comfortabel én mooi om te zien.

INDELING TWEEDE VERDIEPING

Via een vaste trap bereik je de tweede verdieping. De overloop biedt toegang tot een bergkast met de opstelplaats van de cv-ketel en twee fraai afgewerkte slaapkamers aan de voor- en achterzijde. Beide kamers zijn voorzien van dakkapellen, wat zorgt voor extra ruimte, veel daglicht en een prettige, rustige sfeer. Een fijne verdieping die zich uitstekend leent voor slapen, werken of hobby.

Tuin & Buitenruimte
Aan de achterzijde ligt een beschutte stadstuin van circa 20 m² met een bijna mediterrane sfeer. De tuin is voorzien van tegels, verhoogde plantenbakken vol geraniums en een pergola met druif. Dankzij de zuidelijke ligging geniet je hier volop van de zon en het uitzicht op groen en bomen – een heerlijke plek voor koffie, een boek of gewoon even niets.

Highlights
•Bouwjaar 1935
•Grondig gerenoveerd in 2022
•Woonoppervlakte 126 m²
•Perceeloppervlakte 90 m²
•Volledig voorzien van HR++ glas, aan de voorzijde akoestisch glas
•Energielabel C
•Sfeervolle woonkamer met erker en dubbele openslaande deuren naar de tuin
•Open haard met inzet houthaard voor extra warmte en sfeer
•Uitgebouwde keuken voorzien van diverse inbouwapparatuur
•Praktische bijkeuken
•Eerste verdieping: twee woningbrede slaapkamers en kastruimte
•Dakterras van ca. 10 m², gelegen op het zuiden
•Bijna nieuwe badkamer met inloopdouche, dubbel wastafelmeubel, toilet en designradiator
•Tweede verdieping: twee slaapkamers met dakkapellen en bergkast met cv-opstelling
•Beschutte stadstuin op het zuiden
•Achter de woning bevindt zich een ruim parkeerplein met voldoende parkeergelegenheid
•Fijne ligging, op loopafstand van het centrum van Gorinchem
•Vanaf 1 januari 2026 stijgt de reguliere NHG-grens naar € 470.000. Dit biedt toekomstige kopers extra financiële ruimte en zekerheid bij de aankoop van een woning

Lees de volledige omschrijving

Kenmerken

Overdracht

Status Beschikbaar
Aanvaarding In overleg

Bouwvorm

Soort object Woonhuis
Soort woning Herenhuis
Type woning Tussenwoning
Bouwjaar 1935
Bouwvorm Bestaande bouw
Ligging Aan een drukke weg

Indeling

Woonoppervlakte 126 m²
Perceeloppervlakte 90 m²
Inhoud 433 m³
Aantal kamers 5
Aantal slaapkamers 4
Aantal woonlagen 3

Energie

Energieklasse C
Energie einddatum maandag 29 oktober 2029
Isolatie Vloerisolatie, dubbel glas
Warmwater Cv ketel
Verwarming Cv ketel

Buitenruimte

Tuin Achtertuin, voortuin
Hoofdtuin Achtertuin
Oppervlakte hoofdtuin 20 m²
Ligging hoofdtuin Zuid-west
Achterom Nee
Kwaliteit tuin Verzorgd

Bergruimte

Garage Geen garage

Parkeergelegenheid

Voorzieningen Openbaar parkeren

Dak

Dak Samengesteld dak

Overig

Permanente bewoning Ja
Onderhoud binnen Uitstekend
Onderhoud buiten Uitstekend
Huidig gebruik Woonruimte
Huidige bestemming Woonruimte

Voorzieningen

Voorzieningen Tv kabel, rookkanaal, natuurlijke ventilatie

Kadastrale gegevens

Gemeente Gorinchem
Sectie F
Perceelnummer 298
Oppervlakte 90 m²
Eigendomssituatie Volle eigendom
v1-20250318-8G0A1608E
Interesse in deze woning?

Leo helpt u graag

Gratis waardebepaling

U denkt erover uw woning te verkopen en wilt graag weten wat het waard is? We komen graag bij u langs en bepalen de waarde van uw woning.

Gratis waardebepaling

Deel deze woning

Uw persoonlijke adviseur in de regio

Maak kennis met de HypotheekWeter

Ligging

Afspraak maken voor een bezichtiging? Neem contact met ons op

Vergelijkbare woningen