0183 - 635011 0183 - 635011 Stel een vraag Stel een vraag
Verhuurd

Boerenstraat 64

GORINCHEM
Huurprijs: € 1.426,- per maand
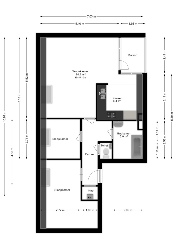
  • Woonoppervlakte 66 m2
  • Aantal slaapkamers 2
  • Bouwjaar 1755

Omschrijving

Karakteristiek wonen in het hart van Gorinchem!

Midden in de historische binnenstad van Gorinchem vind je dit mooie appartement aan de Boerenstraat 64. Het pand kent een rijke historie: ooit een tuighuis, gebouwd in 1755, en later verbouwd tot verschillende appartementen. Authentiek, sfeervol én met een eigen balkon: een unieke combinatie in de stad!

Bij binnenkomst tref je een lange hal met toegang tot een praktische bergkast, het toilet, de badkamer, slaapkamers en de woonkamer. De woonkamer is ruim (24 m²) en licht, met toegang tot het balkon welke gelegen is op het westen. Een heerlijke plek om te genieten van de ochtendzon! De keuken is halfopen en praktisch ingedeeld.

De twee slaapkamers zijn net als de woonkamer en badkamer voorzien van authentieke houten balken. Dankzij de dakramen valt er veel natuurlijk daglicht binnen, wat zorgt voor prettige en lichte ruimtes. Verder is de badkamer voorzien van een ligbad met douche en een wastafel. Tevens is hier ook de wasmachineaansluiting te vinden. De woning heeft één woonlaag, is verrassend ruim opgezet en biedt veel mogelijkheden om naar eigen smaak verder te moderniseren. De woning beschikt over energielabel B en wordt verwarmd via een cv-installatie. 

Pluspunten van deze woning
- Karakteristiek appartement in voormalig tuighuis (bouwjaar 1755)
- Midden in het historische centrum van Gorinchem
- Eigen balkon van 4 m² (westelijk gelegen)
- Woonoppervlakte 66 m²
- Gezellige woonkamer met authentieke houten balken
- Halfopen keuken
- Twee lichte slaapkamers
- Badkamer met ligbad en wastafel
- Toilet en praktische bergkast
- Rijksmonument
- Betaald parkeren, parkeergarages en parkeervergunningen beschikbaar

En dat alles op een toplocatie: in het bruisende centrum van Gorinchem, op loopafstand van winkels, restaurants, de rivier en alle voorzieningen die deze vestingstad zo geliefd maken. Ook de bereikbaarheid is ideaal: binnen enkele minuten ben je op station Gorinchem en via de A15 en A27 rij je zo naar steden als Utrecht, Breda of Rotterdam.

Huurprijs: € 1.426,17 per maand excl. g/w/e + € 40,- servicekosten
Contract: minimaal 12 maanden doorlopend voor onbepaalde tijd
Inkomenscheck: 3 x de huurprijs (bruto)
Beschikbaarheid: per direct
Waarborgsom: 2 x de kale huurprijs (€ 2.852,34)

 

Lees de volledige omschrijving

Kenmerken

Overdracht

Status Verhuurd
Aanvaarding In overleg

Bouwvorm

Soort object Appartement
Bouwjaar 1755
Bouwvorm Bestaande bouw

Indeling

Woonoppervlakte 66 m²
Inhoud 230 m³
Aantal kamers 3
Aantal slaapkamers 2
Aantal woonlagen 1

Energie

Energieklasse B
Energie einddatum zaterdag 31 mei 2031

Buitenruimte

Tuin Geen tuin
Achterom Nee

Bergruimte

Garage Geen garage

Overig

Permanente bewoning Ja
Onderhoud binnen Goed
Onderhoud buiten Goed
Huidig gebruik Woonruimte
Huidige bestemming Woonruimte
v1-20250417-8G0A2933E
Interesse in deze woning?

Sidney helpt u graag

Gratis waardebepaling

U denkt erover uw woning te verkopen en wilt graag weten wat het waard is? We komen graag bij u langs en bepalen de waarde van uw woning.

Gratis waardebepaling

Deel deze woning

Uw persoonlijke adviseur in de regio

Maak kennis met de HypotheekWeter

Ligging

Afspraak maken voor een bezichtiging? Neem contact met ons op