0183 - 635011 0183 - 635011 Stel een vraag Stel een vraag
Verkocht onder voorbehoud

A.W. de Landgraafstraat 19

SLIEDRECHT
€ 300.000,- k.k.
  • Woonoppervlakte 63 m2
  • Perceeloppervlakte 95 m2
  • Aantal slaapkamers 3
  • Bouwjaar 1936

Omschrijving

Op zoek naar een sfeervolle start op een heerlijke plek? Deze charmante jaren ’30 eindwoning in de ‘Oude Uitbreiding’ staat klaar om jou met open armen te verwelkomen!

In deze geliefde wijk in Sliedrecht woon je op een centrale en levendige locatie, vlakbij het centrum én het prachtige Wilhelminapark — alles wat je nodig hebt ligt binnen handbereik.

Binnen vind je drie slaapkamers, een moderne badkamer die in 2022 deels is vernieuwd, én twee kelderruimtes — waarvan één extra ruim en voorzien van wasmachine- en droger aansluiting. Perfect als extra opslag, hobbyruimte of rustige studieplek.

De woonkamer ademt sfeer dankzij de authentieke erker, de originele glas-in-lood bovenlichten en de stijlvolle haardmantel met sfeerhaard. Aan de achterzijde is de woning praktisch uitgebouwd met een tussenhal, toilet en toegang tot de keuken en de tuin.

Achter de woning ligt een beknopte maar zonnige tuin op het westen — perfect voor een gezellige zitplek waar je in de middag en vroege avond nog heerlijk buiten kunt genieten.

Met energielabel C en grotendeels dubbele beglazing is dit een comfortabele, karaktervolle én toekomstbestendige woning.

Kortom: dé ideale starterswoning op een gezellige, centrale plek!

INDELING BEGANE GROND

Welkom!
Via de entree met meterkast heb je direct toegang tot de woonkamer.

Wonen en koken
De gezellige woonkamer is voorzien van een gietvloer en heeft aan de voorzijde een sfeervol erkerraam met glas-in-lood bovenlicht. Ook aan de tuinzijde zorgt een raam met glas-in-lood voor een karaktervolle lichtinval. In deze ruimte staat een stijlvolle haardmantel met elektrische sfeerhaard, die meteen voor een warme uitstraling zorgt.

Vanuit de woonkamer bereik je zowel de verdieping als het souterrain/keldergedeelte.
Aan de achterzijde is de woning uitgebouwd met een praktische tussenhal, voorzien van een modern, zwevend toilet met fonteintje, en een deur naar de tuin. Vanuit de tussenhal is ook de aangebouwde keuken bereikbaar.

Kelder
Extra berging onder het toilet en keuken aanwezig (4.57 x 1.76 x 1.67), via een luik in het portaal toegankelijk

De keuken kijkt leuk uit op de tuin en beschikt over een rechte opstelling met lichte kastfronten, rvs-grepen en inbouwapparatuur: een inductiekookplaat, afzuigkap, combi-oven, koelkast en vaatwasser. Extra praktisch: de schuur/berging (3.34 x 1.93 m) is direct vanuit de keuken binnendoor toegankelijk en heeft een deur naar de tuin.

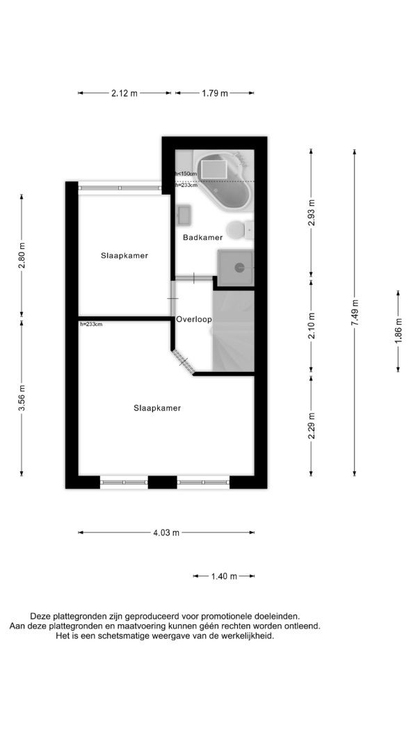
INDELING EERSTE VERDIEPING

2 Slaapkamers
Vanaf de overloop, voorzien van karakteristieke paneeldeuren, bereik je twee slaapkamers op de eerste verdieping.
De hoofdslaapkamer strekt zich uit over de volledige breedte van de woning aan de voorzijde en beschikt over meerdere lichtramen. Hierdoor voelt de kamer heerlijk ruim en licht aan, met volop plek voor een grote kledingkast.
De tweede slaapkamer is flexibel in te delen en daarmee ideaal als kinderkamer, thuiswerkplek of royale kastenkamer. Beide kamers zijn voorzien van brede raampartijen, waardoor er veel daglicht binnenvalt en de ruimtes een prettige sfeer hebben.

Badkamer
De badkamer aan de achterzijde is in 2022 deels gemoderniseerd en biedt een comfortabele en verzorgde uitstraling. De ruimte is uitgerust met een hoekbad, douchecabine, wastafelmeubel, een tweede toilet én een designradiator/handdoekradiator.
Dankzij het dakraam valt er prettig daglicht binnen en kun je goed ventileren, wat de badkamer tot een fijne plek maakt om de dag rustig te beginnen of ontspannen af te sluiten.

INDELING TWEEDE VERDIEPING

De tweede verdieping is een verrassend praktische zolderruimte die bereikbaar is via een vaste trap. De dakkapel zorgt voor extra daglicht en comfortabele stahoogte, waardoor deze verdieping perfect te gebruiken is als derde slaapkamer, logeerkamer of hobbyruimte.
Zo vormt de zolder een volwaardige én veelzijdige uitbreiding van de woning.

Kelder
Onder de volledige woonkamer bevindt zich een ruime en verrassend veelzijdige kelder. Hier zijn de aansluitingen voor de wasmachine en droger aanwezig, en dankzij de royale afmetingen biedt de ruimte volop mogelijkheden. Denk aan een praktische wasruimte, extra opslag, een hobbyhoek of zelfs een stille werkplek.

Tuin / buitenruimte
De compacte achtertuin van ca. 19 m² ligt op het westen, waardoor je in de middag en vroege avond heerlijk van de zon geniet. Via de zijpoort heb je direct achterom toegang tot de steeg naast de woning.
De tuin (8.20 x 2.27 m) is onderhoudsarm en praktisch ingericht. Achterin bevindt zich een stenen berging (3.39 x 1.94 m) met water en elektra, bereikbaar zowel vanuit de keuken als via de tuin — ideaal voor extra opslag of een kleine werkplek.

Highlights
•Bouwjaar 1936
•Woonoppervlakte 63 m²
•Perceeloppervlakte 95 m²
•Energielabel C – grotendeels dubbel glas (m.u.v. slaapkamer voorzijde)
•Gevelisolatie met EPS-termoparels en dakisolatie met glaswol en tempex
•Drie slaapkamers, inclusief dakkapel op de 2e verdieping
•Badkamer met hoekbad, douchecabine, wastafelmeubel en toilet
•Tuin op het westen met achterom via zij-poort
•Kelder 1: Ruime kelder met was-/droogopstelling en veel bergruimte
•Kelder 2: Extra kelder berging onder het toilet en keuken aanwezig, via een luik in het portaal toegankelijk
•Avanta Ace 28c CV-combiketel (2025)
•Gelegen dichtbij centrum en diverse voorzieningen
•Openbaar parkeren in de omgeving
•Ideaal voor starters of stellen

Benieuwd naar de sfeer van deze charmante jaren ’30-woning? Maak snel een afspraak voor een bezichtiging — we laten je de woning graag in het echt beleven!

Ligging & omgeving
Deze woning ligt in een rustige, gezellige straat in de geliefde wijk Oude Uitbreiding — een buurt met karakter, waar de charme van de jaren ’30 mooi samengaat met hedendaags wooncomfort. Op slechts enkele minuten lopen vind je het centrum van Sliedrecht, met winkels, supermarkten, horeca en alle dagelijkse voorzieningen binnen handbereik.

Sliedrecht is een gemoedelijk en levendig dijkdorp aan de Merwede, bekend om zijn rijke baggerhistorie en prettige dorpssfeer. In de omgeving zijn meerdere groenstroken, het Wilhelminaplein en de jachthaven, ideaal om te wandelen, ontspannen of gewoon even te genieten van het uitzicht.

Het openbaar vervoer is uitstekend bereikbaar, met het station en diverse bushaltes op korte afstand. Via de A15 en de aansluiting op de A27 ben je bovendien zo in steden als Dordrecht, Gorinchem of richting Rotterdam en Utrecht.
Parkeren kan direct voor de deur of in de omliggende straten — allemaal openbaar en zonder gedoe.
Kortom: een fijne woonplek in een centrale, vriendelijke en karaktervolle omgeving waar alles dichtbij is.

Lees de volledige omschrijving

Kenmerken

Overdracht

Status Verkocht onder voorbehoud
Aanvaarding In overleg

Bouwvorm

Soort object Woonhuis
Soort woning Eengezinswoning
Type woning Eindwoning
Bouwjaar 1936
Bouwvorm Bestaande bouw
Ligging In het centrum

Indeling

Woonoppervlakte 63 m²
Perceeloppervlakte 95 m²
Inhoud 371 m³
Aantal kamers 4
Aantal slaapkamers 3
Aantal woonlagen 5

Energie

Energieklasse C
Energie einddatum zondag 19 september 2032
Isolatie Dakisolatie, grotendeels dubbelglas
Warmwater Cv ketel
Verwarming Cv ketel

Buitenruimte

Tuin Achtertuin, voortuin
Hoofdtuin Achtertuin
Oppervlakte hoofdtuin 19 m²
Ligging hoofdtuin West
Achterom Ja
Kwaliteit tuin Normaal

Bergruimte

Garage Geen garage
Schuur / Berging Inpandig

Parkeergelegenheid

Voorzieningen Openbaar parkeren

Dak

Dak Zadeldak

Overig

Permanente bewoning Ja
Onderhoud binnen Redelijk tot goed
Onderhoud buiten Redelijk
Huidig gebruik Woonruimte
Huidige bestemming Woonruimte

Voorzieningen

Voorzieningen Tv kabel, buitenzonwering

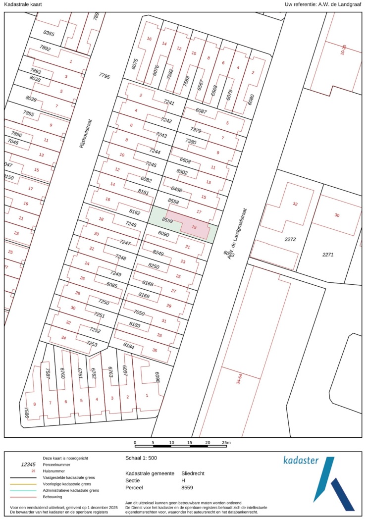
Kadastrale gegevens

Gemeente Sliedrecht
Sectie H
Perceelnummer 8559
Oppervlakte 95 m²
Eigendomssituatie Volle eigendom
v1-20250318-8G0A1608E
Interesse in deze woning?

Leo helpt u graag

Gratis waardebepaling

U denkt erover uw woning te verkopen en wilt graag weten wat het waard is? We komen graag bij u langs en bepalen de waarde van uw woning.

Gratis waardebepaling

Deel deze woning

Uw persoonlijke adviseur in de regio

Maak kennis met de HypotheekWeter

Ligging

Afspraak maken voor een bezichtiging? Neem contact met ons op

Vergelijkbare woningen