0183 - 635011 0183 - 635011 Stel een vraag Stel een vraag
Verkocht

Hoogstraat 37 A

WERKENDAM
€ 470.000,- v.o.n.
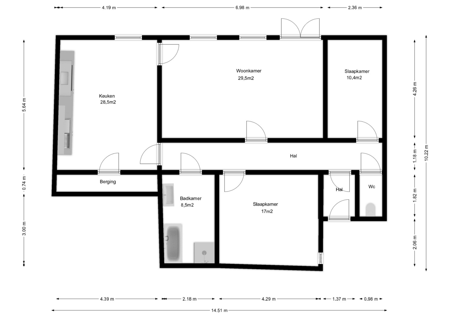
  • Woonoppervlakte 111 m2
  • Perceeloppervlakte 0 m2
  • Aantal slaapkamers 2
  • Bouwjaar 2024

Omschrijving

Combineer een historisch en monumentaal pand met het comfort van deze tijd en je hebt dit turn-key appartement aan de bruisende Hoogstraat 37A. Kom thuis op deze unieke locatie.

Het appartement wordt volledig gerenoveerd en verduurzaamd naar energielabel A. Aan elk detail wordt gedacht, zo wordt ook de fundering vernieuwd. Je zal dus wonen in een woning zo goed als nieuwbouw in een monumentaal jasje. Wat dit project leuk en uniek maakt is de mogelijkheid om je appartement naar eigen smaak af te werken. Hoe gaaf is dat! Na de aankoop zijn er stelposten voor de keuken, badkamer en vloer. Stel dus je eigen droomkeuken, badkamer en vloer samen bij onze partners. Indien gewenst kijkt onze interieurstyliste mee. Zo is jouw woning bij oplevering volledig af en voelt het direct aan als een thuis.

Je koopt de woning via een koop- aanneemovereenkomst. Net als bij nieuwbouw betekent dit dat de woning wordt afgebouwd nadat je de woning hebt gekocht, de aannemer zal de woning opleveren conform de technische omschrijving. De koopsom is deels kosten koper en deels vrij op naam. Over de koopsom wordt 2% overdrachtsbelasting gerekend tenzij je daar vrijstelling voor kunt krijgen.

Keuken, badkamer en vloer naar eigen smaak af te werken
Gelegen op eigen grond
Bouwjaar 1906
Energielabel A
Riante tuin
Deurbel met camera en video intercom met elektrische deuropener
Geleverd met nieuwe groepenkast met CAI
Verwarming en warm water middels HR-ketel Remeha Tzerra Ace 28C CW4
De wanden en plafonds worden geïsoleerd en afgewerkt met stukwerk
Nieuwe deuren met nieuw hang en sluitwerk
De woning wordt volledig voorzien van kozijnen met HR++ glas
VvE is in oprichting; gezamenlijk met de 6 nieuwe eigenaren vorm te geven
In de koopovereenkomst zullen een ouderdoms- en niet-bewoningsclausule worden opgenomen
Details monument worden in tact gehouden
Project notaris ArkelStad Notarissen
Verwachte oplevering tussen medio november 2024 en januari 2025

Lees de volledige omschrijving

Kenmerken

Overdracht

Status Verkocht
Aanvaarding In overleg

Bouwvorm

Soort object Appartement
Bouwjaar 2024
Bouwvorm Nieuwbouw

Indeling

Woonoppervlakte 111 m²
Inhoud 333 m³
Aantal kamers 3
Aantal slaapkamers 2
Aantal woonlagen 1

Energie

Energieklasse A
Energie einddatum maandag 5 juni 2034

Buitenruimte

Tuin Achtertuin
Achterom Nee

Bergruimte

Garage Geen garage
Schuur / Berging Inpandig

Parkeergelegenheid

Voorzieningen Openbaar parkeren

Overig

Permanente bewoning Ja
Onderhoud binnen Goed tot uitstekend
Onderhoud buiten Goed tot uitstekend

Kadastrale gegevens

Gemeente Werkendam
Sectie O
Perceelnummer 3102
Eigendomssituatie Volle eigendom
v1-20250318-8G0A1608E
Interesse in deze woning?

Leo helpt u graag

Uw persoonlijke adviseur in de regio

Maak kennis met de HypotheekWeter

Deel deze woning

Ligging

Vergelijkbare woningen