0183 - 635011 0183 - 635011 Stel een vraag Stel een vraag
Onder optie

Glas in Lood - Smart Tiny Loft - Smart Tiny Single 22

LEERDAM
€ 199.000,- v.o.n.
  • Woonoppervlakte 26 m2
  • Perceeloppervlakte 0 m2
  • Bouwjaar 2026

Omschrijving

De inschrijving is gesloten.

Slim, stijlvol én betaalbaar wonen in Broekgraaf

Groots wonen op kleine (duurzame) voet
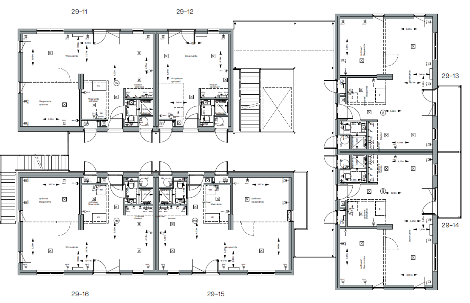
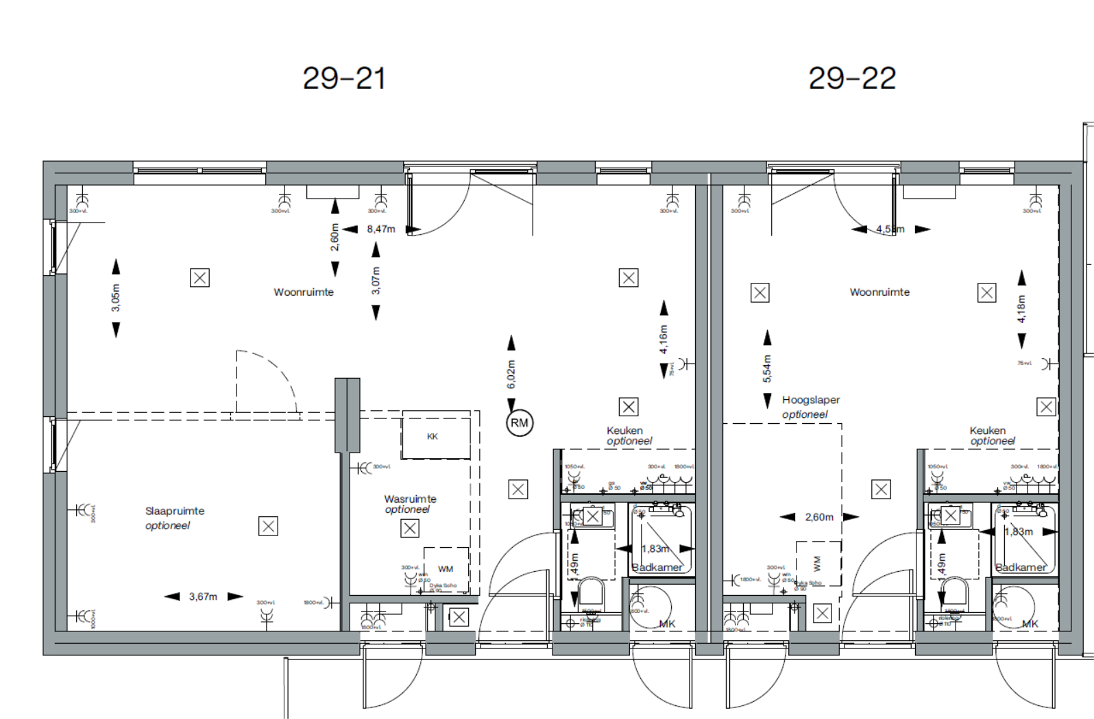
Tiny wonen is duurzaam, betaalbaar én gewild. Smart Tiny Loft realiseert in Leerdam 17 koopappartementen met een compact woonoppervlak, zonder concessies te doen aan het wooncomfort.

Dankzij het Smart Inbouwpakket, bieden de Smart Tiny Single (circa 27 m² gbo) en de Smart Tiny Duo (circa 50 m² gbo) een premium wooncomfort. Met een A+++ label belooft dit unieke project groots wonen op kleine (duurzame) voet.

Wonen in een slimme community
De ligging in de nieuwe, groene wijk Broekgraaf biedt rust én reuring, met winkels, openbaar vervoer, recreatievoorziengen en wandelroutes om de hoek.

Hier woon je niet alleen comfortabel, maar maak je ook deel uit van een opkomende, betrokken buurtgemeenschap.

Lees de volledige omschrijving

Kenmerken

Overdracht

Status Onder optie
Aanvaarding In overleg

Bouwvorm

Soort object Appartement
Bouwjaar 2026
Bouwvorm Nieuwbouw

Indeling

Woonoppervlakte 26 m²
Inhoud 78 m³
Aantal kamers 1
Aantal woonlagen 1

Energie

Energieklasse A+++
Energie einddatum maandag 1 oktober 2035

Buitenruimte

Tuin Geen tuin
Achterom Nee

Bergruimte

Garage Geen garage

Parkeergelegenheid

Voorzieningen Openbaar parkeren

Overig

Permanente bewoning Ja
Onderhoud binnen Goed tot uitstekend
Onderhoud buiten Goed tot uitstekend

Kadastrale gegevens

Gemeente Leerdam
Sectie K
Perceelnummer 2033
Eigendomssituatie Volle eigendom
v1-20250318-8G0A1608E
Interesse in deze woning?

Leo helpt u graag

Uw persoonlijke adviseur in de regio

Maak kennis met de HypotheekWeter

Deel deze woning

Ligging

Vergelijkbare woningen