0183 - 635011 0183 - 635011 Stel een vraag Stel een vraag
Onder optie

De Overtuin - Hoek- en tussenwoningen 17

ARKEL
€ 465.000,- v.o.n.
  • Woonoppervlakte 126 m2
  • Perceeloppervlakte 153 m2
  • Aantal slaapkamers 3
  • Bouwjaar 2026

Omschrijving

Thuis in De Overtuin
Een gezellige nieuwe woonbuurt aan het Merwedekanaal in Arkel, Hier woon je straks midden in een unieke wijk met eigen park, met volop ruimte om je heen. Het park meandert door de buurt en verbindt het water, de dijken en de woningen in knusse hofjes. Deze opzet zorgen voor een gemoedelijke, dorpse sfeer waar je je meteen thuis voelt.

Buiten spelen
Kinderen kunnen hier veilig buitenspelen en lekker ravotten in het groen, terwijl jij je buren ontmoet in het park of aan het water. Of het nu gaat om een spontaan praatje aan de voordeur, een barbecue met de buurt of samen genieten van de natuur, hier ontstaat een warme en hechte Overtuin-community. Warm, ontspannen en gewoon heerlijk wonen – dát vind je hier. 

Hechte buurt
Als bewoner van De Overtuin prijs je jezelf gelukkig. Je leeft hier met de seizoenen: van frisse lentekriebels en bloeiende bloemen tot de warme herfstkleuren in het park. Het is fijn om deel uit te maken van een hechte buurt waar je elkaar kent en op elkaar kunt rekenen. Terwijl je kinderen zorgeloos buiten spelen, weet je dat er altijd wel iemand een oogje in het zeil houdt, dat geeft een veilig en vertrouwd gevoel.

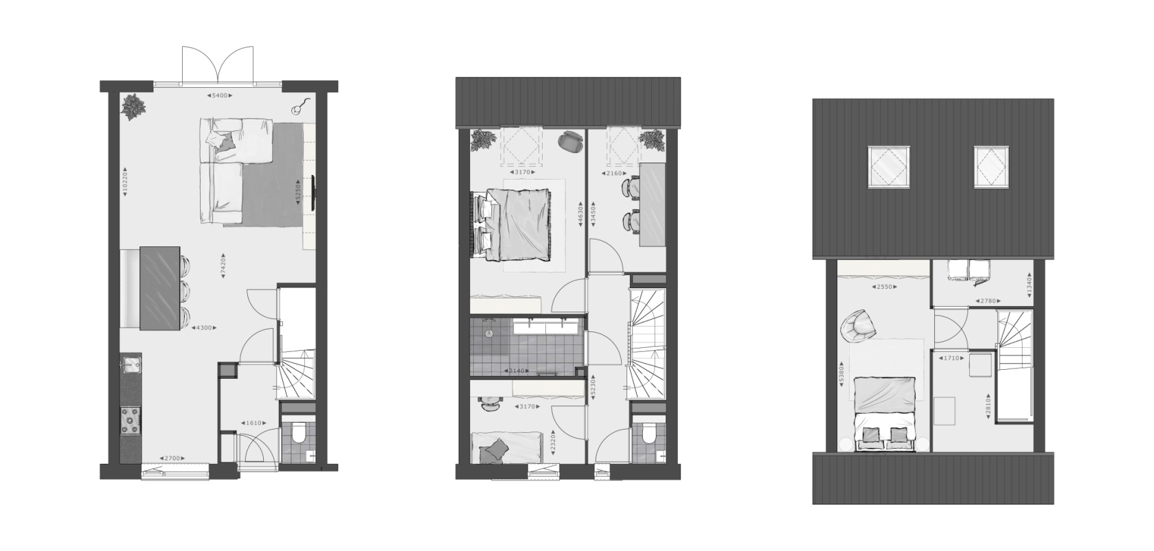
Type E
Dit karakteristieke rijtje heeft alles te bieden: super duurzaam door de standaard zonnepanelen en heel herkenbaar door de uitgesproken architectuur. Alle woningen hebben een fijne tuin. De bijzondere houten entree zorgt voor een mooie verbijzondering in het gevelaanzicht.

Kenmerken
Woonoppervlakte: ca. 126m2 GBO
Kaveloppervlakte: van ca. 124 m2 tot ca. 207m2
Aantal slaapkamers: 3 + nog vrij in te delen zolderverdieping
Separaat toilet op de verdieping (m.u.v. bnr’s 20, 33, 37 en 69)
Afgesloten techniekruimte op zolder
Energieneutrale woning (energielabel A ++++)
Bouwnummers 17 en 40 liggen op de hoek en hebben op alle verdiepingen extra ramen in de zijgevel
Bouwnummers 20, 33, 37 en 69 liggen op de hoek en hebben een zij-entrée
Inclusief keuken
Inclusief sanitair en tegelwerk in sanitaire ruimten

Heb je interesse? Maak dan een persoonlijk account aan en schrijf je in! Heb je al een account? Login op jouw persoonlijke account en schrijf je direct in via http://wonenindeovertuin.nl

 

Lees de volledige omschrijving

Kenmerken

Overdracht

Status Onder optie
Aanvaarding In overleg

Bouwvorm

Soort object Woonhuis
Soort woning Eengezinswoning
Type woning Hoekwoning
Bouwjaar 2026
Bouwvorm Nieuwbouw

Indeling

Woonoppervlakte 126 m²
Inhoud 483 m³
Aantal kamers 4
Aantal slaapkamers 3
Aantal woonlagen 1

Energie

Energieklasse A++++
Energie einddatum maandag 21 mei 2035

Buitenruimte

Tuin Achtertuin, voortuin
Achterom Nee

Bergruimte

Garage Geen garage
Schuur / Berging Vrijstaand hout

Parkeergelegenheid

Voorzieningen Openbaar parkeren

Overig

Permanente bewoning Ja
Onderhoud binnen Uitstekend
Onderhoud buiten Uitstekend

Kadastrale gegevens

Gemeente Arkel
Sectie C
Perceelnummer 1957
Oppervlakte 153 m²
Eigendomssituatie Volle eigendom
v1-20250318-8G0A1538EE
Interesse in deze woning?

Stefan helpt u graag

Uw persoonlijke adviseur in de regio

Maak kennis met de HypotheekWeter

Deel deze woning

Ligging

Vergelijkbare woningen