0183 - 635011 0183 - 635011 Stel een vraag Stel een vraag
Verkocht onder voorbehoud

Westwagenstraat 55

GORINCHEM
€ 295.000,- k.k.
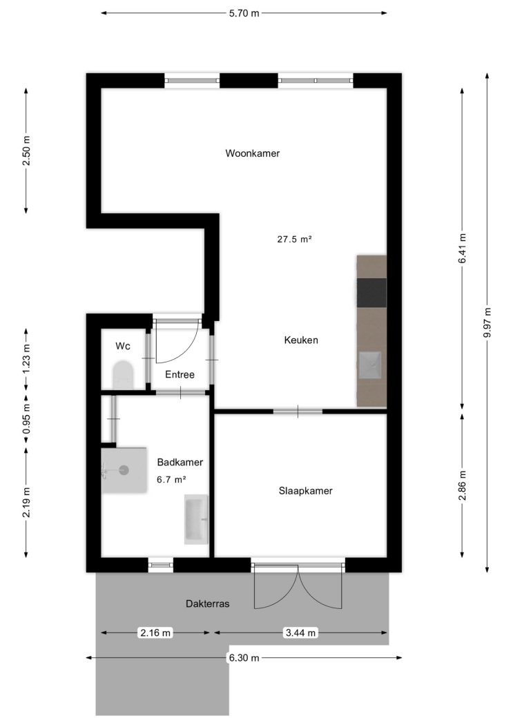
  • Woonoppervlakte 50 m2
  • Aantal slaapkamers 1
  • Bouwjaar 1968

Omschrijving

Sfeervol en volledig vernieuwd appartement met dakterras in hartje Gorinchem!

Midden in het historische centrum van Gorinchem, aan de sfeervolle Westwagenstraat, bevindt zich dit charmante en vernieuwde 2-kamerappartement met een heerlijk dakterras van maar liefst 6,3 meter breed! Een ideale plek voor wie wil genieten van de gezelligheid van de binnenstad, maar thuis rust en comfort zoekt.

Zodra je binnenkomt, valt direct de lichte en moderne woonkamer op. De grote, karakteristieke ramen geven het appartement niet alleen een authentieke uitstraling, maar zorgen ook voor veel natuurlijke lichtinval. De ramen kunnen omhoog worden geschoven — een mooi detail dat bijdraagt aan de unieke sfeer van het pand.

De open keuken sluit naadloos aan op de woonkamer en is uitgevoerd in natuurlijke kleuren, wat zorgt voor een warme en eigentijdse uitstraling. Om de hoek is er ruimte voor een gezellige zithoek, perfect om te ontspannen na een drukke dag of om vrienden te ontvangen. De woning wordt verwarmd middels radiatoren, wat zorgt voor een aangename temperatuur door het hele appartement.

De slaapkamer (3,44 x 2,86 m) biedt voldoende ruimte voor een tweepersoonsbed en kledingkast en heeft openslaande deuren naar het dakterras. Hier kun je in alle rust genieten van de buitenlucht, met uitzicht op de rustige achterzijde van de woning — een zeldzame luxe in het centrum!

De badkamer is praktisch ingedeeld en voorzien van een inloopdouche, wastafel en wasmachineaansluiting. Daarnaast is er een separaat toilet aanwezig.

Pluspunten op een rij:
- Woonoppervlakte: 50 m²
- Voorzetramen aan de voorzijde
- Ruim dakterras (ca. 9 m²) aan de achterzijde
- Volledig vernieuwd appartement
- Authentiek karakter met grote schuiframen
- Open keuken in natuurlijke tinten
- Slaapkamer met openslaande deuren naar terras
- Badkamer met inloopdouche en wasmachineaansluiting
- Handig intercomsysteem met camera
- Midden in de stad, maar toch heerlijk rustig gelegen
- Beschermd stadsgezicht

Dit appartement biedt het beste van twee werelden: wonen in de levendige binnenstad van Gorinchem, met winkels, horeca en de gezellige vestingwallen op loopafstand, terwijl je thuis kunt genieten van de rust op je eigen dakterras.

Kortom: een sfeervol en instapklaar appartement met karakter, licht en buitenruimte — een unieke kans in hartje Gorinchem!

Lees de volledige omschrijving

Kenmerken

Overdracht

Status Verkocht onder voorbehoud
Aanvaarding In overleg

Bouwvorm

Soort object Appartement
Bouwjaar 1968
Bouwvorm Bestaande bouw

Indeling

Woonoppervlakte 50 m²
Inhoud 165 m³
Aantal kamers 2
Aantal slaapkamers 1
Aantal woonlagen 1

Energie

Energieklasse A
Energie einddatum maandag 3 september 2035
Isolatie Voorzetramen
Warmwater Cv ketel
Verwarming Cv ketel

Buitenruimte

Tuin Geen tuin
Achterom Nee

Bergruimte

Garage Geen garage

Parkeergelegenheid

Voorzieningen Betaald parkeren, parkeergarage, parkeervergunningen

Dak

Dak Samengesteld dak

Overig

Permanente bewoning Ja
Onderhoud binnen Goed
Onderhoud buiten Redelijk tot goed
Huidig gebruik Woonruimte
Huidige bestemming Woonruimte

Kadastrale gegevens

Gemeente Gorinchem
Sectie D
Perceelnummer 4829
Eigendomssituatie Volle eigendom
v1-20250318-8G0A1573E
Interesse in deze woning?

Robert helpt u graag

Gratis waardebepaling

U denkt erover uw woning te verkopen en wilt graag weten wat het waard is? We komen graag bij u langs en bepalen de waarde van uw woning.

Gratis waardebepaling

Deel deze woning

Uw persoonlijke adviseur in de regio

Maak kennis met de HypotheekWeter

Ligging

Afspraak maken voor een bezichtiging? Neem contact met ons op

Vergelijkbare woningen