0183 - 635011 0183 - 635011 Stel een vraag Stel een vraag
Verkocht onder voorbehoud

Westwagenstraat 55 a

GORINCHEM
€ 325.000,- k.k.
  • Woonoppervlakte 68 m2
  • Aantal slaapkamers 2
  • Bouwjaar 1968

Omschrijving

Charmant appartement, volledig vernieuwd en twee slaapkamers in hartje Gorinchem!

Wonen in het centrum van Gorinchem met alles binnen handbereik? Dat kan aan de Westwagenstraat 55A! Dit vernieuwde en sfeervolle 3-kamerappartement is gelegen op een toplocatie in de historische binnenstad en beschikt over een extra slaapverdieping met twee dakramen. Ideaal voor wie houdt van karakter, comfort én stadsleven.

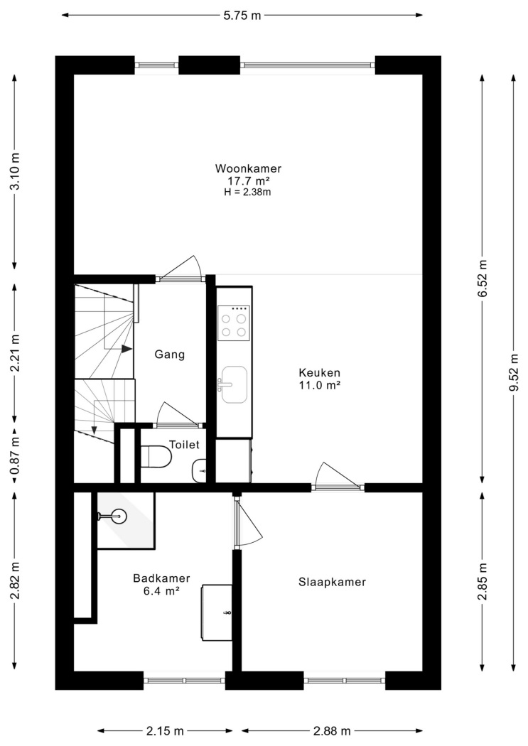
De lichte woonkamer heeft een gezellige indeling met ruimte voor een eethoek en zithoek. Dankzij de grote ramen valt er veel daglicht naar binnen en geniet je van het charmante uitzicht over de karakteristieke straat. De open keuken sluit mooi aan bij de woonkamer en is uitgevoerd in natuurlijke tinten, wat zorgt voor een rustige, moderne uitstraling.

Via de hal bereik je het separate toilet. Via de slaapkamer komt je in de badkamer, die voorzien is van een inloopdouche, wastafel en wasmachineaansluiting. Op de eerste verdieping bevindt zich de hoofdslaapkamer, terwijl de zolderverdieping mogelijk te gebruiken is als tweede slaapkamer. Deze ruimte met twee dakramen voelt licht en ruim aan — perfect als slaapkamer, logeerkamer of werkplek.

De woning wordt verwarmd via een cv-ketel en is netjes afgewerkt, waardoor je er zo in kunt trekken.

Pluspunten op een rij:
- Woonoppervlakte: 68 m²
- Twee slaapkamers, waarvan één op de zolderverdieping
- Vernieuwd en instapklaar
- Authentiek karakter met grote ramen
- Open keuken in natuurlijke tinten
- Badkamer met inloopdouche en wasmachineaansluiting
- Separaat toilet
- Voorzetramen aan de voorzijde
- Handig intercomsysteem met camera
- Ligging midden in het centrum van Gorinchem
- Gelegen in beschermd stadsgezicht

Wonen aan de Westwagenstraat betekent wonen in het hart van de stad, met gezellige winkels, cafés en restaurants letterlijk om de hoek. En ondanks de levendige omgeving woon je hier verrassend rustig. De vestingwallen, de haven en het stadspark liggen op loopafstand — perfect voor een ontspannen wandeling na het werk of in het weekend.

Kortom: een karakteristiek, licht en instapklaar appartement met twee slaapkamers op een unieke locatie in het centrum van Gorinchem!

Lees de volledige omschrijving

Kenmerken

Overdracht

Status Verkocht onder voorbehoud
Aanvaarding In overleg

Bouwvorm

Soort object Appartement
Bouwjaar 1968
Bouwvorm Bestaande bouw
Ligging In het centrum

Indeling

Woonoppervlakte 68 m²
Inhoud 226 m³
Aantal kamers 3
Aantal slaapkamers 2
Aantal woonlagen 2

Energie

Energieklasse B
Energie einddatum woensdag 3 september 2025
Isolatie Voorzetramen
Verwarming Cv ketel

Buitenruimte

Tuin Geen tuin
Achterom Nee

Bergruimte

Garage Geen garage

Parkeergelegenheid

Voorzieningen Betaald parkeren, parkeergarage, parkeervergunningen

Dak

Dak Samengesteld dak

Overig

Permanente bewoning Ja
Onderhoud binnen Goed
Onderhoud buiten Goed
Huidig gebruik Woonruimte
Huidige bestemming Woonruimte

Voorzieningen

Voorzieningen Dakraam, natuurlijke ventilatie

Kadastrale gegevens

Gemeente Gorinchem
Sectie D
Perceelnummer 4829
Eigendomssituatie Volle eigendom
OK-Kopie-van-v1-20250318-8G0A1414
Interesse in deze woning?

Chanel helpt u graag

Gratis waardebepaling

U denkt erover uw woning te verkopen en wilt graag weten wat het waard is? We komen graag bij u langs en bepalen de waarde van uw woning.

Gratis waardebepaling

Deel deze woning

Uw persoonlijke adviseur in de regio

Maak kennis met de HypotheekWeter

Ligging

Afspraak maken voor een bezichtiging? Neem contact met ons op

Vergelijkbare woningen