0183 - 635011 0183 - 635011 Stel een vraag Stel een vraag
Beschikbaar

Westwagenstraat 26 a

GORINCHEM
€ 695.000,- k.k.
  • Woonoppervlakte 154 m2
  • Aantal slaapkamers 5
  • Bouwjaar 1960

Omschrijving

Volledig vernieuwde maisonette met drie verdiepingen, dakterras en energielabel A

Welkom aan de Westwagenstraat 26a, midden in het historische hart van Gorinchem. Achter deze karakteristieke gevel schuilt een verrassend ruime maisonettewoning, die in 2024 en 2025 van top tot teen volledig is verbouwd. Werkelijk alles is vernieuwd: van installaties tot afwerking en elektra, van vloeren tot badkamers, en volledig gestukt. Ook is er een nieuwe CV-ketel van het merk Remeha CV6 geplaatst, wat bijdraagt aan het hoge comfort en de energiezuinigheid van de woning.

Het resultaat is een energiezuinige woning met energielabel A, voorzien van vloerverwarming door de hele woning en een stijlvolle PVC-vloer op alle verdiepingen.

De woning strekt zich uit over drie volwaardige woonlagen en biedt bijzonder veel leefruimte. In totaal zijn er vijf slaapkamers, een praktisch kantoor en twee badkamers. Het geheel is met zorg en oog voor detail afgewerkt, waarbij moderne materialen zijn gecombineerd met warme, natuurlijke tinten.

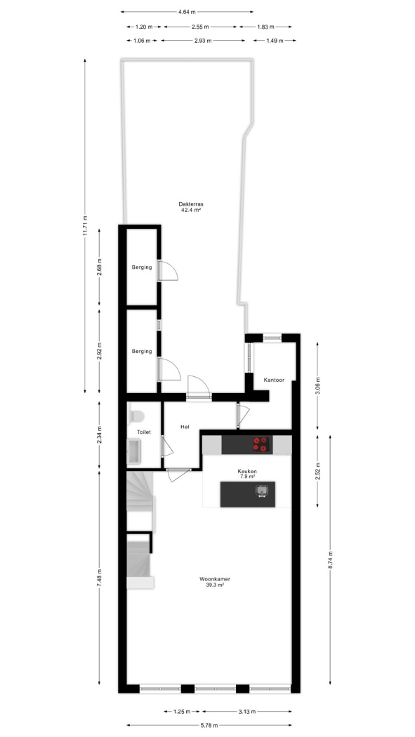
Aan de achterzijde bevindt zich een groot en diep privé dakterras – een oase van rust midden in de stad. Hier kun je ongestoord genieten van het buitenleven, met uitzicht over de historische daken van Gorinchem.

Deze woning combineert het comfort en de duurzaamheid van nieuwbouw met de sfeer, gezelligheid en ligging van de binnenstad. Perfect voor wie op zoek is naar ruimte, luxe en karakter op één van de mooiste plekken van Gorinchem.
*Er wordt gebruik gemaakt van een 'niet door eigenaar bewoond clausule'.

INDELING BEGANE GROND

Wonen
Via je eigen voordeur stap je binnen in de entreehal, waar de trap je leidt naar de eerste woonlaag. Boven kom je direct in de ruime woonkamer van circa 39 m² – een heerlijke, lichte leefruimte met een moderne PVC-vloer en grote ramen die uitkijken over de levendige binnenstad van Gorinchem. De woonkamer ademt sfeer en karakter dankzij de trap met authentieke details die op elegante wijze de volgende verdieping verbindt. Deze blikvanger zorgt voor een warme uitstraling.

Koken
In de woonkamer bevindt zich de open keuken, een echte blikvanger in de woning. De keuken is in 2025 volledig vernieuwd en uitgevoerd in een stijlvolle marmerlook met donkerbruine houten kastfronten. Het royale spoeleiland vormt het hart van de ruimte – ideaal om te koken, borrelen of gezellig samen te komen met familie en vrienden.

INDELING EERSTE VERDIEPING

3 slaapkamers
Op de eerste verdieping bevinden zich drie goed bemeten slaapkamers. Aan de achterzijde ligt een woningbrede slaapkamer met voldoende ruimte voor een groot bed en een royale kastopstelling. Vanuit deze kamer stap je zo het kleine balkonnetje op – een fijne plek voor een kop koffie in de ochtend. Aan de voorzijde bevinden zich nog twee slaapkamers, ideaal als kinderkamer, logeerkamer of extra werkkamer.

Opfrissen
De badkamer is een echte blikvanger in deze woning. Alles is volledig nieuw en met zorg en oog voor detail afgewerkt. De combinatie van houtaccenten in het wastafelmeubel en de moderne, strakke afwerking creëert een warme en stijlvolle sfeer.

De ruimte beschikt over een inloopdouche met regendouchekop, een toilet en een handdoekradiator. Dankzij de slimme indeling en de lichte kleurstelling voelt de badkamer ruimtelijk en rustig aan. Hier geniet je elke dag van een gevoel van luxe en comfort – een plek waar je heerlijk tot rust komt.

INDELING TWEEDE VERDIEPING
Op de tweede verdieping bevinden zich nog twee slaapkamers en een tweede badkamer – perfect voor een groot gezin, logees of als werk- of hobbyruimte. De badkamer is in dezelfde moderne stijl uitgevoerd als de eerste, met hoogwaardige materialen, een inloopdouche, wastafelmeubel en toilet. Daarnaast is hier een aparte wasruimte aanwezig, praktisch en netjes weggewerkt.

Tuin - buitenruimte
Tot slot gaan we naar het privé dakterras – een echte parel midden in de binnenstad van Gorinchem. Dit prachtige terras is maar liefst circa 12 meter diep met een totaaloppervlakte van 42 m². Hier kun je volop genieten van het buitenleven, met voldoende ruimte voor een grote eettafel, loungeset en planten. Via het dakterras heb je bovendien toegang tot twee praktische bergingen, ideaal voor het opbergen van tuinmeubelen of gereedschap. Het terras ligt op het noorden, maar dankzij de royale diepte vind je altijd wel een plekje in de zon of in de schaduw – perfect voor elk moment van de dag.

Highlights
•Volledig verbouwd in 2024 & 2025 – alles vernieuwd van top tot teen
•Energielabel A – energiezuinig en toekomstbestendig
•Vloerverwarming door de hele woning
•Moderne PVC-vloer op alle verdiepingen
•Ruime woonkamer van ca. 39 m² met grote ramen en stadzicht
•Open keuken met spoeleiland (vernieuwd in 2025) – marmerlook blad & donkerbruine houten kastjes
•Kantoorruimte op de woonverdieping
•Vijf goed bemeten slaapkamers verdeeld over twee verdiepingen
•Twee luxe badkamers – moderne afwerking met inloopdouche en houten wastafelmeubel
•Groot privé dakterras van ca. 42 m², 12 meter diep – altijd zon of schaduw
•Twee bergingen bereikbaar via het dakterras
•Gelegen midden in de historische binnenstad van Gorinchem
•Combinatie van modern wooncomfort en karaktervolle ligging

Lees de volledige omschrijving

Kenmerken

Overdracht

Status Beschikbaar
Aanvaarding In overleg

Bouwvorm

Soort object Appartement
Bouwjaar 1960
Bouwvorm Bestaande bouw
Ligging In het centrum

Indeling

Woonoppervlakte 154 m²
Inhoud 604 m³
Aantal kamers 7
Aantal slaapkamers 5
Aantal woonlagen 3

Energie

Energieklasse A
Energie einddatum zondag 20 mei 2035
Isolatie Vloerisolatie, dubbel glas, volledig geïsoleerd
Warmwater Cv ketel
Verwarming Cv ketel

Buitenruimte

Tuin Geen tuin
Achterom Nee

Bergruimte

Garage Geen garage
Schuur / Berging Aangebouwd steen

Parkeergelegenheid

Voorzieningen Openbaar parkeren, betaald parkeren, parkeergarage, parkeervergunningen

Dak

Dak Zadeldak

Overig

Permanente bewoning Ja
Onderhoud binnen Uitstekend
Onderhoud buiten Uitstekend
Huidig gebruik Woonruimte
Huidige bestemming Woonruimte

Voorzieningen

Voorzieningen Dakraam, natuurlijke ventilatie

Kadastrale gegevens

Gemeente Gorinchem
Sectie D
Perceelnummer 4181
Eigendomssituatie Volle eigendom
OK-Kopie-van-v1-20250318-8G0A1414
Interesse in deze woning?

Chanel helpt u graag

Gratis waardebepaling

U denkt erover uw woning te verkopen en wilt graag weten wat het waard is? We komen graag bij u langs en bepalen de waarde van uw woning.

Gratis waardebepaling

Deel deze woning

Uw persoonlijke adviseur in de regio

Maak kennis met de HypotheekWeter

Ligging

Afspraak maken voor een bezichtiging? Neem contact met ons op

Vergelijkbare woningen