0183 - 635011 0183 - 635011 Stel een vraag Stel een vraag
Beschikbaar

Rosmolensteeg 26

GORINCHEM
€ 300.000,- k.k.
  • Woonoppervlakte 82 m2
  • Aantal slaapkamers 2
  • Bouwjaar 1977

Omschrijving

Charmant, licht en hartje Gorinchem - jouw nieuwe thuis wacht hier!

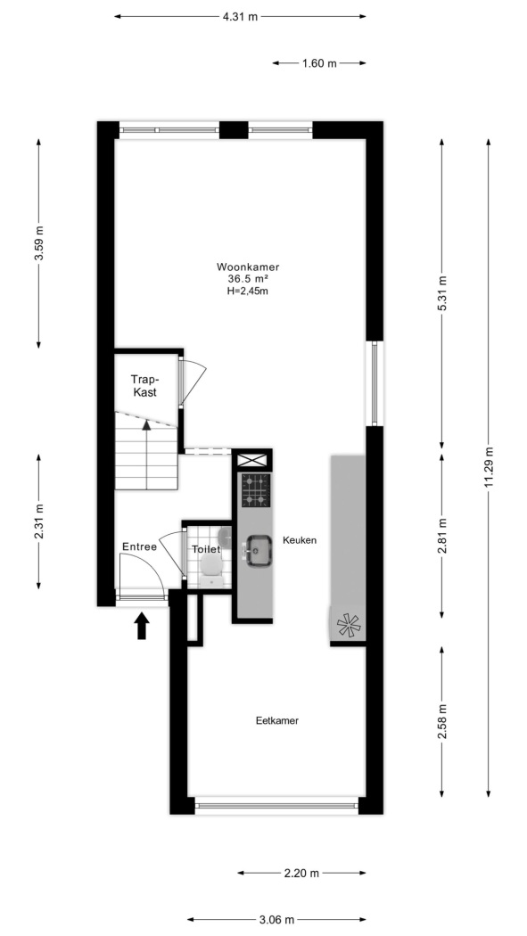
Via de entree kom je binnen in de gezellige woonkamer, een lichte en ruime ruimte waar het zonlicht royaal naar binnen valt. De open keuken grenst hier direct aan en is zowel praktisch als gezellig, ideaal om te koken terwijl je in contact blijft met je gasten. Aan de voorzijde bevindt zich het eetgedeelte, waar je kunt genieten van een leuk uitzicht over de straat.

Op de eerste verdieping vind je twee ruime slaapkamers, perfect voor een gezin, een thuiskantoor of logees. De badkamer is in 2018 volledig gerenoveerd en modern ingericht, met een inloopdouche, dubbele wastafel, tweede toilet en aansluitingen voor wasmachine en droger. Vanuit de achterste slaapkamer stap je zo het balkon op het oosten op, waar je ’s ochtends heerlijk van de zon kunt genieten met een kop koffie.

Extra praktisch is de eigen berging op de eerste verdieping, ideaal voor fietsen of extra opslag. Wie een parkeerplaats wil, kan een plek bijkopen op het aangrenzende parkeerdek van de VvE.

Highlights van de woning:
Gelegen in het centrum van Gorinchem, op loopafstand van winkels, horeca en de historische vestingwallen
Ruime, lichte hoekmaisonnette met een woonoppervlakte van 82 m²
Gezellige woonkamer van 37 m² met grote raampartijen en veel natuurlijk licht
Open keuken met voldoende kastruimte en prettige verbinding met de woonkamer
Eetgedeelte aan de voorzijde met leuk straatzicht
Twee ruime slaapkamers op de eerste verdieping, geschikt als slaapkamer, werkruimte of logeerkamer
Moderne badkamer uit 2018 met inloopdouche, dubbele wastafel, tweede toilet en wasmachine-/drogeraansluitingen
Balkon (4,47 m breed en 2 m diep) op het oosten – ideaal voor een zonnig ontbijtje
Eigen berging op de eerste verdieping voor fietsen en opslag
De servicekosten bedragen circa € 200,- per maand (VvE), inclusief een voorschot van € 100,- voor stookkosten, plus een maandelijkse bijdrage van € 15,75 voor de VvE-kosten van het parkeerdek.
Mogelijkheid tot aankoop van een parkeerplaats op het nabijgelegen parkeerdek

Hier woon je rustig en toch centraal in het hart van Gorinchem. Alles wat je nodig hebt van winkels en horeca tot openbaar vervoer en de mooie vestingwallen ligt op loopafstand. Deze maisonnette combineert sfeer, licht en comfort en voelt meteen als thuis.

Lees de volledige omschrijving

Kenmerken

Overdracht

Status Beschikbaar
Aanvaarding In overleg

Bouwvorm

Soort object Appartement
Bouwjaar 1977
Bouwvorm Bestaande bouw
Ligging In het centrum

Indeling

Woonoppervlakte 82 m²
Inhoud 153 m³
Aantal kamers 3
Aantal slaapkamers 2
Aantal woonlagen 2

Energie

Energieklasse E
Energie einddatum woensdag 7 juni 2028
Warmwater Gasboiler huur
Verwarming Blokverwarming

Buitenruimte

Tuin Geen tuin
Achterom Nee

Bergruimte

Garage Geen garage
Schuur / Berging Inpandig

Parkeergelegenheid

Voorzieningen Parkeervergunningen

Dak

Dak Samengesteld dak

Overig

Permanente bewoning Ja
Onderhoud binnen Goed
Onderhoud buiten Goed
Huidig gebruik Woonruimte
Huidige bestemming Woonruimte

Voorzieningen

Voorzieningen Mechanische ventilatie, natuurlijke ventilatie

Kadastrale gegevens

Gemeente Gorinchem
Sectie C
Perceelnummer 4314
Eigendomssituatie Volle eigendom
v1-20250318-8G0A1608E
Interesse in deze woning?

Leo helpt u graag

Gratis waardebepaling

U denkt erover uw woning te verkopen en wilt graag weten wat het waard is? We komen graag bij u langs en bepalen de waarde van uw woning.

Gratis waardebepaling

Deel deze woning

Uw persoonlijke adviseur in de regio

Maak kennis met de HypotheekWeter

Ligging

Afspraak maken voor een bezichtiging? Neem contact met ons op

Vergelijkbare woningen