0183 - 635011 0183 - 635011 Stel een vraag Stel een vraag
Verkocht

Rijksstraatweg 140

SLEEUWIJK
€ 425.000,- k.k.
  • Woonoppervlakte 87 m2
  • Perceeloppervlakte 264 m2
  • Aantal slaapkamers 3
  • Bouwjaar 1935

Omschrijving

Sfeervolle jaren ’30 woning met ruime tuin en grote garage!

Aan de Rijksstraatweg 140 in Sleeuwijk staat deze karakteristieke vier-onder-een-kapwoning uit 1935. Een huis met charme, sfeer en volop licht door de vele ramen. Je voelt meteen de warme uitstraling die zo typerend is voor de bouwstijl uit die tijd. Tegelijkertijd is de woning in de loop der jaren met veel zorg verbouwd en gemoderniseerd, zodat je geniet van het comfort van nu.

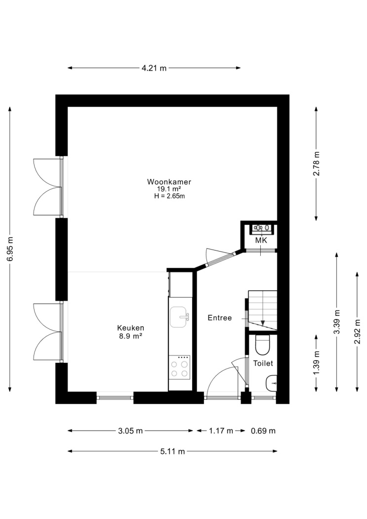
Je stapt via de ruime entree binnen en loopt zo door naar de gezellige woonkamer. De begane grond is in 2008 volledig vernieuwd met een geïsoleerde balken-broodjesvloer, een zwevende dekvloer en vloerverwarming. De keuken is netjes en uitgerust met diverse inbouwapparatuur, waaronder een Siemens combimagnetron en een Miele vaatwasser.

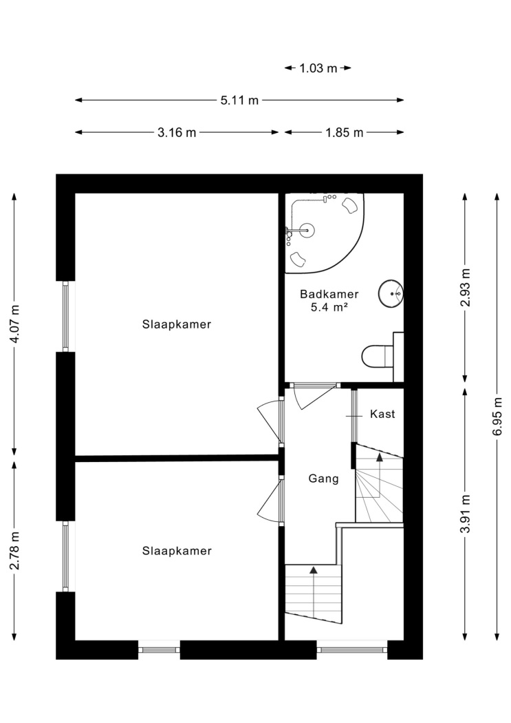
Op de eerste verdieping vind je twee slaapkamers, de badkamer en een handige kast voor extra opbergruimte. De badkamer is heerlijk comfortabel en voorzien van ligbad, regendouche, wastafel en vloerverwarming. Op de tweede verdieping bevindt zich een ruime slaapkamer met een grote kunststof dakkapel uit 2010, die voor veel licht en ruimte zorgt. Ook hier is een ruime kast aanwezig, nog groter dan op de eerste verdieping. Zowel de eerste als de tweede verdieping zijn uitgerust met een airco-installatie, wat zorgt voor een aangenaam klimaat in de zomer.

Buiten word je verrast door de ruimte: een royale achtertuin van 172 m² met vrij uitzicht over de moestuintjes. Hier vind je een gezellig tuinhuis, perfect om ook in de koudere maanden te genieten van je tuin. De onderheide garage is een absolute highlight: 9,5 meter diep, voorzien van krachtstroom, hefbrug, isolatie, vliering én vloerverwarming. In 2024 is het dak vernieuwd en de garage grotendeels herbouwd.

Highlights
- Authentieke details, waaronder een glas-in-lood raam en de karakteristieke jaren ’30 bouwstijl
- Veel lichtinval door de grote ramen en de dakkapel
- Ruime garage met plaats voor twee auto’s, voorzien van vloerverwarming, hefbrug, krachtstroom, isolatie en vliering
- Moderne badkamer met ligbad, regendouche, vloerverwarming en wastafelmeubel
- Gezellig tuinhuis, ideaal als extra zitruimte of hobbyruimte
- Goede isolatie: dakisolatie, vloerisolatie en HR-glas, energielabel C
- Goed onderhouden schilderwerk (deels 2018, deels 2024)
- Comfortabel binnenklimaat dankzij vloerverwarming op begane grond, badkamer en garage, en airconditioning voor de eerste en tweede verdieping
- Diepe achtertuin met ligging op het noordwesten en vrij uitzicht over de moestuinen
- Veel bergruimte, waaronder een vliering in de garage en kastruimte op de zolder
- Praktische indeling met drie slaapkamers
- Eigen parkeergelegenheid
- Centrale ligging dicht bij de winkels van de Nieuwe Es

De ligging is ideaal: super dicht bij de winkels van de Nieuwe Es, maar toch met een vrij gevoel dankzij het uitzicht aan de achterzijde.

Dit is een sfeervol en gezellig huis met verrassend veel ruimte en comfort, waar je zó in kunt trekken.

Lees de volledige omschrijving

Kenmerken

Overdracht

Status Verkocht
Aanvaarding In overleg

Bouwvorm

Soort object Woonhuis
Soort woning Eengezinswoning
Type woning Twee onder één kapwoning
Bouwjaar 1935
Bouwvorm Bestaande bouw
Ligging Vrij uitzicht

Indeling

Woonoppervlakte 87 m²
Perceeloppervlakte 264 m²
Inhoud 303 m³
Aantal kamers 4
Aantal slaapkamers 3
Aantal woonlagen 3

Energie

Energieklasse C
Energie einddatum zaterdag 8 september 2035
Isolatie Dakisolatie, vloerisolatie, hr glas
Warmwater Cv ketel
Verwarming Cv ketel, vloerverwarming gedeeltelijk

Buitenruimte

Tuin Achtertuin
Hoofdtuin Achtertuin
Oppervlakte hoofdtuin 172 m²
Ligging hoofdtuin Noord-west
Achterom Nee
Kwaliteit tuin Normaal

Bergruimte

Garage Vrijstaand steen
Schuur / Berging Vrijstaand hout
Voorzieningen Elektra, vliering

Parkeergelegenheid

Voorzieningen Op eigen terrein

Dak

Dak Schilddak

Overig

Permanente bewoning Ja
Onderhoud binnen Goed
Onderhoud buiten Goed
Huidig gebruik Woonruimte
Huidige bestemming Woonruimte

Voorzieningen

Voorzieningen Airconditioning, natuurlijke ventilatie

Kadastrale gegevens

Gemeente Werkendam
Sectie S
Perceelnummer 1680
Oppervlakte 245 m²
Eigendomssituatie Volle eigendom
PLR55485
Interesse in deze woning?

Dionne helpt u graag

Gratis waardebepaling

U denkt erover uw woning te verkopen en wilt graag weten wat het waard is? We komen graag bij u langs en bepalen de waarde van uw woning.

Gratis waardebepaling

Deel deze woning

Uw persoonlijke adviseur in de regio

Maak kennis met de HypotheekWeter

Ligging

Afspraak maken voor een bezichtiging? Neem contact met ons op

Vergelijkbare woningen