0183 - 635011 0183 - 635011 Stel een vraag Stel een vraag
Beschikbaar

Molenstraat 5

GORINCHEM
€ 275.000,- k.k.
  • Woonoppervlakte 74 m2
  • Aantal slaapkamers 1
  • Bouwjaar 1900

Omschrijving

Wonen met karakter in hartje Gorinchem

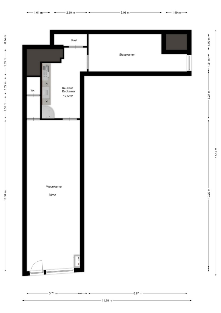
Zodra je binnenstapt, valt de lengte van de woonkamer direct op. Met een diepte van maar liefst 11 meter biedt deze ruimte volop mogelijkheden voor een creatieve inrichting. Dankzij het langwerpige karakter kun je hier eenvoudig verschillende leefhoeken creëren. Grote raampartijen zorgen voor natuurlijk lichtinval, terwijl de originele elementen herinneren aan de geschiedenis van het pand.

De keuken en badkamer zijn slim gecombineerd in één ruimte. Hier vind je een praktisch keukenblok met boven- en onderkastjes, een inbouwkast voor extra opbergruimte en een douchecabine. Het separate toilet bevindt zich elders in de woning, wat bijdraagt aan het wooncomfort.

Aan de achterzijde van de woning bevindt zich een fijne, uitnodigende slaapkamer. Een plek waar je je na een dag in de bruisende stad heerlijk kunt terugtrekken en helemaal tot rust komt.

Hoewel het pand stamt uit 1900, is het verrassend modern als het gaat om energiezuinigheid. Dankzij de aanwezige zonnepanelen én de slimme aanpassingen aan de woning heeft Molenstraat 5 energielabel A. Dat betekent niet alleen een lagere energierekening, maar ook meer comfort én toekomstbestendigheid – zeldzaam voor een woning met zo’n authentiek karakter.

Molenstraat 5 ligt letterlijk midden in de stad: winkels, restaurants en cafés bevinden zich op loopafstand. En toch voelt het binnen als een eigen wereld, verstopt achter een gevel die geschiedenis ademt. Ideaal voor een starter, een stel of iemand die gewoon net even anders wil wonen.

De gunstige vierkante meter prijs biedt mogelijkheden om de woning naar eigen wensen te verbouwen. Laat je alvast inspireren door de artist impressions die je een goed beeld geven van hoe je jouw droomappartement kunt realiseren.

Highlights van dit unieke pand:
- Uniek oud winkelpand uit 1900, omgebouwd tot woning
- Woonoppervlakte 74m2
- Gelegen in het hart van de historische binnenstad
- Lange woonkamer van ca. 11 meter diep
- 1 slaapkamer aan de rustige achterzijde
- Zonnepanelen aanwezig
- Energielabel A – energiezuinig en comfortabel

Lees de volledige omschrijving

Kenmerken

Overdracht

Status Beschikbaar
Aanvaarding In overleg

Bouwvorm

Soort object Appartement
Bouwjaar 1900
Bouwvorm Bestaande bouw
Ligging In het centrum

Indeling

Woonoppervlakte 74 m²
Inhoud 250 m³
Aantal kamers 2
Aantal slaapkamers 1
Aantal woonlagen 1

Energie

Energieklasse A
Energie einddatum dinsdag 11 april 2028
Isolatie Gedeeltelijk dubbel glas
Warmwater Cv ketel
Verwarming Cv ketel

Buitenruimte

Tuin Geen tuin
Achterom Nee

Bergruimte

Garage Geen garage

Parkeergelegenheid

Voorzieningen Openbaar parkeren, parkeervergunningen

Dak

Dak Samengesteld dak

Overig

Permanente bewoning Ja
Onderhoud binnen Goed
Onderhoud buiten Goed
Huidig gebruik Woonruimte
Huidige bestemming Woonruimte

Voorzieningen

Voorzieningen Mechanische ventilatie, zonnepanelen, natuurlijke ventilatie

Kadastrale gegevens

Gemeente Gorinchem
Sectie C
Perceelnummer 4784
Eigendomssituatie Volle eigendom
v1-20250318-8G0A1538EE
Interesse in deze woning?

Stefan helpt u graag

Gratis waardebepaling

U denkt erover uw woning te verkopen en wilt graag weten wat het waard is? We komen graag bij u langs en bepalen de waarde van uw woning.

Gratis waardebepaling

Deel deze woning

Uw persoonlijke adviseur in de regio

Maak kennis met de HypotheekWeter

Ligging

Afspraak maken voor een bezichtiging? Neem contact met ons op

Vergelijkbare woningen