0183 - 635011 0183 - 635011 Stel een vraag Stel een vraag
Beschikbaar

Laan op Zuid 220

ROTTERDAM
€ 995.000,- k.k.
  • Woonoppervlakte 140 m2
  • Perceeloppervlakte 285 m2
  • Aantal slaapkamers 3
  • Bouwjaar 2005

Omschrijving

***ENGLISH BELOW***

Exceptioneel en Stijlvol Wonen – een statement van klasse

Welkom in het iconische complex ‘De Compagnie’ – waar architectuur, comfort en elegantie moeiteloos samensmelten. Dit turn-key high-end vierkamerappartement van ca. 140 m² ligt op eigen grond en beschikt over een privéparkeerplaats en eigen berging in de inpandige garage. Ontworpen door de visionaire architect Hans Kollhoff, die met zijn kenmerkende signatuur een tijdloos meesterwerk heeft neergezet – en dat is in elk detail voelbaar. Een woning om direct verliefd op te worden, direct instapklaar voor u.

Thuiskomen met allure
Stap binnen in een wereld waar rust, luxe en verfijning de toon zetten.
In 2019/2020 is dit appartement volledig gerenoveerd, met oog voor harmonie, comfort en hoogwaardig design. De indeling is zorgvuldig geoptimaliseerd en omvat een ruime woonkamer met open keuken en kookeiland – het hart van het huis, waar koken en samenzijn moeiteloos in elkaar overgaan.

Verder zijn er drie royale slaapkamers, elk met hun eigen karakter. Of u nu droomt van een serene master bedroom met walk-in closet, een stijlvolle logeerkamer of een inspirerende werkplek aan huis – hier is ruimte voor elke levensstijl. Twee luxe badkamers, een separaat toilet en een ruime hal completeren het geheel.

Het appartement is volledig voorzien van een eikenhouten parketvloer in Hongaarse punt, die een gevoel van warmte, klasse en tijdloze elegantie uitstraalt. De maatwerkkeuken en inbouwkasten, ontworpen en vervaardigd door een interieurbouwer, creëren een harmonieus geheel waarin stijl en afwerking naadloos op elkaar aansluiten.

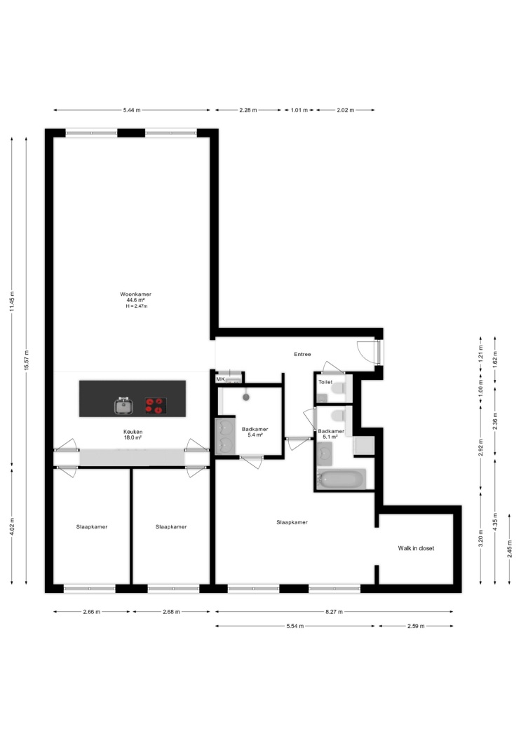
INDELING

Bij aankomst op de begane grond betreedt u de verzorgde centrale hal met brievenbussen en bellentableau. Vanuit hier heeft u direct toegang tot de afgesloten parkeergarage en de privéberging. De woning zelf is bereikbaar via de lift, die u comfortabel naar de vierde verdieping brengt.

Hal
Eenmaal binnen wordt u ontvangen in een ruime, uitnodigende hal die toegang biedt tot alle vertrekken. De inbouw garderobe, subtiel verlicht met LED-verlichting, zorgt voor een stijlvolle eerste indruk en praktische opbergruimte. Verder vindt u hier een separaat toilet met fonteintje en vloerverwarming, evenals de meterkast. De intercom met camera zorgt voor een veilig en comfortabel welkom.

Wonen & Koken
Zodra u de riante living van circa 62 m² betreedt, omarmt de ruimte u met licht, luxe en rust. De royale opzet biedt volop plaats voor een grote eettafel en een sfeervolle zithoek, perfect voor zowel ontspanning als gezellig samenzijn.

De vloer, uitgevoerd in eikenhout in Hongaarse punt, vormt de perfecte basis: tijdloos, elegant en met een warme uitstraling die het geheel een verfijnde grandeur geeft.

Het hart van de living wordt gevormd door de maatwerk keuken – een ware blikvanger, waar warmte, elegantie en vakmanschap samenkomen in een meesterwerk van design. Het imposante keukeneiland (3,6 x 1,2 m) nodigt uit tot uitgebreid koken, borrelen en samenzijn. Deze keuken combineert design en functionaliteit op hoog niveau en is uitgerust met hoogwaardige Siemens-apparatuur:
•een koelkast op volle hoogte en een aparte vriezer
•een vaatwasser met timing projectie
•een kookplaat met geïntegreerde afzuiging en flexibele kookzones
•twee ovens (één met stoomfunctie, één met magnetronfunctie)
•een bordenwarmer
•een wijnklimaatkast met twee temperatuurzones voor rood én wit
•een flexibele designkraan

De greeploze fronten, uitgevoerd in echt eikenhoutfineer met beschermlaag, geven de keuken een natuurlijke, luxe uitstraling. De kastwand herbergt bovendien een slim verborgen werkblad met aansluitingen voor keukenapparatuur – ideaal voor uw koffiemachine, blender of mixer. LED-verlichting en geïntegreerde stopcontacten zorgen voor comfort en elegantie tot in het kleinste detail.

Slaapkamers
De master bedroom van circa 28 m² is een ware privésuite: ruim, licht en ontworpen met oog voor comfort en rust. De kamer beschikt over een elegante inbouwkast (walk-in closet) met geïntegreerde LED-verlichting, die zorgt voor een warme, stijlvolle gloed. Vanuit de slaapkamer heeft u directe toegang tot de eigen badkamer van circa 5,4 m², voorzien van een riante regendouche, dubbele wastafel en vloerverwarming – een perfecte plek om de dag ontspannen te beginnen of in alle rust af te sluiten.

De tweede slaapkamer (ca. 11 m²) bevindt zich links achter de keuken en is bereikbaar via een verborgen dubbele deur, naadloos weggewerkt in de keukenwand. Deze ruimte leent zich uitstekend als logeer- of werkkamer, met een rustige ligging en een verfijnde afwerking.

Aan de andere zijde van de keuken bevindt zich de derde slaapkamer (ca. 11 m²), eveneens bereikbaar via een onzichtbare dubbele deur in de keukenwand. Ook deze kamer is flexibel in te delen – ideaal als kantoor, hobbyruimte of stijlvolle gastenverblijf. Samen vormen deze drie vertrekken een harmonieuze balans tussen functionaliteit, esthetiek en comfort – elk met zijn eigen karakter, maar met dezelfde verfijnde signatuur die het hele appartement kenmerkt.

Tweede badkamer
De tweede badkamer van circa 5,1 m² is met oog voor comfort en functionaliteit ontworpen. De ruimte is voorzien van een toilet, wastafel, ligbad met geïntegreerde regendouche en vloerverwarming, wat zorgt voor een aangename temperatuur en een gevoel van luxe.
Daarnaast bevinden zich hier de aansluitingen voor wasmachine en droger, handig weggewerkt en toch binnen handbereik. Deze badkamer is bij uitstek geschikt als gastenbadkamer of als praktische gezinsbadkamer – stijlvol, compleet en doordacht in elk detail.

Parkeerplaats & berging
De woning beschikt over een eigen parkeerplaats van circa 11 m², gunstig gelegen op de begane grond van de afgesloten, inpandige garage. De parkeerplek is royaal van formaat en biedt moeiteloos ruimte aan een ruime SUV.
Direct achter de parkeerplaats bevindt zich de praktische privé berging van circa 7 m² – ideaal voor het stallen van fietsen, koffers of seizoensspullen.

De Wijk – Kop van Zuid
Ooit een stoer havengebied vol bedrijvigheid, nu één van de meest gewilde en levendige wijken van Rotterdam. Kop van Zuid is één van de meest dynamische en gewilde wijken van Rotterdam – een plek waar architectuur, cultuur en stadse energie samenkomen. Hier woont u te midden van alles wat de stad zo aantrekkelijk maakt, met alle voorzieningen binnen handbereik: van supermarkten en stijlvolle winkels tot gezellige cafés en toprestaurants.

Direct tegenover de woning bevindt zich de zuidelijke ingang van metrostation Wilhelminaplein, waarmee u in slechts enkele minuten in het hart van Rotterdam bent. Ook een 24/7 fitnessclub ligt letterlijk om de hoek.

Uitstekende bereikbaarheid
De ligging van de woning is ronduit ideaal. Openbaar vervoer bevindt zich letterlijk om de hoek: tram, metro, bus, trein én watertaxi zijn allemaal binnen loopafstand te vinden. In de nabije omgeving zijn meerdere scholen en creches te vinden.

Een wijk met karakter, stijl en toekomst – precies de plek waar u wilt zijn.

Bijzonderheden
•Turn-key high-end luxe afwerking en slimme indeling (uniek object)
•In 2019/2020 volledig gerenoveerd, met oog voor detail, kwaliteit en comfort
•Bouwjaar 2005
•Woonoppervlakte circa 140 m²
•Energielabel A+
•Vier kamers, waaronder drie slaapkamers
•Twee stijlvolle badkamers en een apart toilet
•Eigen parkeerplaats en privéberging, inpandig gelegen op de begane grond
•Gelegen op eigen grond
•Verwarming en warm water via stadsverwarming
•Eikenhouten parketvloer in Hongaarse punt, gelegd op Fermacell-geluidsisolatie voor optimaal wooncomfort
•Actieve en gezonde VvE, maandelijkse bijdrage ca. € 281,41
•Oplevering in overleg

Een zeldzame combinatie van architectonische klasse, moderne luxe en stedelijke levendigheid – voor wie niets minder zoekt dan het uitzonderlijke.

***ENGLISH***

Exceptional and Stylish Living – a statement of class

Welcome to the iconic "De Compagnie" complex – where architecture, comfort, and elegance blend effortlessly. This turnkey, high-end four-room apartment of approximately 140 m² is situated on freehold land and includes a private parking space and a private storage unit in the integrated garage. Designed by the visionary architect Hans Kollhoff, who, with his distinctive signature, created a timeless masterpiece – a quality you can feel in every detail. A home to fall in love with instantly, ready for you to move in.

Coming home with allure
Enter a world where tranquillity, luxury, and refinement set the tone. This apartment was fully renovated in 2019/2020, with an eye for harmony, comfort, and high-quality design. The layout has been carefully optimized and includes a spacious living room with an open-plan kitchen and island – the heart of the home, where cooking and social activity blend seamlessly.

The apartment is fully fitted with oak parquet flooring, which provides for warmth, class, and timeless elegance. The custom kitchen and built-in cabinets, designed and crafted by an interior designer, create a harmonious whole where style and high-end finish seamlessly blend.

LAYOUT

Upon arrival on the ground floor, you enter the well-maintained central hall with mailboxes and a doorbell panel. From here, you have direct access to the closed parking garage and private storage unit. The apartment itself is accessible via the elevator, which takes you comfortably to the fourth floor.

Hallway
Once inside, you are welcomed in a spacious, inviting hallway that provides access to all rooms. The built-in wardrobe, subtly illuminated with LED lighting, creates a stylish first impression and provides practical storage space. You'll also find a separate toilet with a hand basin with underfloor heating, as well as the meter cupboard. The intercom with a camera ensures a safe and comfortable welcome.

Living & Cooking
As soon as you enter the spacious living room of approximately 62 m², the space embraces you with light, luxury, and tranquillity. The generous layout offers ample space for a large dining table and a cozy seating area, perfect for both relaxation and socializing.

The floor, parquet crafted from oak, herringbone pattern, forms the perfect foundation: timeless, elegant, and with a warm appearance that lends the whole apartment a refined elegance.

The heart of the living room is the custom-made kitchen – a true eye-catcher, where warmth, elegance, and craftsmanship converge in a masterpiece of design. The impressive kitchen island (3.6 x 1.2 m) invites you to cook, enjoy drinks, and socialize. This kitchen combines design and functionality at a high level and is equipped with high-quality Siemens appliances:
• a full-height refrigerator and a separate freezer
• a dishwasher with timing projection
• an induction stove with downdraft and flexible cooking zones
• two ovens (one with steam function, one with microwave function)
• a plate warmer
• a wine cooler with two temperature zones for red and white
• a flexible designer faucet

The handleless fronts, finished in oak veneer with a protective finish, give the kitchen a natural, luxurious look. The wall of cabinets also houses a cleverly concealed worktop with connections for kitchen appliances – ideal for your coffee machine, blender, or mixer. LED lighting and integrated power outlets ensure comfort and elegance down to the smallest detail.

Bedrooms
The approximately 28 m² master bedroom is a true private suite: spacious, bright, and designed with comfort and tranquillity in mind. The room features an elegant built-in wardrobe (walk-in closet) with integrated LED lighting, which provides a warm, stylish glow. From the bedroom, you have direct access to the en-suite bathroom of approximately 5.4 m², equipped with a spacious rain shower, double sink, and underfloor heating – a perfect place to start the day relaxing or end it in peace.

The second bedroom (approx. 11 m²) is located left behind the kitchen and is accessible through a concealed double door, seamlessly integrated into the kitchen wall. This space is ideal as a guest room or office, with a quiet location and refined finish.

On the other side of the kitchen is the third bedroom (approx. 11 m²), also accessible through an invisible double door in the kitchen wall. This room, too, offers flexible configurations – ideal as an office, hobby room, or stylish guest room.

Together, these three rooms create a harmonious balance between functionality, aesthetics, and comfort – each with its own character, yet with the same refined signature that characterizes the entire apartment.

Second Bathroom
The second bathroom of approximately 5.1 m² has been designed with comfort and functionality in mind. The space is equipped with a toilet, sink, bathtub with integrated rain shower, and underfloor heating, creating warmth and a luxurious feel.

Connections for the washing machine and dryer are also located here, conveniently concealed yet within easy reach. This bathroom is ideal as guest bathroom or a practical family bathroom – stylish, complete, and thoughtfully designed in every detail.

Parking & Storage
The home includes a private parking space of approximately 11 m², conveniently located on the ground floor of the closed, integrated garage. The parking space is generously sized and easily accommodates a large SUV.
Directly behind the parking space is a practical private storage unit of approximately 7 m² – ideal for storing bicycles, suitcases, or seasonal items.

Neighbourhood – Kop van Zuid
Once a vibrant harbour area teeming with activity, now one of the most desirable and vibrant neighbourhoods of Rotterdam. A place where architecture, culture, and urban energy converge. Here, you'll live amidst everything that makes the city so appealing, with all amenities within reach: from supermarkets and stylish shops to cozy cafés and restaurants.

Directly opposite the house is the southern entrance to Wilhelminaplein metro station, which takes you to the heart of Rotterdam in just a few minutes. A 24/7 fitness club is also literally around the corner.

Excellent accessibility
The location of the property is simply ideal. Public transport is literally around the corner: tram, metro, bus, train, and water taxi are all within walking distance. Several schools and daycare centres are located nearby.

Features
•Turnkey high-end luxury finished and a smart layout (unique property)
•Fully renovated in 2019/2020, with an eye for detail, quality, and comfort
•Built in 2005
•Living area approximately 140 m²
•Energy label A+
•Four rooms, including three bedrooms
•Two stylish bathrooms and a separate toilet
•Private parking space and private storage unit, located on the ground floor
•Located on freehold land
•Heating and hot water via city heating (stadsverwarming)
•Oak parquet flooring in herringbone pattern, laid on sound insulation for optimal living comfort
•Active and healthy homeowners' association, monthly fee approximately €281.41

Lees de volledige omschrijving

Kenmerken

Overdracht

Status Beschikbaar
Aanvaarding In overleg

Bouwvorm

Soort object Appartement
Bouwjaar 2005
Bouwvorm Bestaande bouw
Ligging Aan water, aan een rustige weg, in het centrum, in een woonwijk

Indeling

Woonoppervlakte 140 m²
Perceeloppervlakte 285 m²
Inhoud 420 m³
Aantal kamers 4
Aantal slaapkamers 3
Aantal woonlagen 1

Energie

Energieklasse A+
Energie einddatum zondag 16 september 2035
Isolatie Volledig geïsoleerd, hr glas
Warmwater Stadsverwarming
Verwarming Stadsverwarming, vloerverwarming gedeeltelijk

Buitenruimte

Tuin Geen tuin
Achterom Nee

Bergruimte

Garage Inpandig, parkeerkelder, eigen parkeerplaats
Schuur / Berging Box

Overig

Permanente bewoning Ja
Onderhoud binnen Uitstekend
Onderhoud buiten Uitstekend
Huidig gebruik Woonruimte
Huidige bestemming Woonruimte

Voorzieningen

Voorzieningen Mechanische ventilatie, tv kabel, lift

Kadastrale gegevens

Gemeente Rotterdam
Sectie Q
Perceelnummer 6491
Oppervlakte 285 m²
Eigendomssituatie Volle eigendom
v1-20250318-8G0A1608E
Interesse in deze woning?

Leo helpt u graag

Gratis waardebepaling

U denkt erover uw woning te verkopen en wilt graag weten wat het waard is? We komen graag bij u langs en bepalen de waarde van uw woning.

Gratis waardebepaling

Deel deze woning

Uw persoonlijke adviseur in de regio

Maak kennis met de HypotheekWeter

Ligging

Afspraak maken voor een bezichtiging? Neem contact met ons op