0183 - 635011 0183 - 635011 Stel een vraag Stel een vraag
Verkocht

Kalkhaven 46 b

GORINCHEM
€ 250.000,- k.k.
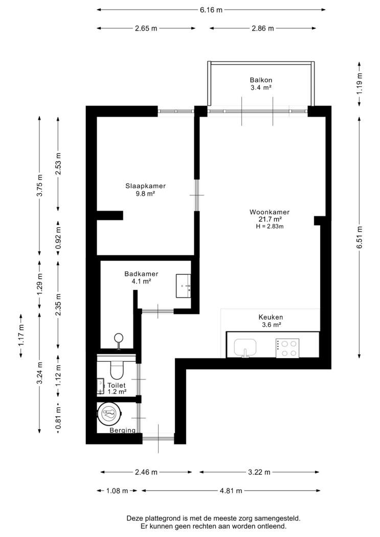
  • Woonoppervlakte 44 m2
  • Aantal slaapkamers 1
  • Bouwjaar 1935

Omschrijving

Sfeervol stadsappartement met balkon aan de geliefde Kalkhaven in hartje Gorinchem

Wonen in een karakteristiek pand, met het bruisende centrum om de hoek én toch volop rust? Dat kan aan de Kalkhaven 46 B! Dit charmante bovenappartement is gelegen op een unieke locatie aan één van de meest sfeervolle straatjes van de Gorinchemse binnenstad. De Kalkhaven staat bekend om haar authentieke uitstraling en gezellige sfeer. Vanuit hier wandel je zó naar de stadswallen, de haven, winkels, restaurants en terrasjes – alles binnen handbereik!

Het appartement maakt deel uit van een kleinschalige ontwikkeling en is in 2021 volledig gerenoveerd. Daarbij is oud en nieuw op smaakvolle wijze gecombineerd: het karakter van het pand is behouden gebleven, terwijl je binnen geniet van modern comfort.

Met een woonoppervlakte van 44 m² is dit een verrassend ruim appartement. De lichte woonkamer biedt voldoende plek voor een gezellige zithoek én een ruime eettafel. Grote ramen zorgen voor veel daglicht, terwijl de open keuken opgaat in de ruimte. Deze keuken is praktisch ingericht en beschikt over voldoende werk- en opbergruimte. Of je nu alleen woont of met z’n tweeën: dit is een fijne plek om thuis te komen.

Vanuit de woonkamer loop je zo het sfeervolle balkon van ca. 3,5 m² op – een ideale plek om te genieten van een kop koffie in de middagzon, even buiten te zitten met een goed boek of gewoon de dag rustig af te sluiten. Dankzij de gunstige ligging op het zuidwesten en de rustige straat aan de voorzijde ervaar je hier volop privacy en ontspanning, midden in het levendige centrum van Gorinchem.

Verder beschikt de woning over een slaapkamer, een moderne badkamer met inloopdouche, wastafel en een aparte toiletruimte. De gehele woning is voorzien van dubbele beglazing en wordt verwarmd middels elektrische verwarming. Warm water wordt geleverd door een elektrische boiler.

Wat maakt deze woning extra aantrekkelijk?
- Toplocatie aan de geliefde Kalkhaven
- Rustige ligging én direct in het centrum
- In 2021 volledig gerenoveerd
- Fijn balkon van ca. 3,5 m²
- Ruime woonkamer met open keuken
- Energielabel D, dubbel glas, elektrische verwarming
- Beschermd stadsgezicht

Of je nu starter bent, op zoek bent naar een nieuwe woondroom of gewoon sfeervol en comfortabel wilt wonen op een toplocatie: Kalkhaven 46 B biedt het allemaal.

Benieuwd geworden? Neem contact met ons op en kom zelf de sfeer proeven tijdens een bezichtiging!

Lees de volledige omschrijving

Kenmerken

Overdracht

Status Verkocht
Aanvaarding In overleg

Bouwvorm

Soort object Appartement
Bouwjaar 1935
Bouwvorm Bestaande bouw
Ligging Aan een rustige weg, in het centrum

Indeling

Woonoppervlakte 44 m²
Inhoud 154 m³
Aantal kamers 1
Aantal slaapkamers 1
Aantal woonlagen 1

Energie

Energieklasse D
Energie einddatum zaterdag 14 april 2035
Isolatie Dubbel glas
Warmwater Elektrische boiler eigendom
Verwarming Elektrische verwarming

Buitenruimte

Tuin Geen tuin
Achterom Nee

Bergruimte

Garage Geen garage

Parkeergelegenheid

Voorzieningen Betaald parkeren, parkeervergunningen

Dak

Dak Tentdak

Overig

Permanente bewoning Ja
Onderhoud binnen Goed
Onderhoud buiten Goed
Huidig gebruik Woonruimte
Huidige bestemming Woonruimte

Kadastrale gegevens

Gemeente Gorinchem
Sectie C
Perceelnummer 5162
Eigendomssituatie Volle eigendom
v1-20250318-8G0A1608E
Interesse in deze woning?

Leo helpt u graag

Gratis waardebepaling

U denkt erover uw woning te verkopen en wilt graag weten wat het waard is? We komen graag bij u langs en bepalen de waarde van uw woning.

Gratis waardebepaling

Deel deze woning

Uw persoonlijke adviseur in de regio

Maak kennis met de HypotheekWeter

Ligging

Afspraak maken voor een bezichtiging? Neem contact met ons op

Vergelijkbare woningen