0183 - 635011 0183 - 635011 Stel een vraag Stel een vraag
Verkocht

F.A. van Hallstraat 2

HEI- EN BOEICOP
€ 550.000,- k.k.
  • Woonoppervlakte 112 m2
  • Perceeloppervlakte 310 m2
  • Aantal slaapkamers 4
  • Bouwjaar 1965

Omschrijving

Op zoek naar een woning waar je alleen nog maar je verhuisdozen hoeft uit te pakken?

Deze instapklare twee-onder-één-kapwoning heeft álles in huis. Letterlijk, maar ook figuurlijk. Denk aan een oprit met carport, een gepotdekselde en verwarmde garage én een ruime vrijstaande schuur – ideaal voor klussers, hobbyisten of simpelweg voor al die fietsen die zich in de loop der jaren ongemerkt hebben verzameld.

De woning staat op een fraaie kavel van 310 m² in een rustige straat, in een dorp waar de lucht nog écht Hollands blauw kleurt en waar je buren gewoon gedag zeggen. De tuin ligt heerlijk op het zuiden, dus hier kun je de hele dag genieten van zon en buitenleven.

Binnen is het minstens zo fijn. De woning is grondig gemoderniseerd en uitstekend geïsoleerd, voorzien van 18 zonnepanelen en een energielabel B. De woonkamer is licht en gezellig, compleet met een sfeervolle haardmantel en houtkachel. De keuken is van alle gemakken voorzien en de bijkeuken maakt het plaatje beneden compleet.
Op de eerste verdieping vind je drie slaapkamers (waarvan één met balkon) en een moderne badkamer. De tweede verdieping verrast met een vierde slaapkamer, voorzien van een dakopbouw – ideaal als werk-, logeer- of tienerkamer.

Kortom: een huis dat niet alleen praktisch en duurzaam is, maar ook warmte en gezelligheid uitstraalt. Een plek waar je direct thuis voelt, onder die eindeloze Hollandse luchten.

Highlights
•Bouwjaar 1965 – door de jaren heen grondig gemoderniseerd
•Woonoppervlakte 112 m² + 44 m² inpandige ruimte
•Perceel van 310 m² met zonnige tuin op het zuiden
•Sfeervolle woonkamer met houtkachel en veel lichtinval
•Halfopen keuken met complete inbouwapparatuur en praktische bijkeuken
•Vier slaapkamers (waarvan één met balkon en één met dakopbouw)
•Verbouwing schuur & carport (2013)
•Dak vernieuwd in 2020
•Uitstekend geïsoleerd: spouwmuurisolatie (2017), vloerisolatie (2024), dubbel glas, aluminium kozijnen beneden en boven kunststof kozijnen
•Duurzaam & comfortabel: 18 zonnepanelen, vloerverwarming (bijkeuken, hal, schuur, badkamer), airco en Nefit CV-ketel (2021)
•Diverse rolluiken
•Parkeren op eigen terrein met carport, overkapping en ruime berging/garage
•Vrijstaande schuur 9 m2 achter in de tuin


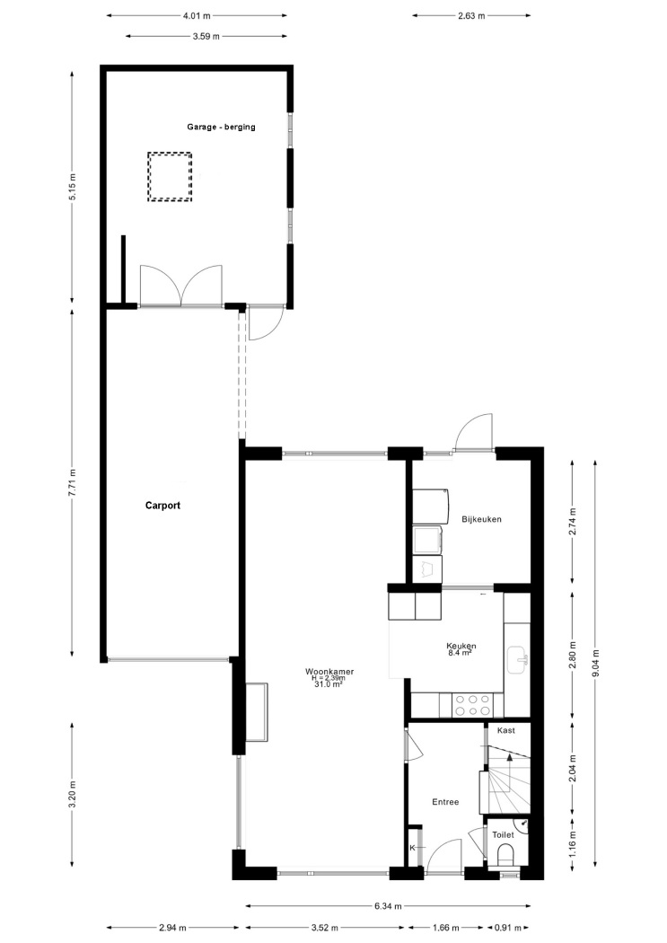
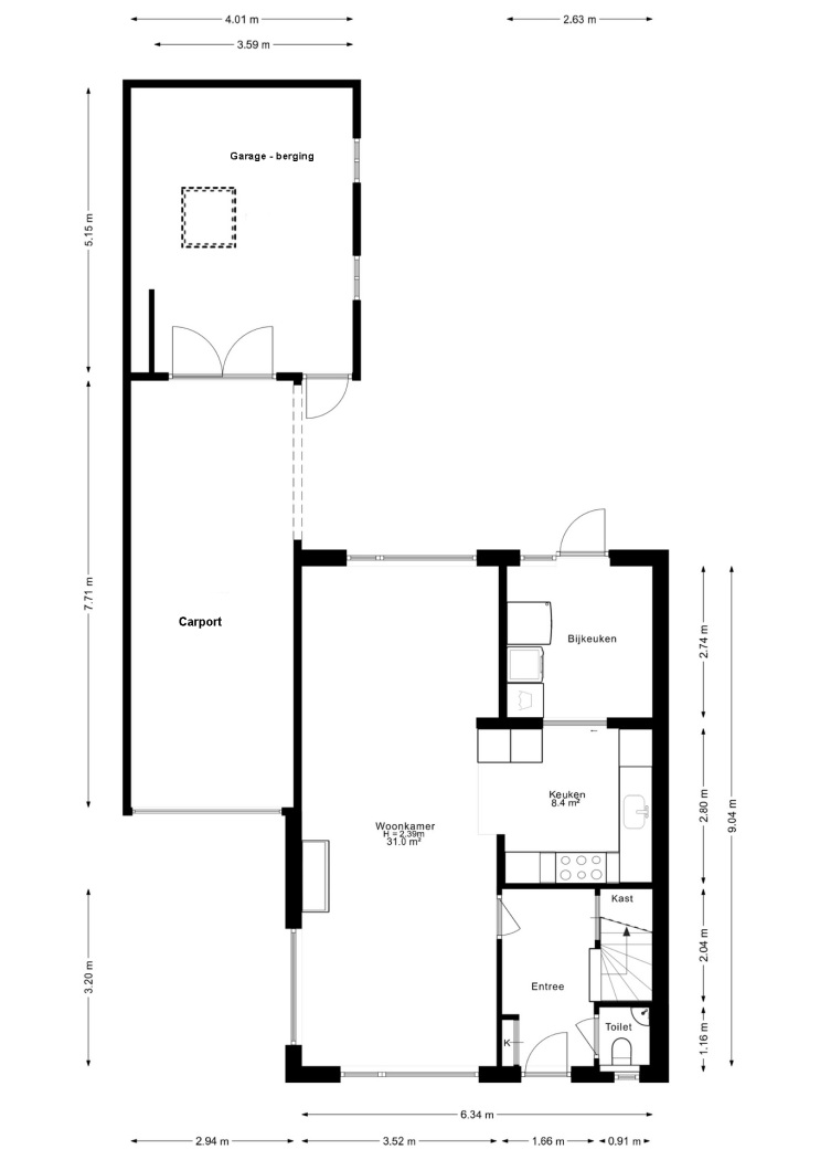
INDELING BEGANE GROND

Welkom!
Via de entree stap je binnen in een hal die toegang geeft tot de woonkamer, toiletruimte, meterkast, trapkast én de trap naar boven. Alles netjes bij elkaar, zodat je meteen de goede weg weet te vinden.

Wonen & koken
De woonkamer van 31 m² is een fijne plek om tot rust te komen. Brede houten vloerdelen, grote ramen aan de voor- en achterzijde én een extra zijraam zorgen voor volop licht. De haardmantel met houtkachel maakt het extra sfeervol – ideaal voor lange winteravonden. Er is meer dan genoeg ruimte voor een gezellig zitgedeelte én een royale eettafel, met achterin een leuk zicht op de tuin. Het witgeschilderde balkenplafond geeft de ruimte net dat vleugje karakter waardoor je je meteen thuis voelt.

Keuken
De halfopen keuken (8,4 m²) is uitgevoerd in een landelijke stijl en heeft een handige U-opstelling. Voor de kookliefhebbers: er staat een Boretti gasfornuis met twee ovens klaar, compleet met een schouw en afzuigkap met witjes. Natuurlijk ontbreken een koelkast en vaatwasser niet. Kortom: een keuken waar koken nog gewoon leuk is.

Bijkeuken
Aansluitend vind je de bijkeuken: praktisch en slim ingedeeld, met aansluitingen voor wasmachine en droger, ruimte voor een extra vriezer en kastruimte. Op de vloer liggen tegels. Via de deur loop je zo de tuin in – handig voor wie graag binnen en buiten combineert.

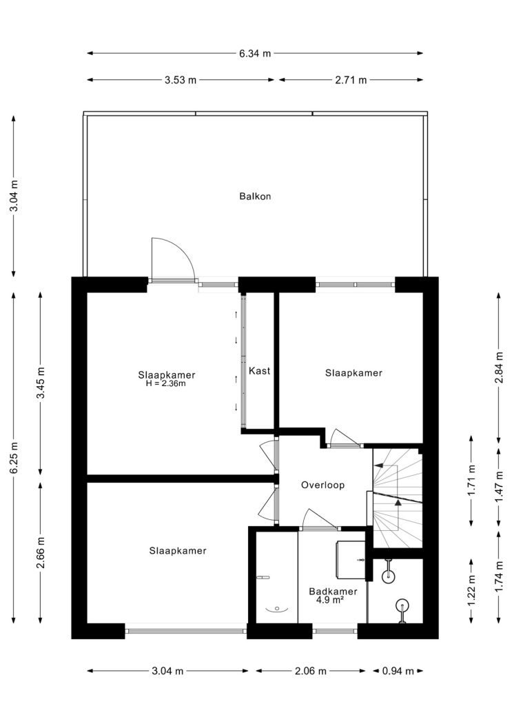
INDELING EERSTE VERDIEPING

3 slaapkamers
Op de eerste verdieping bevinden zich drie ruime slaapkamers. Aan de voorzijde ligt een lichte kamer, ideaal als kinderkamer, logeerkamer of werkkamer. Aan de achterzijde vind je twee slaapkamers met rolluiken, waaronder de master bedroom. Deze beschikt over praktische kastruimte én een deur naar het royale balkonterras van maar liefst 19 m², gelegen op het zonnige zuiden. Een heerlijke plek om ’s ochtends rustig te ontwaken of ’s avonds nog even van de laatste zonnestralen te genieten.

Opfrissen
De moderne badkamer is een waar ontspanningsparadijs. Strakke, stijlvolle tegels en comfortabele vloerverwarming (slim aangesloten via de retourslang van de radiator) zorgen voor een aangenaam klimaat – zowel in de zomer als in de winter. Je vindt hier een elegant wastafelmeubel met spiegelkast, een Whirlpool ligbad, een royale inloopdouche én een praktische designradiator. Alles wat je nodig hebt om de dag fris en energiek te beginnen of juist in alle rust en comfort af te sluiten.

INDELING TWEEDE VERDIEPING
De tweede verdieping verrast met een ruime vierde slaapkamer, vergroot dankzij de dakopbouw met rolluik. Hierdoor is er niet alleen volop licht en ruimte, maar ook veel praktische bergruimte gecreëerd. Een ideale plek als extra slaapkamer, werkruimte of hobbykamer.

Tuin & buitenruimte
De woning beschikt over een heerlijke, zonnige tuin op het zuiden – de ideale plek om te genieten van lange zomerdagen. Met een combinatie van een ruim terras, sierlijke tegels en een fris gazon is er voor ieder wat wils. Achterin de tuin staat een gepotdekselde berging van 9 m², praktisch voor fietsen of tuingereedschap.
Aan de voorzijde ligt een oprit met carport, die via een sfeervolle overkapping doorloopt naar de achterzijde. Daar kom je uit bij de royale garage/schuur (carport en garage samen ca. 44 m²), uitgevoerd in dezelfde stijlvolle gepotdekselde afwerking. Binnen vind je verrassend veel comfort: vloerverwarming, een daklicht en meerdere ramen maken deze ruimte niet alleen praktisch, maar ook prettig om in te werken of te ontspannen. Op het dak zorgen de zonnepanelen voor een duurzame en energiezuinige toevoeging.

Lees de volledige omschrijving

Kenmerken

Overdracht

Status Verkocht
Aanvaarding In overleg

Bouwvorm

Soort object Woonhuis
Soort woning Eengezinswoning
Type woning Twee onder één kapwoning
Bouwjaar 1965
Bouwvorm Bestaande bouw
Ligging Aan een rustige weg

Indeling

Woonoppervlakte 112 m²
Perceeloppervlakte 310 m²
Inhoud 565 m³
Aantal kamers 5
Aantal slaapkamers 4
Aantal woonlagen 3

Energie

Energieklasse B
Energie einddatum maandag 24 september 2035
Isolatie Dakisolatie, muurisolatie, vloerisolatie, dubbel glas, volledig geïsoleerd
Warmwater Cv ketel
Verwarming Cv ketel, vloerverwarming gedeeltelijk, houtkachel

Buitenruimte

Tuin Achtertuin, voortuin
Hoofdtuin Achtertuin
Oppervlakte hoofdtuin 139 m²
Ligging hoofdtuin Zuid
Achterom Ja
Kwaliteit tuin Verzorgd

Bergruimte

Garage Aangebouwd hout, carport, eigen parkeerplaats
Schuur / Berging Vrijstaand hout
Voorzieningen Verwarming, elektra

Parkeergelegenheid

Voorzieningen Openbaar parkeren, op eigen terrein

Dak

Dak Zadeldak

Overig

Permanente bewoning Ja
Onderhoud binnen Goed
Onderhoud buiten Goed
Huidig gebruik Woonruimte
Huidige bestemming Woonruimte

Voorzieningen

Voorzieningen Rolluiken, tv kabel, airconditioning, zonnepanelen

Kadastrale gegevens

Gemeente Hei- en Boeicop
Sectie B
Perceelnummer 1856
Oppervlakte 310 m²
Eigendomssituatie Volle eigendom
v1-20250318-8G0A1538EE
Interesse in deze woning?

Stefan helpt u graag

Gratis waardebepaling

U denkt erover uw woning te verkopen en wilt graag weten wat het waard is? We komen graag bij u langs en bepalen de waarde van uw woning.

Gratis waardebepaling

Deel deze woning

Uw persoonlijke adviseur in de regio

Maak kennis met de HypotheekWeter

Ligging

Afspraak maken voor een bezichtiging? Neem contact met ons op