0183 - 635011 0183 - 635011 Stel een vraag Stel een vraag
Verhuurd

Dokter van Stratenweg 221

GORINCHEM
Huurprijs: € 1.125,- per maand
  • Woonoppervlakte 83 m2
  • Aantal slaapkamers 2
  • Bouwjaar 1976

Omschrijving

Ruime maisonnette in de Stalkaarsenflat te huur! Meld je telefonisch aan voor de kijkdag op dinsdag 14 april van 14:00 tot 17:00 uur!

Dit goed onderhouden appartement beschikt over twee ruime slaapkamers. Dankzij een dubbel belsysteem met deurintercom en afgesloten galerijen woon je hier met een fijn gevoel. Op de begane grond is de eigen berging te vinden, en rondom het gebouw is er volop parkeergelegenheid. Met de lift bereik je eenvoudig de woonverdieping.

Bij binnenkomst in de hal vind je de meterkast, toiletruimte, trapopgang naar boven en toegang tot de keuken en woonkamer. De keuken is ruim opgezet en voorzien van diverse inbouwapparatuur, waaronder een kookplaat, afzuigkap, oven, spoelbak en vaatwasser. De woonkamer is heerlijk licht dankzij de grote ramen en biedt voldoende ruimte voor een comfortabele zithoek en eettafel. Er is tevens een trapkast aanwezig. Vanuit de woonkamer stap je het balkon op, een fijne plek om te genieten van koffie of ontbijt.

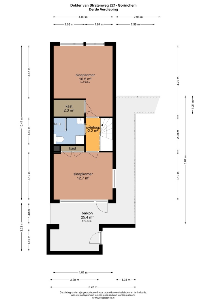
Op de bovenverdieping geeft de overloop toegang tot twee slaapkamers. 1 van de slaapkamers geeft toegang tot het tweede balkon. Verder vind je hier de badkamer, voorzien van een inloopdouche, wastafel en tweede toilet.

Highlights van het appartement:
-Woonoppervlakte ca. 83 m²
-Ruime woonkamer
-Twee ruime slaapkamers, waarvan één met balkon
-Eigen berging op de begane grond
-Energielabel C
-Levendige buurt met alles dichtbij: winkels, scholen, parken
en sportfaciliteiten

Ligging
De maisonnette ligt aan de westkant van Gorinchem, met alle dagelijkse voorzieningen dichtbij. Winkelcentrum Piazza en het stadspark zijn op loopafstand, net als diverse scholen. Via de A15 en A27 zijn steden als Breda, Rotterdam en Utrecht binnen circa 30 minuten bereikbaar.

Kortom: een nette, instapklare maisonnette met drie slaapkamers, twee balkons en moderne voorzieningen, de ideale plek voor wie comfortabel en centraal wil wonen in Gorinchem.

Huurprijs: € 1.125,08,- per maand excl. g/w/e + €100,- servicekosten
Contract: minimaal 12 maanden doorlopend voor onbepaalde tijd
Inkomenscheck: 3 x de huurprijs (bruto)
Beschikbaarheid: per 1 mei 2026
Waarborgsom: 2 x de kale huurprijs (€ 1.125,08)

Lees de volledige omschrijving

Kenmerken

Overdracht

Status Verhuurd
Aanvaarding Per datum

Bouwvorm

Soort object Appartement
Bouwjaar 1976
Bouwvorm Bestaande bouw
Ligging Aan een park, in een woonwijk

Indeling

Woonoppervlakte 83 m²
Inhoud 272 m³
Aantal kamers 4
Aantal slaapkamers 2
Aantal woonlagen 2

Energie

Energieklasse C
Energie einddatum donderdag 10 mei 2029
Isolatie Gedeeltelijk dubbel glas
Warmwater Cv ketel
Verwarming Cv ketel

Buitenruimte

Tuin Geen tuin
Achterom Nee

Bergruimte

Garage Geen garage
Schuur / Berging Box

Parkeergelegenheid

Voorzieningen Openbaar parkeren

Dak

Dak Plat dak

Overig

Permanente bewoning Ja
Onderhoud binnen Goed
Onderhoud buiten Goed
Huidig gebruik Woonruimte
Huidige bestemming Woonruimte

Kadastrale gegevens

Gemeente Gorinchem
Sectie E
Perceelnummer 1512
Eigendomssituatie Volle eigendom
v1-20250417-8G0A2933E
Interesse in deze woning?

Sidney helpt u graag

Gratis waardebepaling

U denkt erover uw woning te verkopen en wilt graag weten wat het waard is? We komen graag bij u langs en bepalen de waarde van uw woning.

Gratis waardebepaling

Deel deze woning

Uw persoonlijke adviseur in de regio

Maak kennis met de HypotheekWeter

Ligging

Afspraak maken voor een bezichtiging? Neem contact met ons op