0183 - 635011 0183 - 635011 Stel een vraag Stel een vraag
Beschikbaar

De Buurt 10

HARDINXVELD-GIESSENDAM
€ 750.000,- k.k.
  • Woonoppervlakte 248 m2
  • Perceeloppervlakte 428 m2
  • Aantal slaapkamers 5
  • Bouwjaar 1928

Omschrijving

Wonen, werken én film kijken? Dat kan dus allemaal hier!

Een dijk van een vrijstaande woning – letterlijk én figuurlijk.

Hier woon je royaal, comfortabel en met alle ruimte voor jezelf én je auto’s. De woning beschikt over een eigen oprit en afrit, zodat je moeiteloos in- en uitrijdt. Achter de woning is ruime parkeergelegenheid op eigen terrein, inclusief een carport voor beschut parkeren. Ideaal voor meerdere auto’s of bezoekers.

En dat is nog maar het begin. Bovenop vind je een zonnig dakterras van maar liefst 40 m², perfect voor zomerse avonden. De overdekte lounge met jacuzzi en houtkachel maakt het buitenleven compleet – hier geniet je het hele jaar door van comfort en privacy.

Je zoekt, je zoekt… en dan vind je dit pareltje aan de Buurt 10! Ooit twee woningen met een winkel, nu één bijzonder huis met drie woonlagen vol comfort en verrassingen.

Op dijkniveau vind je de sfeervolle living met kookeiland en aansluitend het riante dakterras op het zuiden. Boven? Vier slaapkamers en een frisse badkamer. En beneden… het multifunctionele souterrain: kantoor, werk-/slaapkamer, tweede badkamer, wasruimte én een eigen bioscoop. Overdag vergaderen, ’s avonds een film draaien — waarom niet?

Tussen 2020 en 2023 is alles grondig vernieuwd: van keuken tot badkamers, van zonnepanelen tot hybride warmtepompen. Alles fris, duurzaam en helemaal klaar voor de toekomst. Fris, energiezuinig en toekomstbestendig – met energielabel B.

Fris wit van buiten, verrassend ruim van binnen – dit huis heeft alles.

Buurt 10: een huis met karakter, comfort én een vleugje Hollywood aan de Merwede.

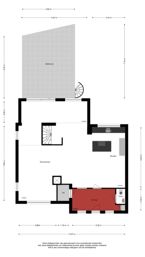
INDELING DIJKNIVEAU

Welkom thuis
Binnenkomen doe je hier met een glimlach. In de hal vind je het toilet, de meterkast en een diepe garderobekast — met als charmant detail het originele stalraam.

Woonkamer & Keuken
Wauw, wat een ruimte! De living en keuken vormen samen een royale leefruimte van circa 87 m² – een prachtig geheel waarin twee panden naadloos zijn samengesmolten. Aan de voorzijde bevindt zich een sfeervolle zithoek met gashaard en cinewall – de ideale plek voor lange, ontspannen avonden. En dankzij de airconditioning blijft het hier altijd aangenaam, in elk seizoen.

De verschillende zones vloeien moeiteloos in elkaar over door subtiele hoogteverschillen rondom de trappartij, wat de ruimte extra karakter en diepte geeft. Via een elegante toog en de schuifpui stap je zo het waanzinnige dakterras op – een zonnig verlengstuk van de woonkamer waar binnen en buiten naadloos samenkomen.

Het hart van het huis is de prachtige eilandkeuken, met volop plek voor een royale eettafel. Uitgevoerd in een eigentijdse off white tint met een stoer betonlook werkblad, en voorzien van alles wat het kook hart sneller doet kloppen: combimagnetron, oven, vaatwasser, koel-vriescombinatie, strakke afzuigkap en natuurlijk véél bergruimte.

Dakterras
Via de schuifpui stap je zo het zonnige dakterras (bijna 40 m²) op – jouw buitenkamer met vlonders op het zuiden. Perfect voor lange zomeravonden en een stalen draaitrap die je rechtstreeks naar de tuin brengt.

INDELING VERDIEPING

Via de stijlvolle trap met sierlijke spijlen bereik je de slaapverdieping, waar een lichte L-vormige overloop toegang biedt tot vier slaapkamers en een complete badkamer.

4 slaapkamers
Aan de achterzijde bevinden zich twee kamers met dakkapellen en uitzicht over de Rivierdijk en de rivier De Merwede – waaronder de ruime hoofdslaapkamer met grote schuifwandkast. Aan de voorzijde liggen nog twee royale slaapkamers, beide voorzien van dakkapel en handige inbouwkasten.

Badkamer
De badkamer (2021) met dakkapel is een plaatje van comfort en design. Afgewerkt met warme houtlook tegels en stijlvolle zwarte accenten straalt deze ruimte pure luxe uit. Voorzien van een ligbad, inloopdouche met regendouche en handdouche, een tweede zwevend toilet en een dubbel wastafelmeubel met spiegel en hoge kast. Dankzij de vloerverwarming voelt het hier altijd behaaglijk aan — een heerlijke plek om de dag te beginnen of juist af te sluiten.

Bergzolder
De bergzolder biedt verrassend veel opbergruimte en is eenvoudig bereikbaar via een vlizotrap. Ideaal voor koffers, seizoensspullen en alles wat je nét even uit het zicht wilt houden.

INDELING SOUTERRAIN

Via de trap vanuit de woonkamer bereik je het royale souterrain (met stahoogte) – een verrassend complete leef verdieping met talloze mogelijkheden. De overloop geeft toegang tot een slaap-/werkkamer, een eigen bioscoopruimte met doorgang naar het overdekte terras met loungehoek, jacuzzi en houtkachel – het perfecte recept voor ontspanning.

Daarnaast vind je hier een ruime wasruimte met cv/warmtepomp, een moderne tweede badkamer met inloopdouche en regendouche, dubbel wastafelmeubel, designradiator en vloerverwarming. Verder zijn er een separaat toilet, een kantoor, een praktische berging en een achterhal met directe toegang tot het kantoor én de dubbele carport.

BUITENOM

De kavel van maar liefst 428 m² biedt volop ruimte rondom de woning en combineert privacy met praktisch gemak. Aan de oostzijde bevindt zich een ruime, bestrate oprit met gietijzeren hekwerk, die niet alleen zorgt voor een stijlvolle entree maar ook voor uitstekende bereikbaarheid dankzij een eigen oprit én afrit. Hierdoor rij je gemakkelijk in en uit, zonder te hoeven manoeuvreren op de openbare weg.

Op het eigen terrein is meer dan voldoende parkeergelegenheid – ideaal voor meerdere auto’s, een aanhanger en bezoekers. De oprit leidt naar een dubbele carport en een houten berging met overkapping, perfect voor het stallen van fietsen, tuingereedschap of hobbyspullen.

Aan de westzijde ligt een onderhoudsvriendelijke tuin met sierbestrating en een sfeervol overdekt terras. Hier geniet je in alle rust van het buitenleven – of dat nu is met een kop koffie in de ochtendzon, of tijdens lange zomeravonden met vrienden en familie.

Overdekt terras / loungeruimte – ca. 29 m²
Een absolute blikvanger is de royale loungeruimte met jacuzzi en gezellige houtkachel. Hier geniet je het hele jaar door – in de zon, bij regen of onder de sterren. De afwerking met plavuizen en vlonderplanken maakt het compleet: een heerlijke plek om te ontspannen en op te laden.

Highlights
•Bouwjaar: 1928 – volledig verbouwd en verduurzaamd (2020 - 2023)
•Energielabel B
•Woonoppervlakte: ca. 248 m²
•Perceeloppervlakte: 428 m²
•Inhoud: ca. 1.054 m³
•3 woonlagen + bergzolder inclusief royaal souterrain
•Riante living & eilandkeuken: ca. 87 m²
•Zonnig dakterras (zuid): ca. 40 m²
•4 slaapkamers & 2 badkamers
•Luxe souterrain met kantoor, werkkamer, wasruimte en eigen bioscoop
•Veranda / overdekte loungeruimte met jacuzzi, houtkachel en carport
•Keuken vernieuwd (2023) | Badkamers & dakterras (2021)
•Volledige installaties vernieuwd (2020–2022)
•Elektrisch zonnescherm achtergevel
•Airconditioning in nagenoeg alle ruimtes
•20 zonnepanelen (2020)
•Vloerverwarming in keuken, eetkamer en beide badkamers
•Lucht-lucht warmtepompen voor verwarming én koeling (begane grond, 1e verdieping en kantoor)
•Warmtepompboiler voor energiezuinig warm water

Ligging
Welkom in Boven-Hardinxveld, waar dorps gezelligheid en modern comfort hand in hand gaan. Deze woning ligt aan De Buurt – het kloppende hart van het dorp – een karaktervolle straat met historie en sfeer. Hier woon je rustig in een straat met eenrichtingsverkeer, maar toch midden tussen alle voorzieningen: winkels, scholen, speeltuintjes en de rivier De Merwede liggen letterlijk om de hoek.

De Buurt ademt historie: veel panden stammen uit begin 1900, waaronder ook nummer 10, dat ooit dienstdeed als woonhuis mét winkel. Nu is het een eigentijdse woning met het beste van twee werelden – oud karakter in een modern jasje. Dankzij de gunstige ligging zijn ook de snelwegen A15 en A27 snel bereikbaar.

Lees de volledige omschrijving

Kenmerken

Overdracht

Status Beschikbaar
Aanvaarding In overleg

Bouwvorm

Soort object Woonhuis
Soort woning Eengezinswoning
Type woning Vrijstaande woning
Bouwjaar 1928
Bouwvorm Bestaande bouw
Ligging Aan een rustige weg

Indeling

Woonoppervlakte 248 m²
Perceeloppervlakte 428 m²
Inhoud 1054 m³
Aantal kamers 8
Aantal slaapkamers 5
Aantal woonlagen 4

Energie

Energieklasse B
Energie einddatum maandag 8 oktober 2035
Isolatie Dakisolatie, muurisolatie, dubbel glas, hr glas
Verwarming Cv ketel, vloerverwarming gedeeltelijk, houtkachel, gashaard

Buitenruimte

Tuin Tuin rondom
Hoofdtuin Tuin rondom
Achterom Ja
Kwaliteit tuin Normaal

Bergruimte

Garage Carport, geen garage

Parkeergelegenheid

Voorzieningen Op eigen terrein

Dak

Dak Samengesteld dak

Overig

Permanente bewoning Ja
Onderhoud binnen Goed tot uitstekend
Onderhoud buiten Goed tot uitstekend
Huidig gebruik Woonruimte
Huidige bestemming Woonruimte

Voorzieningen

Voorzieningen Mechanische ventilatie, tv kabel, airconditioning, rookkanaal, schuifpui, zonnepanelen

Kadastrale gegevens

Gemeente Hardinxveld-Giessendam
Sectie C
Perceelnummer 4413
Oppervlakte 368 m²
Eigendomssituatie Volle eigendom
v1-20250318-8G0A1608E
Interesse in deze woning?

Leo helpt u graag

Gratis waardebepaling

U denkt erover uw woning te verkopen en wilt graag weten wat het waard is? We komen graag bij u langs en bepalen de waarde van uw woning.

Gratis waardebepaling

Deel deze woning

Uw persoonlijke adviseur in de regio

Maak kennis met de HypotheekWeter

Ligging

Afspraak maken voor een bezichtiging? Neem contact met ons op

Vergelijkbare woningen