0183 - 635011 0183 - 635011 Stel een vraag Stel een vraag
Verkocht

Burgemeester van der Lelystraat 92

WOUDRICHEM
€ 360.000,- k.k.
  • Woonoppervlakte 75 m2
  • Perceeloppervlakte 365 m2
  • Aantal slaapkamers 3
  • Bouwjaar 1958

Omschrijving

Welkom aan de Burgemeester van der Lelystraat 92 in Woudrichem!

Op zoek naar een fijne eengezinswoning met volop mogelijkheden? Deze hoekwoning met eigen oprit, garage én een ruime groene voor- en achtertuin biedt alle ingrediënten om er jouw droomplek van te maken.

Highlights

-Hoekwoning met karakter
-Perceel van ca. 365 m²
-Drie slaapkamers
-Royale voor- en achtertuin
-Bergzolder, extra opslag en cv-ketel
-Verhoogde oprit, geschikt voor meerdere en zwaardere voertuigen
-Garage én separate berging
-Dak van woning en schuur zijn na de bouw vernieuwd
-Diverse indelingsmogelijkheden om de woning geheel naar eigen smaak af te werken


Rondom de woning is het genieten van ruimte en groen. Aan de voorzijde ligt een brede, verzorgde voortuin die zorgt voor een prettige afstand tot de straat en de woning een uitnodigende uitstraling geeft. Naast het huis loopt een verhoogde oprit, ideaal voor meerdere auto’s, die uitkomt bij de garage. Vanuit hier is er tevens een praktische achterom naar de achtertuin. De achtertuin is verrassend ruim: met veel groen, een terras en een handige berging is dit een heerlijke plek om buiten te zijn. Daarbij is zowel het dak van de woning als van de schuur na de bouw vernieuwd – een mooie plus.

Bij binnenkomst stap je in de hal, die toegang geeft tot de woonkamer, de keuken, de trap naar boven en het aparte toilet. De woonkamer is licht en uitnodigend dankzij de grote ramen aan zowel de voor- als achterzijde. Een ingebouwde kast biedt praktische opbergruimte en met de aanwezige airco is het er het hele jaar door comfortabel. Een prettige leefruimte met volop mogelijkheden om naar eigen wens in te richten.

De keuken is bereikbaar vanuit zowel de hal als de woonkamer en beschikt over een deur naar de achtertuin – ideaal op zomerse dagen. De ruimte vraagt om wat liefde en aandacht, maar biedt juist daardoor de kans om een keuken te realiseren die helemaal aansluit bij jouw smaak en woonstijl.

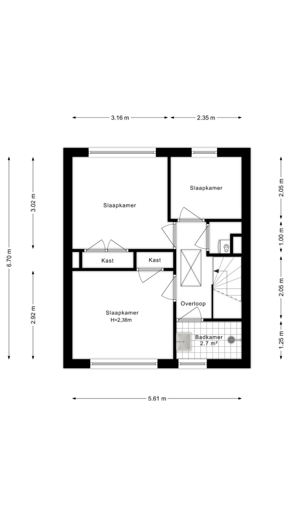
Op de eerste verdieping bevinden zich drie slaapkamers, de badkamer en een praktische wasruimte. Twee slaapkamers zijn royaal van formaat en voorzien van ingebouwde kasten – perfect voor een overzichtelijke garderobe. De derde kamer is wat compacter en daardoor geschikt als kinderkamer, werkkamer of hobbyruimte. Dankzij de airco is ook deze verdieping op warme dagen heerlijk koel.

De badkamer vormt een goede basis om geheel naar eigen wens te moderniseren. Via een vlizotrap is de bergzolder bereikbaar: een handige extra ruimte voor opslag of juist voor verdere uitbreiding.

Met een ruime oprit, garage, groene tuin, lichte woonkamer, drie slaapkamers en een bergzolder biedt deze woning alles wat je nodig hebt – én de vrijheid om er jouw eigen thuis van te maken. Een ideale basis voor wie ruimte, comfort en mogelijkheden zoekt.

Lees de volledige omschrijving

Kenmerken

Overdracht

Status Verkocht
Aanvaarding In overleg

Bouwvorm

Soort object Woonhuis
Soort woning Eengezinswoning
Type woning Hoekwoning
Bouwjaar 1958
Bouwvorm Bestaande bouw

Indeling

Woonoppervlakte 75 m²
Perceeloppervlakte 365 m²
Inhoud 301 m³
Aantal kamers 4
Aantal slaapkamers 3
Aantal woonlagen 3

Energie

Energieklasse F
Energie einddatum zondag 2 september 2035
Isolatie Gedeeltelijk dubbel glas
Warmwater Cv ketel
Verwarming Cv ketel

Buitenruimte

Tuin Achtertuin, voortuin, zijtuin
Hoofdtuin Achtertuin
Oppervlakte hoofdtuin 208 m²
Ligging hoofdtuin Noord-oost
Achterom Ja
Kwaliteit tuin Normaal

Bergruimte

Garage Vrijstaand steen
Schuur / Berging Vrijstaand steen
Voorzieningen Elektra

Parkeergelegenheid

Voorzieningen Op eigen terrein

Dak

Dak Zadeldak

Overig

Permanente bewoning Ja
Onderhoud binnen Redelijk
Onderhoud buiten Redelijk
Huidig gebruik Woonruimte
Huidige bestemming Woonruimte

Voorzieningen

Voorzieningen Mechanische ventilatie, airconditioning, dakraam, natuurlijke ventilatie

Kadastrale gegevens

Gemeente Woudrichem
Sectie H
Perceelnummer 1033
Oppervlakte 263 m²
Eigendomssituatie Volle eigendom
PLR55485
Interesse in deze woning?

Dionne helpt u graag

Gratis waardebepaling

U denkt erover uw woning te verkopen en wilt graag weten wat het waard is? We komen graag bij u langs en bepalen de waarde van uw woning.

Gratis waardebepaling

Deel deze woning

Uw persoonlijke adviseur in de regio

Maak kennis met de HypotheekWeter

Ligging

Afspraak maken voor een bezichtiging? Neem contact met ons op

Vergelijkbare woningen