0183 - 635011 0183 - 635011 Stel een vraag Stel een vraag
Beschikbaar

Binnendamseweg 70

GIESSENBURG
€ 850.000,- k.k.
  • Woonoppervlakte 122 m2
  • Perceeloppervlakte 650 m2
  • Aantal slaapkamers 4
  • Bouwjaar 1996

Omschrijving

Welkom aan de Binnendamseweg 70 in Giessenburg: een vrijstaande woning waar ruimte, comfort en buitenleven op een prachtige manier samenkomen. Deze sfeervolle woning biedt alles wat je zoekt voor prettig en royaal wonen: een lichte leefruimte met open keuken, meerdere slaapkamers, een luxe badkamer én een riante tuin met overkapping, lounge en grote garage. Een ideaal thuis voor gezinnen, thuiswerkers of iedereen die vrijstaand wil wonen met volop leefruimte, binnen én buiten.

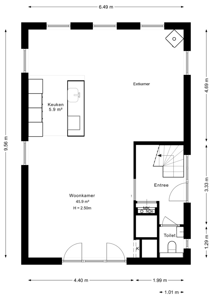
Entree & begane grond
Via de entree betreed je de woning en ervaar je direct het ruimtelijke en lichte karakter. Vanuit de hal is er toegang tot de royale woonkamer met open keuken. De woonkamer biedt meer dan voldoende plek voor een comfortabele zithoek én een grote eettafel, perfect voor gezellige avonden met familie en vrienden. De grote raampartijen zorgen voor veel natuurlijk licht en een prettige verbinding met de tuin.?De open keuken is modern en praktisch ingericht en vormt het hart van de woning. Het kookeiland nodigt uit tot samen koken en borrelen, terwijl er volop werk- en opbergruimte aanwezig is. Als sfeervol middelpunt in de woonkamer is er een gezellige houtkachel, die niet alleen warmte, maar ook extra karakter toevoegt aan de leefruimte.

Eerste verdieping
Op de eerste verdieping bevinden zich vier volwaardige slaapkamers, stuk voor stuk prettig van formaat en veelzijdig in te richten als slaap-, werk- of hobbykamer. De luxe badkamer is ruim opgezet en compleet uitgevoerd met een inloopdouche, ligbad, dubbele wastafel en toilet. Een comfortabele en stijlvolle ruimte waar ontspanning centraal staat.

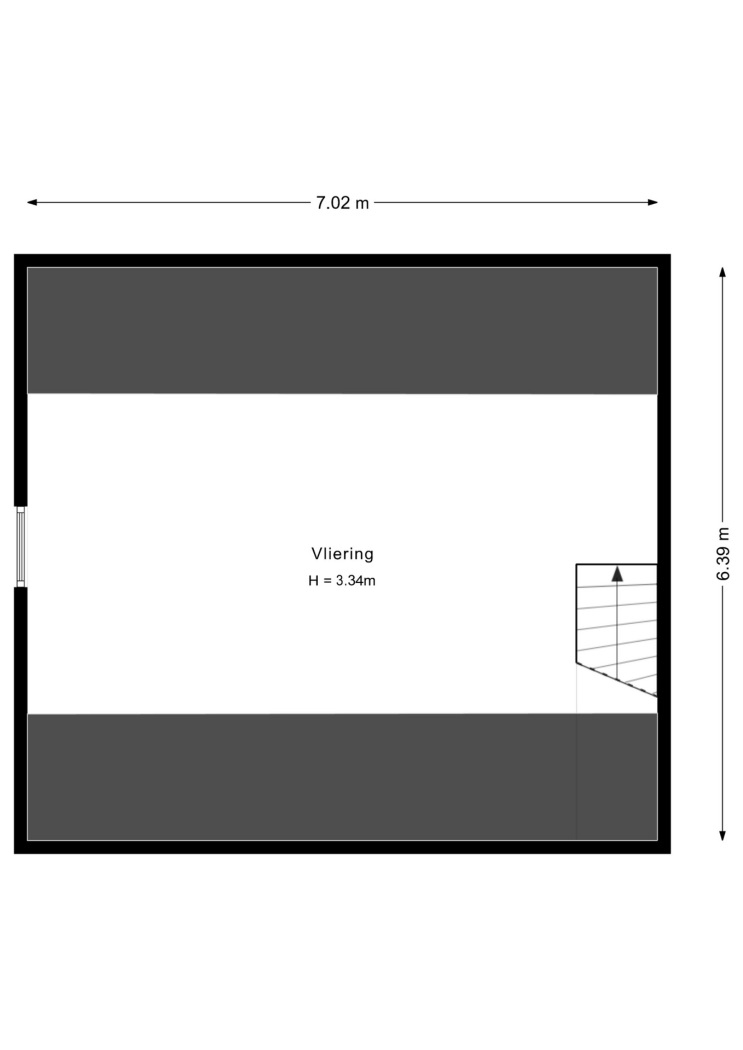
Vliering
Boven de eerste verdieping is er een praktische vliering, ideaal voor extra bergruimte. Daarnaast biedt deze verdieping mogelijkheden voor het creëren van een extra kamer, bijvoorbeeld als werkruimte, logeerkamer of hobbyruimte.

Tuin & buitenruimte
Rondom de woning ligt een ruime tuin waar je volop kunt genieten van rust en privacy. De overkapping met lounge maakt het buitenleven hier compleet en biedt een heerlijke plek om het hele jaar door te ontspannen. In de tuin staat tevens een grote stenen garage met dubbele deuren, ideaal voor het stallen van auto’s, fietsen of gereedschap. De bovenverdieping van de garage zorgt voor extra opslagruimte en maakt deze ruimte bijzonder functioneel.

Highlights
* Vrijstaande woning met veel ruimte en privacy
* Woonoppervlakte ca. 122 m2
* Energielabel A+
* Bouwjaar 1996
* Volledig geïsoleerd
* Dubbel glas
* Ruime en lichte woonkamer met grote raampartijen
* Open keuken met modern kookeiland en inbouwapparatuur
* Gezellige houtkachel als sfeervol middelpunt van de leefruimte
* Mogelijkheid voor een royale zit- én eethoek
* Vier volwaardige slaapkamers op de eerste verdieping
* Luxe, ruime badkamer met inloopdouche, ligbad, dubbele wastafel en toilet
* Praktische vliering met mogelijkheid voor extra kamer en/of bergruimte
* Royale, goed onderhouden tuin rondom de woning
* Overkapping met lounge voor optimaal buitenleven
* Grote stenen garage met dubbele deuren
* Garage voorzien van bovenverdieping voor extra opslag
* Parkeergelegenheid op eigen terrein
* 63 zonnepanelen
* Smarthome-systeem aanwezig
* Ideaal voor gezinnen, thuiswerken en liefhebbers van vrijstaand wonen

Wonen in Giessenburg
Giessenburg is een charmant en gemoedelijk dorp in de Alblasserwaard, waar rust, ruimte en dorpsgevoel hand in hand gaan. Hier woon je landelijk, met het groen en de uitgestrekte polders letterlijk om de hoek, terwijl alle dagelijkse voorzieningen dichtbij zijn. Het dorp beschikt over onder andere een supermarkt, basisscholen, sportverenigingen en diverse horecagelegenheden.

Binnendamseweg 70 in Giessenburg is een vrijstaande woning met een complete indeling, veel licht, luxe voorzieningen en een fantastische buitenruimte. Een huis dat niet alleen ruimte biedt, maar vooral ook wooncomfort en sfeer. Een plek waar je je direct thuis voelt.

Lees de volledige omschrijving

Kenmerken

Overdracht

Status Beschikbaar
Aanvaarding In overleg

Bouwvorm

Soort object Woonhuis
Soort woning Eengezinswoning
Type woning Vrijstaande woning
Bouwjaar 1996
Bouwvorm Bestaande bouw
Ligging Open ligging

Indeling

Woonoppervlakte 122 m²
Perceeloppervlakte 650 m²
Inhoud 468 m³
Aantal kamers 6
Aantal slaapkamers 4
Aantal woonlagen 3

Energie

Energieklasse A+
Energie einddatum dinsdag 7 april 2026
Isolatie Dubbel glas, volledig geïsoleerd
Warmwater Cv ketel
Verwarming Cv ketel, vloerverwarming gedeeltelijk, houtkachel

Buitenruimte

Tuin Achtertuin
Hoofdtuin Achtertuin
Oppervlakte hoofdtuin 219 m²
Ligging hoofdtuin West
Achterom Ja
Kwaliteit tuin Verzorgd

Bergruimte

Garage Vrijstaand steen
Schuur / Berging Vrijstaand hout
Voorzieningen Verwarming, elektra, water, vliering, elektrische deur

Parkeergelegenheid

Voorzieningen Openbaar parkeren, op eigen terrein

Dak

Dak Zadeldak

Overig

Permanente bewoning Ja
Onderhoud binnen Goed tot uitstekend
Onderhoud buiten Goed tot uitstekend
Huidig gebruik Woonruimte
Huidige bestemming Woonruimte

Voorzieningen

Voorzieningen Mechanische ventilatie, tv kabel, airconditioning, rookkanaal, zonnepanelen

Kadastrale gegevens

Gemeente Giessenburg
Sectie H
Perceelnummer 83
Oppervlakte 650 m²
Eigendomssituatie Volle eigendom
v1-20250318-8G0A1608E
Interesse in deze woning?

Leo helpt u graag

Gratis waardebepaling

U denkt erover uw woning te verkopen en wilt graag weten wat het waard is? We komen graag bij u langs en bepalen de waarde van uw woning.

Gratis waardebepaling

Deel deze woning

Uw persoonlijke adviseur in de regio

Maak kennis met de HypotheekWeter

Ligging

Afspraak maken voor een bezichtiging? Neem contact met ons op

Vergelijkbare woningen