0183 - 635011 0183 - 635011 Stel een vraag Stel een vraag
Beschikbaar

Arkelstraat 50

GORINCHEM
€ 380.000,- k.k.
  • Woonoppervlakte 78 m2
  • Aantal slaapkamers 2
  • Bouwjaar 1880

Omschrijving

Sfeervol en ruim appartement met dakterras in hartje Gorinchem!

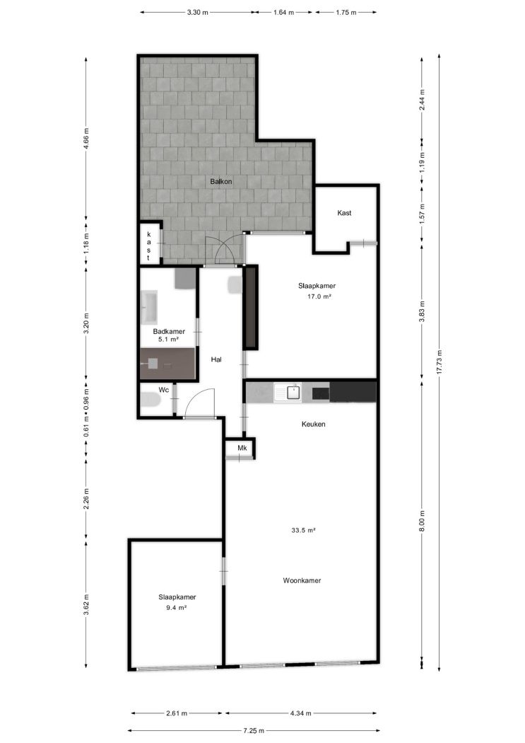
Wonen in een karakteristieke bovenwoning met alle gezelligheid van de binnenstad om je heen? Dat kan aan de Arkelstraat 50! Dit charmante 3-kamerappartement combineert de warmte van een historisch pand met het comfort van nu. Met een ruim dakterras, een lichte woonkamer, twee slaapkamers en een externe berging, is dit de perfecte plek voor wie graag stads woont maar ook wil genieten van rust en buitenruimte.

De woonkamer bevindt zich aan de voorzijde van de woning en voelt direct ruim en licht aan dankzij de grote ramen en het hoge plafonds. Hier is volop plek voor een comfortabele zithoek én een gezellige eethoek. De open keuken sluit mooi aan bij het geheel en maakt de woonkamer tot een fijne, sociale leefruimte.

Aan de voorzijde vind je de eerste slaapkamer, ideaal als logeer- of werkkamer. De hoofdslaapkamer ligt aan de rustige achterzijde en beschikt over een ruime inloop kledingkast. De badkamer is bereikbaar via de hal en is stijlvol afgewerkt en voorzien van een inloopdouche, dubbele wastafel en wasmachineaansluiting.

Een absoluut hoogtepunt van deze woning is het ruime dakterras. Hier kun je in alle privacy genieten van de zon, met voldoende ruimte voor een eettafel, loungeset en barbecue — perfect voor lange zomeravonden met vrienden of gewoon om even heerlijk te ontspannen.

Daarnaast is er een separate, gedeelde berging beschikbaar — perfect voor het stallen van fietsen.

Pluspunten op een rij:
- Woonoppervlakte ca. 85 m²
- Ruim privé dakterras met veel privacy
- Net afgewerkte woning
- Gedeelde berging op de begane grond
- Lichte woonkamer met grote ramen en open keuken
- Twee slaapkamers, waarvan grote slaapkamer met inloopkast
- Badkamer met inloopdouche, dubbele wastafel en wasmachineaansluiting
- Separaat toilet bereikbaar via de hal
- Gelegen in een beschermd stadsgezicht
- VvE maandelijkse bijdrage ca. € 167,-
- Energielabel D maar recentelijk is de achterzijde vervangen naar kunststof kozijnen met HR++ glas en is de ketel vervangen.
- Charmant pand uit 1880 met karakteristieke uitstraling
- Centrale ligging midden in de binnenstad van Gorinchem
- Instapklaar appartement – modern en goed onderhouden
- Hoge plafonds voor een ruim gevoel
- Mooie eiken houten vloer door gehele appartement (recentelijk opgeschuurd en gelakt)
- Hoge plinten langs vloer en plafond, gedetailleerde paneeldeuren en hoogwaardig behang
- Badkamer voorzien van natuurstenen tegels op de vloer en wand

Wonen aan de Arkelstraat betekent wonen in één van de gezelligste straten van Gorinchem, met boetiekjes, restaurants en koffiezaakjes letterlijk om de hoek. De stadshaven en de vestingwallen liggen op loopafstand, net als het station. Hier ervaar je het beste van beide werelden: de levendigheid van de stad én het comfort van een heerlijk eigen plek met buitenruimte.

Kortom: een instapklaar en karaktervol appartement met twee slaapkamers, een prachtig dakterras, berging en een toplocatie in het hart van Gorinchem!

Lees de volledige omschrijving

Kenmerken

Overdracht

Status Beschikbaar
Aanvaarding In overleg

Bouwvorm

Soort object Appartement
Bouwjaar 1880
Bouwvorm Bestaande bouw
Ligging In het centrum

Indeling

Woonoppervlakte 78 m²
Inhoud 271 m³
Aantal kamers 3
Aantal slaapkamers 2
Aantal woonlagen 1

Energie

Energieklasse D
Energie einddatum zaterdag 29 augustus 2026
Isolatie Gedeeltelijk dubbel glas
Warmwater Cv ketel
Verwarming Cv ketel

Buitenruimte

Tuin Geen tuin
Achterom Nee

Bergruimte

Garage Inpandig

Parkeergelegenheid

Voorzieningen Betaald parkeren, parkeergarage, parkeervergunningen

Overig

Permanente bewoning Ja
Onderhoud binnen Goed
Onderhoud buiten Goed
Huidig gebruik Woonruimte
Huidige bestemming Woonruimte

Voorzieningen

Voorzieningen Mechanische ventilatie, glasvezel kabel, natuurlijke ventilatie

Kadastrale gegevens

Gemeente Gorinchem
Sectie C
Perceelnummer 4849
Eigendomssituatie Volle eigendom
OK-Kopie-van-v1-20250318-8G0A1414
Interesse in deze woning?

Chanel helpt u graag

Gratis waardebepaling

U denkt erover uw woning te verkopen en wilt graag weten wat het waard is? We komen graag bij u langs en bepalen de waarde van uw woning.

Gratis waardebepaling

Deel deze woning

Uw persoonlijke adviseur in de regio

Maak kennis met de HypotheekWeter

Ligging

Afspraak maken voor een bezichtiging? Neem contact met ons op

Vergelijkbare woningen